アーク銀座ビルディング(物件No:91783102)
アーク銀座ビルディングは東京都中央区銀座にある地下1階、地上9階建ての賃貸事務所です。最寄駅は都営大江戸線の築地市場駅から徒歩3分、東京メトロ日比谷線の東銀座駅から徒歩4分です。1983年10月竣工の基準階面積が153坪の鉄骨鉄筋コンクリート造です。設備としてはエレベーターが2基あり、駐車場もあります。トイレは室外男女別です。空調は個別空調です。床仕様はフリーアクセスです。天高は2500mmです。耐震性は新耐震となっている、最寄駅から駅近で便利な東京都中央区銀座の賃貸オフィスです。
| 階 | 面積 | 賃料 | 共益費 | 敷金 | 入居日 | お問合せ | お気に入り |
|---|---|---|---|---|---|---|---|
|
7F
(西区画) |
41.77 坪 138.08 ㎡ |
793,630 円 19,000 円(坪) |
込 |
7,936,300 円 10 ヶ月 |
2026/05 |
|
|
| 階 | 面積 | 賃料 | 共益費 | 敷金 | 入居日 | お問合せ | お気に入り |
|---|---|---|---|---|---|---|---|
|
7F
(西区画) |
41.77 坪 138.08 ㎡ |
793,630 円 19,000 円(坪) |
込 |
7,936,300 円 10 ヶ月 |
2026/05 |
|
|
-
物件情報
-
設備情報
- トイレ
- 室外男女別
- 床
- -
- 空調
- 個別空調
- セキュリティ
- -
- 駐車場
- 有
- 会議室
- -
- エレベーター
- 2基
- 天井高
- -
-
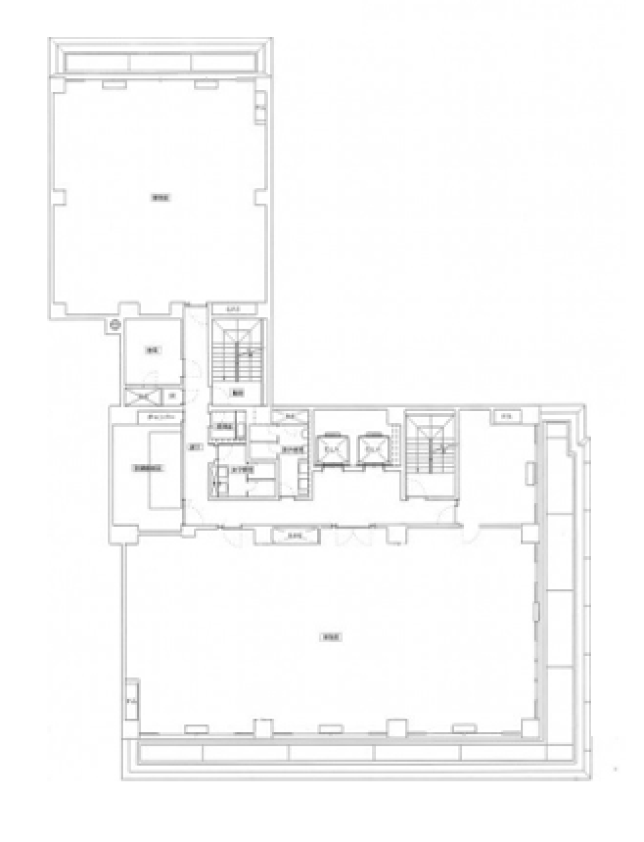
間取り図
-
近隣相場情報
銀座7丁目(40~50坪)の相場
20200 円 (坪)
※ビルサク調べ
周辺施設情報
| コンビニ |
ローソン/銀座七丁目/180m(徒歩2分) セブンイレブン/銀座7丁目東/190m(徒歩2分) |
|---|---|
| 郵便局/銀行 |
ローソン銀行/銀座五丁目共同出張所/[営業時間]24時間/280m(徒歩4分) 郵便局/銀座七/[駐車場]なし [取扱]郵便/貯金/保険/ATM/200m(徒歩3分) |
| 飲食店 |
なか卯 銀座七丁目店/24 時間営業/120m(徒歩1分) 新ばし 金田中/不定休/140m(徒歩2分) |
| カフェ |
カフェドクリエ/銀座7丁目/[営業時間][平 日] 7:30-20:30 [土日祝] (土)9:00-18:30 (日/祝)9:00-18:30/85m(徒歩1分) スターバックス/東銀座店/[営業時間]月~金:7:00~21:00/土日祝:8:00~20:00 [休業日]不定休/220m(徒歩3分) |
| コインパーキング |
タイムズ駐車場/銀座8丁目第6 [料金] [月~土]通常料金 / 0:00~0:00 20分 400円 [日・祝]通常料金 / 0:00~0:00 20分 400円 [最大料金] [月~土]19:00~8:00 最大料金500円 [日・祝]8:00~19:00 最大料金2000円 19:00~8:00 最大料金500円 [台数]2 タイムズ駐車場/野村不動産銀座ビル [料金] [全日]通常料金 / 7:00~20:00 30分 400円 20:00~7:00 30分 400円 [最大料金] [全日]駐車後24時間 最大料金2000円 [台数]34 |
周辺地図
アーク銀座ビルディングは東京都中央区銀座にある地下1階、地上9階建ての賃貸事務所です。最寄駅は都営大江戸線の築地市場駅から徒歩3分、東京メトロ日比谷線の東銀座駅から徒歩4分です。1983年10月竣工の基準階面積が153坪の鉄骨鉄筋コンクリート造です。設備としてはエレベーターが2基あり、駐車場もあります。トイレは室外男女別です。空調は個別空調です。床仕様はフリーアクセスです。天高は2500mmです。耐震性は新耐震となっている、最寄駅から駅近で便利な東京都中央区銀座の賃貸オフィスです。
全フロア情報
更新日:2026年4月2日
| 階 | 面積 | 賃料 | 共益費 | 敷金 | 入居日 | お問合せ | お気に入り | |
|---|---|---|---|---|---|---|---|---|
|
1F
(東区画) |
26.34 坪 87.07 ㎡ |
658,500 円 25,000 円(坪) |
込 |
6,585,000 円 10 ヶ月 |
2026/04 |
|
|
|
|
2F
(1区画) |
48 坪 158.68 ㎡ |
※現在空室情報はございません |
※現在空室情報は 確認する |
|||||
|
5F
(1区画) |
49.13 坪 162.41 ㎡ |
※現在空室情報はございません |
※現在空室情報は 確認する |
|||||
|
6F
(1区画) |
49.13 坪 162.41 ㎡ |
※現在空室情報はございません |
※現在空室情報は 確認する |
|||||
|
6F
(2区画) |
76 坪 251.24 ㎡ |
※現在空室情報はございません |
※現在空室情報は 確認する |
|||||
|
7F
(2区画) |
77.8 坪 257.19 ㎡ |
※現在空室情報はございません |
※現在空室情報は 確認する |
|||||
|
7F
(西区画) |
41.77 坪 138.08 ㎡ |
793,630 円 19,000 円(坪) |
込 |
7,936,300 円 10 ヶ月 |
2026/05 |
|
|
|
|
8F
(1区画) |
32.37 坪 107.01 ㎡ |
※現在空室情報はございません |
※現在空室情報は 確認する |
|||||
|
8F
(2区画) |
52.12 坪 172.3 ㎡ |
※現在空室情報はございません |
※現在空室情報は 確認する |
|||||
お問い合わせ
似た条件の物件はこちら
-
銀昭ビル
東京都中央区銀座4-9-5
坪数:48.61 坪
坪単価:20,000 円(坪)
-
第五安田ビル
東京都中央区銀座7-15-2
坪数:41.7 坪
坪単価:11,000 円(坪)
-
DEAR GINZA
東京都中央区銀座1-6-8
坪数:39.82 坪
坪単価:36,000 円(坪)
-
銀座朝日ビル
東京都中央区銀座3-8-10
坪数:36.33 坪
坪単価:26,000 円(坪)
-
塚本素山ビルディング
東京都中央区銀座4-2-15
坪数:38 坪
坪単価:27,000 円(坪)
-
ライトビル
東京都中央区銀座2-12-3
坪数:38.04 坪
坪単価:16,000 円(坪)
-
銀座エイワビル
東京都中央区銀座8-18-7
坪数:41.9 坪
坪単価:13,500 円(坪)
-
登亭銀座ビル
東京都中央区銀座3-13-2
坪数:34.68 坪
坪単価:18,000 円(坪)
-
七十七銀座ビル
東京都中央区銀座4-14-11
坪数:43 坪
坪単価:29,006 円(坪)
-
銀座ヤマト
東京都中央区銀座3-8-12
坪数:48.36 坪
坪単価:17,000 円(坪)