幸保第2ビル(物件No:91380008)
幸保第2ビルは、千代田区東神田にある貸事務所物件です。最寄り駅はJR総武線快速馬喰町駅、東京メトロ日比谷線小伝馬町駅、都営新宿線馬喰横山駅です。1972年竣工の賃貸オフィスビルです。床はOAフロアとなっています。トイレは男女別で、空調は個別空調です。エレベーターは1基あり、セキュリティは有人警備となっています。複数路線利用可能で、交通アクセスの良い、千代田区東神田の貸事務所です。
-
物件情報
-
設備情報
- トイレ
- 男女別
- 床
- フリーアクセス
- 空調
- 個別空調
- セキュリティ
- -
- 駐車場
- -
- 会議室
- -
- エレベーター
- 1基
- 天井高
- -
-
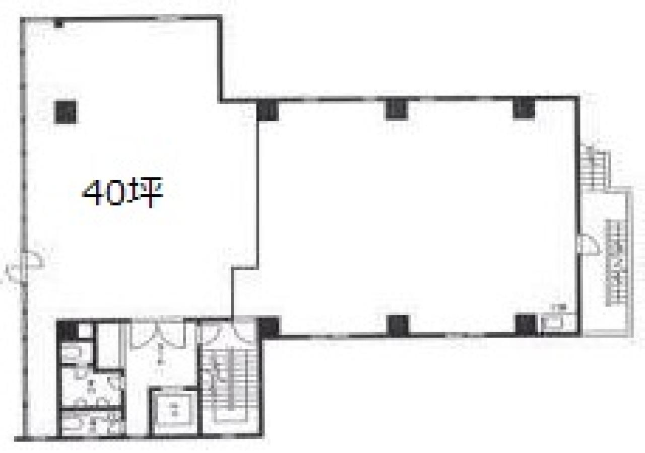
間取り図
-
近隣相場情報
東神田1丁目()の相場
18260 円 (坪)
※ビルサク調べ
周辺施設情報
| コンビニ |
ミニストップ/日本橋馬喰町2丁目店/350m(徒歩5分) まいばすけっと/岩本町3丁目店/270m(徒歩4分) |
|---|---|
| 郵便局/銀行 |
高知銀行/東京支店/500m(徒歩7分) みずほ銀行/ATM 馬喰町駅出張所/[営業時間] [ATM]平日 5:10~24:20 土曜日 5:10~22:00 日曜日 8:00~21:00 祝日・振替休日 曜日に準ずる 備考 *月曜日の5:10~7:00はご利用いただけません。*通帳はご利用いただけません/450m(徒歩6分) |
| 飲食店 |
慶太郎酒場/11時00分~23時00分/120m(徒歩2分) 馨香チャイニーズダイニング/11時00分~15時00分、17時00分~23時00分/ |
| カフェ |
ドトール/小伝馬町店/[営業時間]※営業時間を短縮しております。(~16:00)■通常営業時間 平日 7:00~18:00 土曜 - 日祝 - [備考]総席数:29(禁煙席:29 喫煙席:0)/全席禁煙/500m(徒歩6分) ROBOTS.COFFEE(ロボッツコーヒー)/10時00分~16時00分/300m(徒歩4分) |
| コインパーキング |
NTTル・パルク/清和東神田1丁目第2 [料金] 昼 8:00-20:00 30分 300円 夜 20:00-8:00 60分 100円 [最大料金] 月~土 駐車後24時間以内 2,600円(1回限り) 日・祝 駐車後24時間以内 1,000円(1回限り) (24時間経過後は通常料金が加算されます。) 夜間最大料金(20:00~8:00) 400円(1回限り) [台数]:3台 タイムズ/神田金物通り [料金] [月~土]通常料金 / 8:00~22:00 30分 440円 22:00~8:00 60分 110円 [日・祝]通常料金 / 8:00~22:00 30分 440円 22:00~8:00 60分 110円 [最大料金] [月~土]8:00~22:00 最大料金4290円 22:00~8:00 最大料金330円 [日・祝]8:00~22:00 最大料金1320円 22:00~8:00 最大料金330円 [台数]5 |
周辺地図
幸保第2ビルは、千代田区東神田にある貸事務所物件です。最寄り駅はJR総武線快速馬喰町駅、東京メトロ日比谷線小伝馬町駅、都営新宿線馬喰横山駅です。1972年竣工の賃貸オフィスビルです。床はOAフロアとなっています。トイレは男女別で、空調は個別空調です。エレベーターは1基あり、セキュリティは有人警備となっています。複数路線利用可能で、交通アクセスの良い、千代田区東神田の貸事務所です。
全フロア情報
更新日:2026年4月3日
| 階 | 面積 | 賃料 | 共益費 | 敷金 | 入居日 | お問合せ | お気に入り | |
|---|---|---|---|---|---|---|---|---|
|
2F
(A区画) |
52.17 坪 172.46 ㎡ |
500,000 円 9,584 円(坪) |
無 |
1,500,000 円 3 ヶ月 |
即日 |
|
|
|
| 5F |
87.5 坪 289.26 ㎡ |
※現在空室情報はございません |
※現在空室情報は 確認する |
|||||
|
8F
(1区画) |
40 坪 132.23 ㎡ |
※現在空室情報はございません |
※現在空室情報は 確認する |
|||||
| 9F |
87.5 坪 289.26 ㎡ |
※現在空室情報はございません |
※現在空室情報は 確認する |
|||||
| 10F |
87.5 坪 289.26 ㎡ |
※現在空室情報はございません |
※現在空室情報は 確認する |
|||||
お問い合わせ
似た条件の物件はこちら
-
大手町ゲートビルディング
東京都千代田区内神田1-31-11
坪数:48.55 坪
坪単価:70,031 円(坪)
-
日光ビル
東京都千代田区神田小川町1-1-4
坪数:34.94 坪
坪単価:15,000 円(坪)
-
新八光ビル
東京都千代田区内神田3-22-9
坪数:44.17 坪
坪単価:20,000 円(坪)
-
KSKビル
東京都千代田区外神田5-1-15
坪数:39.4 坪
坪単価:16,000 円(坪)
-
いちご大手町ノースビル
東京都千代田区内神田1-15-7
坪数:31.89 坪
坪単価:29,000 円(坪)
-
神田荒木ビル
東京都千代田区神田須田町1-14-6
坪数:30.03 坪
坪単価:13,000 円(坪)
-
大竹ビル
東京都千代田区神田北乗物町12
坪数:31.02 坪
坪単価:12,500 円(坪)
-
大栄堂ビル
東京都千代田区神田小川町3-6
坪数:30 坪
坪単価:20,000 円(坪)
-
楠本第3ビル
東京都千代田区神田錦町3-19
坪数:35 坪
坪単価:14,500 円(坪)
-
トゥルム神田ビル
東京都千代田区神田岩本町4-9
坪数:33.44 坪
坪単価:20,000 円(坪)
関連エリアから探す
- 内神田
- 神田淡路町
- 神田小川町
- 神田鍛冶町
- 神田須田町
- 神田駿河台
- 神田多町
- 神田司町
- 神田錦町
- 神田美土代町
- 岩本町
- 鍛冶町
- 神田岩本町
- 神田北乗物町
- 神田紺屋町
- 神田富山町
- 神田西福田町
- 神田東松下町
- 神田東紺屋町
- 神田美倉町
- 東神田
- 神田相生町
- 神田和泉町
- 神田佐久間町
- 神田佐久間河岸
- 神田練塀町
- 神田花岡町
- 神田松永町
- 外神田
- 神田平河町