三田ヒルクレスト(物件No:91288185)
三田ヒルクレストは、港区三田にある地下2階、地上9階建ての賃貸事務所です。最寄駅はJR山手線の田町駅から徒歩7分、都営三田線の三田駅から徒歩8分、都営浅草線の三田駅から徒歩8分、都営三田線の白金高輪駅から徒歩10分です。1970年12月竣工の基準階面積が36.87坪の鉄筋コンクリート造です。設備としては、エレベーターが1基あります。駐車場もあります。トイレは室内男女共用です。空調は個別空調です。複数路線利用可能なアクセスの良い港区三田の賃貸オフィスです。
-
物件情報
-
設備情報
- トイレ
- 室内
- 床
- タイルカーペット
- 空調
- 個別空調
- セキュリティ
- 無
- 駐車場
- 有
- 会議室
- -
- エレベーター
- 1基
- 天井高
- 2400mm
-
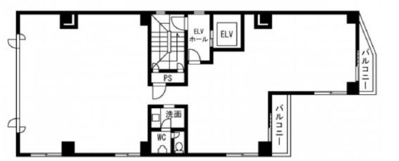
間取り図
-
近隣相場情報
三田4丁目(30~40坪)の相場
調査中
周辺施設情報
| コンビニ |
ファミリーマート/三田聖坂下店/120m(徒歩1分) セブンイレブン/港区三田3丁目/500m(徒歩7分) |
|---|---|
| 郵便局/銀行 |
ローソン銀行/ローソン銀行ATM 港三田三丁目共同出張所/[営業時間]24時間 [備考]ご利用可能な金融機関 当店のATM管理はローソン銀行です/290m(徒歩3分) イーネット/ファミリーマート田町第一京浜/[営業時間]0:00~24:00/500m(徒歩6分) |
| 飲食店 |
三味/11時30分~13時30分、17時30分~22時30分/140m(徒歩2分) カリーフォルニアダイニング カイ /11時00分~15時00分、18時00分~22時30分/120m(徒歩1分) |
| カフェ |
ドトール/三田3丁目店/[営業時間]平 日:07:20 - 20:00 備 考:ラストオーダー 19:30 土曜日:08:00 - 18:30 備 考:ラストオーダー 18:00 日 祝:08:00 - 18:30 備 考:ラストオーダー 18:00 [休業日]なし [備考]総席数:48 禁煙席:29 喫煙席:19/210m(徒歩2分) TAP HOP/10時00分~19時00分/400m(徒歩5分) |
| コインパーキング |
三井のリパーク/三田3丁目第4 [料金] 全日 08:00~20:00 20分/400円 全日 20:00~08:00 20分/400円 [最大料金] 【全日】20:00~8:00以内 最大料金1000円 [台数]2 GSパーク/三田四丁目 [料金] 【月~土】 時間割料金 08:00~22:00 15分 300円 22:00~08:00 60分 100円 【日祝】 時間割料金 08:00~22:00 15分 300円 22:00~08:00 60分 100円 [最大料金] 【月~土】 最大料金 12時間最大 2,800円 【日祝】 最大料金 12時間最大 1,800円 [台数]43台 |
周辺地図
三田ヒルクレストは、港区三田にある地下2階、地上9階建ての賃貸事務所です。最寄駅はJR山手線の田町駅から徒歩7分、都営三田線の三田駅から徒歩8分、都営浅草線の三田駅から徒歩8分、都営三田線の白金高輪駅から徒歩10分です。1970年12月竣工の基準階面積が36.87坪の鉄筋コンクリート造です。設備としては、エレベーターが1基あります。駐車場もあります。トイレは室内男女共用です。空調は個別空調です。複数路線利用可能なアクセスの良い港区三田の賃貸オフィスです。
全フロア情報
更新日:2019年10月18日
| 階 | 面積 | 賃料 | 共益費 | 敷金 | 入居日 | お問合せ | お気に入り | |
|---|---|---|---|---|---|---|---|---|
| 1-2F |
73.30 坪 242.31 ㎡ |
※現在空室情報はございません |
※現在空室情報は 確認する |
|||||
| 2F |
11.98 坪 39.60 ㎡ |
※現在空室情報はございません |
※現在空室情報は 確認する |
|||||
| 5F |
36.87 坪 121.88 ㎡ |
※現在空室情報はございません |
※現在空室情報は 確認する |
|||||
| 6F |
36.87 坪 121.88 ㎡ |
※現在空室情報はございません |
※現在空室情報は 確認する |
|||||
| 9F |
32.03 坪 105.88 ㎡ |
※現在空室情報はございません |
※現在空室情報は 確認する |
|||||
| 10-11F |
34.03 坪 112.50 ㎡ |
※現在空室情報はございません |
※現在空室情報は 確認する |
|||||
お問い合わせ
似た条件の物件はこちら
-
一松ビル本館
東京都港区芝大門2-3-15
坪数:34 坪
坪単価:15,000 円(坪)
-
三田レオマビル
東京都港区三田2-10-6
坪数:27.03 坪
坪単価:16,500 円(坪)
-
佐藤ビル
東京都港区浜松町1-19-4
坪数:27.79 坪
坪単価:11,000 円(坪)
-
芝松下ビル
東京都港区芝3-3-12
坪数:26.42 坪
坪単価:11,000 円(坪)
-
日建ビル
東京都港区海岸2-6-31
坪数:27.02 坪
坪単価:12,000 円(坪)
-
芝パークビル
東京都港区浜松町2-1-15
坪数:26 坪
坪単価:17,000 円(坪)
-
芝浦中村ビル
東京都港区芝浦2-3-37
坪数:31.58 坪
坪単価:10,500 円(坪)
-
シントクビル
東京都港区芝3-14-6
坪数:45.28 坪
坪単価:14,000 円(坪)
-
Bizflex浜松町
東京都港区浜松町2-12-11
坪数:44.06 坪
坪単価:36,314 円(坪)
-
第二神明ビル
東京都港区芝大門2-9-15
坪数:32 坪
坪単価:11,000 円(坪)