ザ・パークレックス虎ノ門(物件No:91184124)
ザ・パークレックス虎ノ門(旧:交洋ビル)は港区虎ノ門にある地上8階建ての賃貸事務所です。最寄駅は東京メトロ銀座線の虎ノ門駅から徒歩3分、東京メトロ千代田線の霞ケ関駅から徒歩9分、東京メトロ丸ノ内線の霞ケ関駅から徒歩9分、東京メトロ日比谷線の霞ケ関駅から徒歩9分です。1973年8月竣工です。複数路線利用可能なアクセスの良い港区虎ノ門の賃貸オフィスです。
-
物件情報
-
設備情報
- トイレ
- 男女別
- 床
- スケルトン
- 空調
- 個別空調
- セキュリティ
- 無
- 駐車場
- 無
- 会議室
- -
- エレベーター
- -
- 天井高
- 3300mm
-
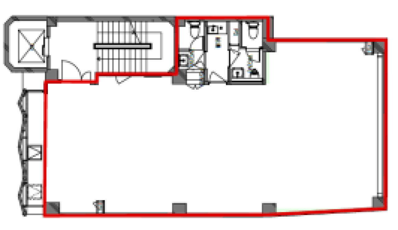
間取り図
-
近隣相場情報
虎ノ門1丁目(30~40坪)の相場
24000 円 (坪)
※ビルサク調べ
周辺施設情報
| コンビニ |
ローソン/虎ノ門琴平/280m(徒歩3分) ファミリーマート/ファミマ霞が関ビルディング店/450m(徒歩6分) |
|---|---|
| 郵便局/銀行 |
ローソン銀行/虎ノ門駅南共同出張所/[営業時間]24時間 [取扱]海外発行カード対応、視覚障害者対応 [備考]ご利用可能な金融機関 当店のATM管理はローソン銀行です/46m(徒歩1分) みずほ銀行/ATM JTビル第二出張所/[営業時間]ATM 平日 /Monday - Friday 8:45~19:00 土曜日/Saturday 非稼働 日曜日/Sunday 非稼働 祝日・振替休日 /Public Holidays 非稼働 備考 *設置施設の休業日・休業時間帯は、一般のお客さまはご利用いただけません。 通帳繰越機 設置/250m(徒歩3分) |
| 飲食店 |
アジアンランチ虎ノ門琴平タワービル店/11時30分~13時45分/77m(徒歩1分) ルース クリス ステーキハウス/11時00分~15時00分、17時30分~23時00分/400m(徒歩6分) |
| カフェ |
日立ハイテクカフェラウンジ/8時00分~11時45分、12時45分~17時00分/300m(徒歩5分) タリーズ/虎ノ門桜田通り店/[営業時間]平日:7:00 ~ 20:00 土:休業日 日祝:休業日 [備考]喫煙ルーム/52m(徒歩1分) |
| コインパーキング |
三井のリパーク/虎の門病院駐車場 [料金] 全日 00:00~24:00 30分/400円 [台数]192 NPC24H/虎ノ門第2 [料金] 15分/400円 [最大料金] 【 月~土 】 12時間毎 3800円 夜間最大 500円(20時~8時) 【 日祝 】 12時間毎 900円 夜間最大 500円(20時~8時) [台数]7台 |
周辺地図
ザ・パークレックス虎ノ門(旧:交洋ビル)は港区虎ノ門にある地上8階建ての賃貸事務所です。最寄駅は東京メトロ銀座線の虎ノ門駅から徒歩3分、東京メトロ千代田線の霞ケ関駅から徒歩9分、東京メトロ丸ノ内線の霞ケ関駅から徒歩9分、東京メトロ日比谷線の霞ケ関駅から徒歩9分です。1973年8月竣工です。複数路線利用可能なアクセスの良い港区虎ノ門の賃貸オフィスです。
全フロア情報
更新日:2026年3月31日
| 階 | 面積 | 賃料 | 共益費 | 敷金 | 入居日 | お問合せ | お気に入り | |
|---|---|---|---|---|---|---|---|---|
| 2F |
35.08 坪 115.97 ㎡ |
※現在空室情報はございません |
※現在空室情報は 確認する |
|||||
| 3F |
35.08 坪 115.97 ㎡ |
※現在空室情報はございません |
※現在空室情報は 確認する |
|||||
| 4F |
35.08 坪 115.97 ㎡ |
※現在空室情報はございません |
※現在空室情報は 確認する |
|||||
| 5F |
35.08 坪 115.97 ㎡ |
※現在空室情報はございません |
※現在空室情報は 確認する |
|||||
| 6F |
35.08 坪 115.97 ㎡ |
※現在空室情報はございません |
※現在空室情報は 確認する |
|||||
| 7F |
35.08 坪 115.97 ㎡ |
※現在空室情報はございません |
※現在空室情報は 確認する |
|||||
| 8F |
35.08 坪 115.97 ㎡ |
※現在空室情報はございません |
※現在空室情報は 確認する |
|||||
お問い合わせ
似た条件の物件はこちら
-
麻布台ヒルズ ガーデンプラザB
東京都港区虎ノ門5-9-1
坪数:27.2 坪
坪単価:50,000 円(坪)
-
新橋安達ビル
東京都港区新橋5-28-7
坪数:29.34 坪
坪単価:14,500 円(坪)
-
石井ビル
東京都港区新橋3-1-10
坪数:33.46 坪
坪単価:16,000 円(坪)
-
汐留AZビル
東京都港区東新橋2-6-6
坪数:35.09 坪
坪単価:16,000 円(坪)
-
第2小川ビル
東京都港区東新橋2-11-3
坪数:32.14 坪
坪単価:17,000 円(坪)
-
川岸会館ビル
東京都港区東新橋1-2-13
坪数:26 坪
坪単価:16,000 円(坪)
-
ASOOM新橋
東京都港区新橋5-23-5
坪数:43.04 坪
坪単価:30,000 円(坪)
-
東京建硝ビル
東京都港区西新橋3-19-14
坪数:29.4 坪
坪単価:12,500 円(坪)
-
新橋NKKビル
東京都港区西新橋2-18-2
坪数:37.93 坪
坪単価:12,022 円(坪)
-
ル・グラシエルBLDG.70
東京都港区西新橋1-5-9
坪数:27.19 坪
坪単価:15,000 円(坪)