赤坂甲陽ビル(物件No:81886194)
赤坂甲陽ビルは港区赤坂にある地上7階建ての賃貸事務所です。最寄駅は東京メトロ千代田線の赤坂駅から徒歩5分、東京メトロ千代田線の乃木坂駅から徒歩9分、都営大江戸線の六本木駅から徒歩9分です。2011年11月竣工の基準階面積が21.68坪の鉄筋コンクリート造です。設備としては、エレベーターが1基あります。セキュリティは機械警備です。空調は個別空調です。床仕様はフリーアクセスです。天高は2600mmです。耐震設計となっている、複数駅利用可能なアクセスの良い港区赤坂の賃貸オフィスです。
-
物件情報
-
設備情報
- トイレ
- 室内男女共用
- 床
- フリーアクセス
- 空調
- 個別空調
- セキュリティ
- 有
- 駐車場
- -
- 会議室
- -
- エレベーター
- 1基
- 天井高
- 2600mm
-
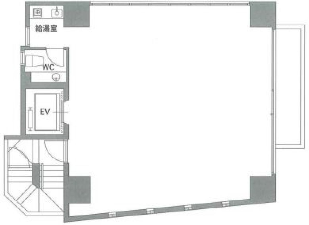
間取り図
-
近隣相場情報
赤坂6丁目(20~30坪)の相場
13101 円 (坪)
※ビルサク調べ
周辺施設情報
| コンビニ |
ローソン/港南麻布/350m(徒歩5分) まいばすけっと/南麻布古川橋店/300m(徒歩4分) |
|---|---|
| 郵便局/銀行 |
三菱UFJ銀行/ATM 南麻布二丁目/[営業時間] [ATM]平日 7:00~24:00 土曜日 7:00~24:00 日・祝日 7:00~24:00 *毎月第2土曜日の21:00~翌朝7:00はご利用いただけません/400m(徒歩5分) 郵便局/ATM ファミリーマート麻布運動場前店内出張所/[駐車場]なし [取扱]ATM/カードATM/900m(徒歩12分) |
| 飲食店 |
イル クアルト ポンテ/18時00分~23時00分/650m(徒歩8分) 中華料理 大宝/11時30分~14時00分、19時00分~22時00分/450m(徒歩6分) |
| カフェ |
スターバックス/東京都立広尾病院店/[営業時間]月~金:7:30~20:00/土日祝:9:00~17:00 [休業日]不定休/1700m(徒歩21分) 有栖川珈琲/10時00分~19時00分/1200m(徒歩16分) |
| コインパーキング |
コインパーク/麻布十番3丁目第2 [料金] 【全日】 ■通常料金 【00:00~24:00】 10分/300円 [最大料金] 【全日】 ■最大料金 【駐車後4時間以内1回限り】 3000円 【全日】 ■最大料金 【24:00~8:00】 500円 [台数][車: 4台] タイムズ駐車場/南麻布第12 [料金] [全日]通常料金 / 00:00-00:00 20分 300円 [最大料金] [全日]駐車後24時間 最大料金3200円 [全日]17:00-08:00 最大料金800円 [台数]5 |
周辺地図
赤坂甲陽ビルは港区赤坂にある地上7階建ての賃貸事務所です。最寄駅は東京メトロ千代田線の赤坂駅から徒歩5分、東京メトロ千代田線の乃木坂駅から徒歩9分、都営大江戸線の六本木駅から徒歩9分です。2011年11月竣工の基準階面積が21.68坪の鉄筋コンクリート造です。設備としては、エレベーターが1基あります。セキュリティは機械警備です。空調は個別空調です。床仕様はフリーアクセスです。天高は2600mmです。耐震設計となっている、複数駅利用可能なアクセスの良い港区赤坂の賃貸オフィスです。
全フロア情報
更新日:2025年10月27日
| 階 | 面積 | 賃料 | 共益費 | 敷金 | 入居日 | お問合せ | お気に入り | |
|---|---|---|---|---|---|---|---|---|
| 1F |
16.75 坪 55.37 ㎡ |
※現在空室情報はございません |
※現在空室情報は 確認する |
|||||
| 6F |
21.68 坪 71.67 ㎡ |
※現在空室情報はございません |
※現在空室情報は 確認する |
|||||
| 7F |
21.68 坪 71.67 ㎡ |
※現在空室情報はございません |
※現在空室情報は 確認する |
|||||
お問い合わせ
似た条件の物件はこちら
-
ライオンズマンション赤坂
東京都港区赤坂7-5-6
坪数:22.7 坪
坪単価:17,000 円(坪)
-
第4文成ビル
東京都港区赤坂7-10-9
坪数:17 坪
坪単価:20,000 円(坪)
-
赤坂余湖ビル
東京都港区赤坂4-8-6
坪数:18.48 坪
坪単価:15,000 円(坪)
-
赤坂ASビル
東京都港区赤坂7-11-10
坪数:20.8 坪
坪単価:16,000 円(坪)
-
ゴールド赤坂
東京都港区赤坂3-12-11
坪数:17.58 坪
坪単価:23,891 円(坪)
-
赤坂鈴木ビル
東京都港区赤坂3-19-13
坪数:21.56 坪
坪単価:24,119 円(坪)
-
第2中田ビル
東京都港区赤坂1-3-15
坪数:21 坪
坪単価:15,952 円(坪)
-
内田ビル
東京都港区赤坂2-19-5
坪数:20.57 坪
坪単価:8,653 円(坪)
-
溜池山王葵ビル
東京都港区赤坂2-8-11
坪数:20.09 坪
坪単価:16,008 円(坪)
-
赤坂ヒルサイド
東京都港区赤坂2-20-13
坪数:23.34 坪
坪単価:13,925 円(坪)