TK-CENTRAL(物件No:81883106)
TK-CENTRALは文京区後楽にある地上8階建ての賃貸事務所です。最寄駅はJR中央・総武線の飯田橋駅から徒歩1分、東京メトロ有楽町線の飯田橋駅から徒歩1分、東京メトロ南北線の飯田橋駅から徒歩1分、都営大江戸線の飯田橋駅から徒歩1分、東京メトロ東西線の飯田橋駅から徒歩1分です。1992年12月竣工の基準階面積が84.9坪の鉄筋コンクリート造です。設備としては、エレベーターが2基あり、駐車場もあります。警備は機械警備です。トイレは男女別です。空調は個別空調です。床仕様はフリーアクセスです。天高は2600mmです。耐震設計となっている、最寄駅から近くて便利な文京区後楽の賃貸オフィスです。
-
物件情報
-
設備情報
- トイレ
- 男女別
- 床
- フリーアクセス
- 空調
- 個別空調
- セキュリティ
- 有
- 駐車場
- 有
- 会議室
- -
- エレベーター
- 2基
- 天井高
- 2600mm
-
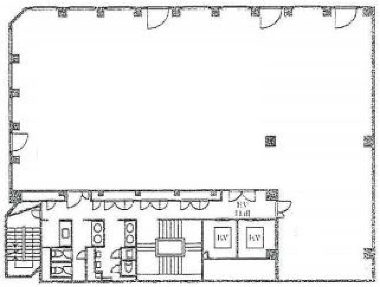
間取り図
-
近隣相場情報
後楽1丁目(100坪以上)の相場
23500 円 (坪)
※ビルサク調べ
周辺施設情報
| コンビニ |
ファミリーマート/水道橋駅西口店/400m(徒歩5分) ローソン/都営水道橋駅前/400m(徒歩6分) |
|---|---|
| 郵便局/銀行 |
ゆうちょ/ATM 本店 ファミリーマート水道橋駅東口店内出張所/[営業時間] [ATM]平日 0:05~23:55 土曜日 0:05~23:55 日曜日・休日 0:05~23:55 [駐車場]なし [取扱]ATM/カードATM [備考]海外発行カードによる現金引き出しサービスにおいて、16言語でご利用いただけます/250m(徒歩3分) みずほ銀行/ATM 東京ドームシティ出張所/[営業時間]平日 7:00~24:00 土曜日 8:00~21:00 日曜日 8:00~21:00 祝日・振替休日 8:00~21:00 備考 *設置施設の休業日・休業時間帯は、一般のお客さまはご利用いただけません。/300m(徒歩4分) |
| 飲食店 |
25 CHICKEN/11時00分~16時00分/700m(徒歩9分) マクドナルド 水道橋外堀通り店/24 時間営業/270m(徒歩3分) |
| カフェ |
ニューヨーカーズ・カフェ/水道橋東口店/[営業時間]月~土:7:00~22:00 日祝日:7:30~22:00 [備考]Wi-Fi/電源サービス/テイクアウト/禁煙席 67席/250m(徒歩4分) ナナズグリーンティー/東京ドーム店/[営業時間]12:00~21:00/400m(徒歩6分) |
| コインパーキング |
NPC24H/後楽1丁目第2 [料金] 全日 0:00~24:00 300円/20分 [最大料金] 月~金 入庫後最大(繰返有)6時間/1800円 土・日・祝 入庫後最大(繰返有)3時間/2500円 [台数]5台 タイムズ/東京ドームホテル [料金] [月~金]通常料金 0:00~0:00 30分 440円 [土・日・祝]通常料金 0:00~0:00 30分 440円 [最大料金] [月~金]最大料金(繰り返し適用)7:00~19:00 最大料金1760円 [土・日・祝]最大料金(繰り返し適用)- [台数]275台 |
周辺地図
TK-CENTRALは文京区後楽にある地上8階建ての賃貸事務所です。最寄駅はJR中央・総武線の飯田橋駅から徒歩1分、東京メトロ有楽町線の飯田橋駅から徒歩1分、東京メトロ南北線の飯田橋駅から徒歩1分、都営大江戸線の飯田橋駅から徒歩1分、東京メトロ東西線の飯田橋駅から徒歩1分です。1992年12月竣工の基準階面積が84.9坪の鉄筋コンクリート造です。設備としては、エレベーターが2基あり、駐車場もあります。警備は機械警備です。トイレは男女別です。空調は個別空調です。床仕様はフリーアクセスです。天高は2600mmです。耐震設計となっている、最寄駅から近くて便利な文京区後楽の賃貸オフィスです。
全フロア情報
更新日:2026年4月6日
| 階 | 面積 | 賃料 | 共益費 | 敷金 | 入居日 | お問合せ | お気に入り | |
|---|---|---|---|---|---|---|---|---|
| 1F |
45.82 坪 151.47 ㎡ |
※現在空室情報はございません |
※現在空室情報は 確認する |
|||||
| 2F |
83.55 坪 276.2 ㎡ |
相談 |
334,200 円 4,000 円(坪) |
10ヶ月 |
2026/05 |
|
|
|
| 7F |
84.43 坪 279.11 ㎡ |
※現在空室情報はございません |
※現在空室情報は 確認する |
|||||
| 8F |
101.53 坪 335.64 ㎡ |
※現在空室情報はございません |
※現在空室情報は 確認する |
|||||
お問い合わせ
似た条件の物件はこちら
-
ライオンズマンション小石川台
東京都文京区春日2-19-11
坪数:82.99 坪
坪単価:16,388 円(坪)
-
浅沼ビル
東京都文京区本郷3-4-17
坪数:107.87 坪
坪単価:10,012 円(坪)
-
小石川2丁目貸倉庫・店舗・事務所・作業所
東京都文京区小石川2-12-8
坪数:103.2 坪
坪単価:10,659 円(坪)
-
日教販ビル
東京都文京区後楽1-4-25
坪数:115.72 坪
坪単価:17,600 円(坪)
-
春日尚学ビル
東京都文京区小石川2-3-23
坪数:81.77 坪
坪単価:13,998 円(坪)
-
フロンティア本郷Ⅱ
東京都文京区本郷2-27-18
坪数:73.48 坪
坪単価:24,000 円(坪)
-
いろは本郷ビル
東京都文京区本郷4-37-18
坪数:71.55 坪
坪単価:10,500 円(坪)
-
山水ビル
東京都文京区関口1-35-17
坪数:109.05 坪
坪単価:6,000 円(坪)
-
東宝江戸川橋ビル
東京都文京区関口1-24-8
坪数:83.03 坪
坪単価:14,031 円(坪)
-
林野会館
東京都文京区大塚3-28-7
坪数:85.32 坪
坪単価:6,000 円(坪)