松岡田村町ビル(物件No:81685144)
松岡田村町ビルは港区新橋にある地下2階、地上8階建ての貸店舗事務所です。最寄駅は都営三田線の御成門駅から徒歩4分、JR京浜東北線の新橋駅から徒歩7分、JR山手線の新橋駅から徒歩7分、JR東海道本線の新橋駅から徒歩7分、JR横須賀線の新橋駅から徒歩7分です。1974年2月竣工の基準階面積が134.63坪の鉄骨鉄筋コンクリート造です。設備としては、エレベーターが2基、駐車場もあります。トイレは男女別です。空調は個別空調です。床仕様はフリーアクセスです。天高は2300mmです。複数路線利用可能なアクセスの良い港区新橋の貸店舗事務所です。
-
物件情報
-
設備情報
- トイレ
- 室外男女別
- 床
- フリーアクセス
- 空調
- 個別空調
- セキュリティ
- -
- 駐車場
- 有
- 会議室
- -
- エレベーター
- 2基
- 天井高
- 2300mm
-
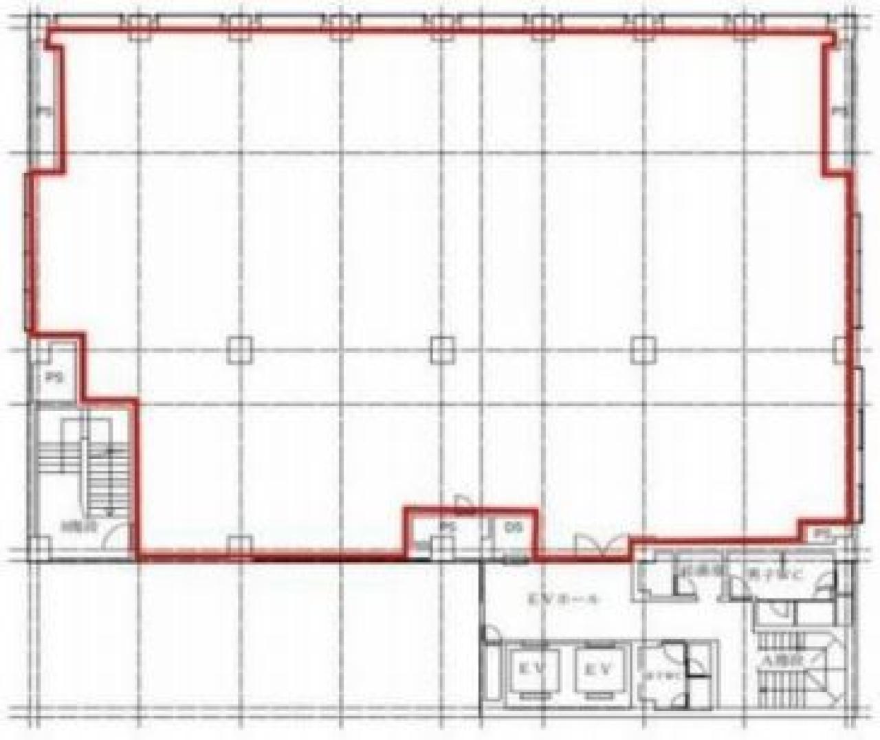
間取り図
-
近隣相場情報
新橋5丁目(100坪以上)の相場
調査中
周辺地図
松岡田村町ビルは港区新橋にある地下2階、地上8階建ての貸店舗事務所です。最寄駅は都営三田線の御成門駅から徒歩4分、JR京浜東北線の新橋駅から徒歩7分、JR山手線の新橋駅から徒歩7分、JR東海道本線の新橋駅から徒歩7分、JR横須賀線の新橋駅から徒歩7分です。1974年2月竣工の基準階面積が134.63坪の鉄骨鉄筋コンクリート造です。設備としては、エレベーターが2基、駐車場もあります。トイレは男女別です。空調は個別空調です。床仕様はフリーアクセスです。天高は2300mmです。複数路線利用可能なアクセスの良い港区新橋の貸店舗事務所です。
全フロア情報
更新日:2026年3月6日
| 階 | 面積 | 賃料 | 共益費 | 敷金 | 入居日 | お問合せ | お気に入り | |
|---|---|---|---|---|---|---|---|---|
| 6F |
134.63 坪 445.06 ㎡ |
※現在空室情報はございません |
※現在空室情報は 確認する |
|||||
| 7F |
134.63 坪 445.06 ㎡ |
※現在空室情報はございません |
※現在空室情報は 確認する |
|||||
| 8F |
134.63 坪 445.06 ㎡ |
※現在空室情報はございません |
※現在空室情報は 確認する |
|||||
お問い合わせ
似た条件の物件はこちら
-
BIZCORE西新橋
東京都港区西新橋3-13-3
坪数:110.58 坪
坪単価:28,000 円(坪)
-
メトロシティ神谷町
東京都港区虎ノ門5-1-5
坪数:127.06 坪
坪単価:28,000 円(坪)
-
虎ノ門ピアザビル
東京都港区虎ノ門2-4-1
坪数:125 坪
坪単価:19,000 円(坪)