森光ビル(物件No:81385170)
森光ビルは、千代田区神田和泉町にある貸事務所物件です。最寄り駅は東京メトロ日比谷線、JR秋葉原駅、都営新宿線岩本町駅です。1983年竣工の賃貸オフィスビルです。床はタイルカーペットとなっています。トイレは室内で、空調は個別空調です。エレベーターは1基あります。秋葉原駅周辺には様々な店舗が立ち並んでおり、交通アクセスも良く、利便性の高い千代田区神田和泉町の貸事務所です。
| 階 | 面積 | 賃料 | 共益費 | 敷金 | 入居日 | お問合せ | お気に入り |
|---|---|---|---|---|---|---|---|
|
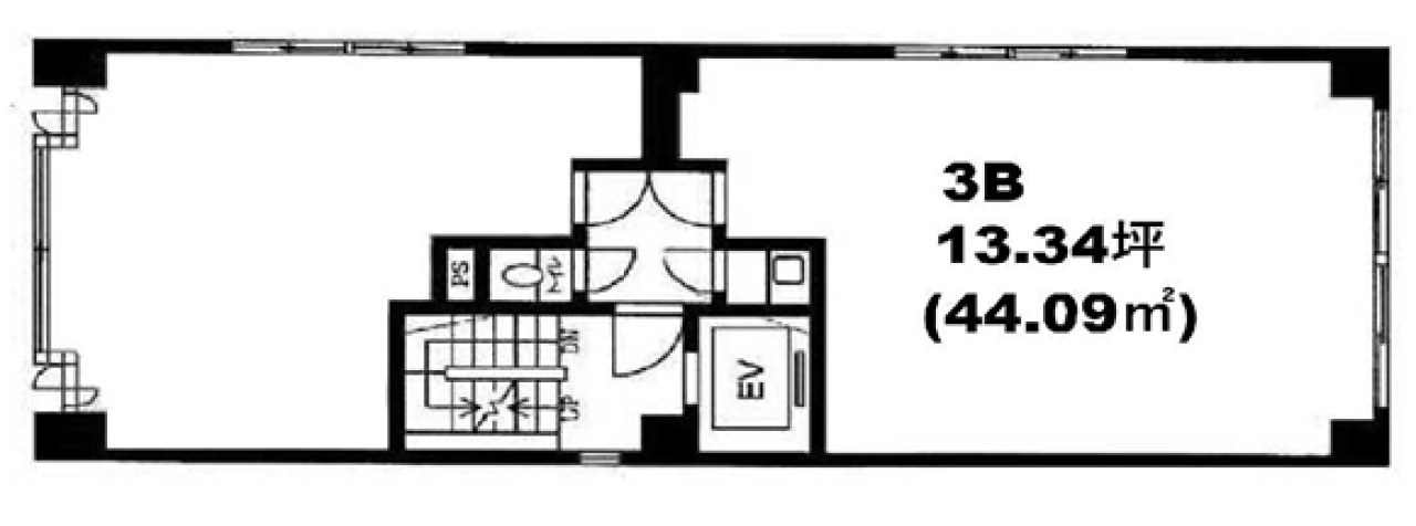
3F
(B区画) |
13.34 坪 44.1 ㎡ |
192,000 円 14,393 円(坪) |
込 |
1,152,000 円 6 ヶ月 |
即日 |
|
|
| 階 | 面積 | 賃料 | 共益費 | 敷金 | 入居日 | お問合せ | お気に入り |
|---|---|---|---|---|---|---|---|
|
3F
(B区画) |
13.34 坪 44.1 ㎡ |
192,000 円 14,393 円(坪) |
込 |
1,152,000 円 6 ヶ月 |
即日 |
|
|
-
物件情報
-
設備情報
- トイレ
- 室外男女共用
- 床
- -
- 空調
- -
- セキュリティ
- -
- 駐車場
- 無
- 会議室
- -
- エレベーター
- 1基
- 天井高
- -
-
間取り図
-
近隣相場情報
神田和泉町1丁目(20坪以下)の相場
13155 円 (坪)
※ビルサク調べ
周辺施設情報
| コンビニ |
ファミリーマート/神田和泉町店/80m(徒歩1分) セブンイレブン/神田和泉町/230m(徒歩3分) |
|---|---|
| 郵便局/銀行 |
イーネット/ファミリーマート秋葉原駅前1号機/[営業時間]0:00~24:00/270m(徒歩3分) 三菱UFJ銀行/ATM ヨドバシAkiba/[営業時間] [ATM]平日 7:00~24:00 土曜日 7:00~24:00 日・祝日 7:00~24:00 *毎月第2土曜日の21:00~翌朝7:00はご利用いただけません/600m(徒歩8分) |
| 飲食店 |
きんぼし/17時30分~0時00分/53m(徒歩1分) アールティ 和泉町店/11時30分~15時30分、17時00分~23時00分/66m(徒歩1分) |
| カフェ |
フライハイカフェ 秋葉原店/16時00分~21時00分/160m(徒歩2分) toitoi/11時00分~16時00分/190m(徒歩2分) |
| コインパーキング |
三井のリパーク/三井記念病院駐車場 [料金] 全日 00:00~24:00 入庫 20分/0円 以降 20分/200円 3時間以内200円/20分 3時間超100円/20分 [最大料金] 入庫当日24時まで2500円 [台数]105 NPC24H/神田和泉町第3 [料金] 15分/200円(8時~20時) 60分/100円(20時~8時) [最大料金] 区間最大 2800円(8時~18時) 全日夜間 500円(18時~8時) [台数]3台 |
周辺地図
森光ビルは、千代田区神田和泉町にある貸事務所物件です。最寄り駅は東京メトロ日比谷線、JR秋葉原駅、都営新宿線岩本町駅です。1983年竣工の賃貸オフィスビルです。床はタイルカーペットとなっています。トイレは室内で、空調は個別空調です。エレベーターは1基あります。秋葉原駅周辺には様々な店舗が立ち並んでおり、交通アクセスも良く、利便性の高い千代田区神田和泉町の貸事務所です。
全フロア情報
更新日:2026年4月15日
| 階 | 面積 | 賃料 | 共益費 | 敷金 | 入居日 | お問合せ | お気に入り | |
|---|---|---|---|---|---|---|---|---|
| 1+M2F |
36.16 坪 119.54 ㎡ |
※現在空室情報はございません |
※現在空室情報は 確認する |
|||||
| 2F |
26.62 坪 88 ㎡ |
※現在空室情報はございません |
※現在空室情報は 確認する |
|||||
|
3F
(A区画) |
10 坪 33.06 ㎡ |
※現在空室情報はございません |
※現在空室情報は 確認する |
|||||
|
3F
(B区画) |
13.34 坪 44.1 ㎡ |
192,000 円 14,393 円(坪) |
込 |
1,152,000 円 6 ヶ月 |
即日 |
|
|
|
|
4F
(B区画) |
12 坪 39.67 ㎡ |
※現在空室情報はございません |
※現在空室情報は 確認する |
|||||
お問い合わせ
似た条件の物件はこちら
-
大手町ゲートビルディング
東京都千代田区内神田1-31-11
坪数:11.65 坪
坪単価:77,253 円(坪)
-
パレヤソジマ
東京都千代田区神田司町2-15-1
坪数:12.03 坪
坪単価:12,053 円(坪)
-
神田美倉町ビル
東京都千代田区神田美倉町9
坪数:12.6 坪
坪単価:16,667 円(坪)
-
プロミエ秋葉原
東京都千代田区神田練塀町73
坪数:13.65 坪
坪単価:19,121 円(坪)
-
秋葉原Y'sビル
東京都千代田区神田佐久間町3-20-5
坪数:11.17 坪
坪単価:16,000 円(坪)
-
昭和ビル
東京都千代田区神田和泉町1-2-5
坪数:16.5 坪
坪単価:11,000 円(坪)
-
第一ビル
東京都千代田区神田司町2-10
坪数:12.6 坪
坪単価:14,500 円(坪)
-
上田ビル
東京都千代田区神田司町2-19
坪数:12.1 坪
坪単価:11,000 円(坪)
-
嶋屋ビル
東京都千代田区内神田2-11-2
坪数:10.33 坪
坪単価:9,681 円(坪)
-
合人社東京秋葉原ビル
東京都千代田区岩本町3-5-2
坪数:17.27 坪
坪単価:23,000 円(坪)
関連エリアから探す
- 内神田
- 神田淡路町
- 神田小川町
- 神田鍛冶町
- 神田須田町
- 神田駿河台
- 神田多町
- 神田司町
- 神田錦町
- 神田美土代町
- 岩本町
- 鍛冶町
- 神田岩本町
- 神田北乗物町
- 神田紺屋町
- 神田富山町
- 神田西福田町
- 神田東松下町
- 神田東紺屋町
- 神田美倉町
- 東神田
- 神田相生町
- 神田和泉町
- 神田佐久間町
- 神田佐久間河岸
- 神田練塀町
- 神田花岡町
- 神田松永町
- 外神田
- 神田平河町