クレグラン新橋III(物件No:81285184)
クレグラン新橋IIIは港区新橋にある地下1階、地上9階建ての賃貸事務所です。最寄駅は都営三田線の内幸町駅から徒歩5分、東京メトロ銀座線の新橋駅から徒歩7分、JR線の新橋駅から徒歩6分、都営浅草線の新橋駅から徒歩6分、都営浅草線の新橋駅から徒歩6分です。1987年7月竣工の基準階面積が42.62坪の鉄骨鉄筋コンクリート造です。設備としては、エレベーターが1基あります。セキュリティは機械警備です。トイレは室外男女別です。空調は個別空調です。床仕様は2WAYです。天高は2400mmです。耐震設計となっている、複数路線利用可能なアクセスの良い港区新橋の賃貸オフィスです。
-
物件情報
-
設備情報
- トイレ
- 室外男女別
- 床
- 2WAY
- 空調
- 個別空調
- セキュリティ
- 有
- 駐車場
- 無
- 会議室
- -
- エレベーター
- 1基
- 天井高
- 2400mm
-
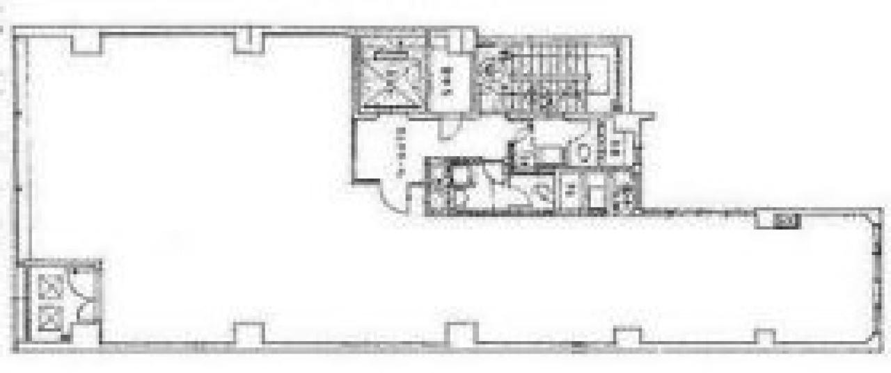
間取り図
-
近隣相場情報
新橋3丁目(40~50坪)の相場
調査中
周辺施設情報
| コンビニ |
ファミリーマート/新橋日比谷通り店/260m(徒歩3分) セブンイレブン/西新橋1丁目/350m(徒歩5分) |
|---|---|
| 郵便局/銀行 |
バンクタイム/ATM ファミリーマート 新橋西口通り店/[営業時間]全日/24H営業 ※毎週日曜日23:00~翌日7:00 および 毎月第二土曜日23:00~翌日8:00はご利用になれません。※店舗の営業時間により、ATM営業時間が変更となる場合があります/450m(徒歩6分) 香川銀行/東京支店/[営業時間](平日)09:00~15:00/600m(徒歩8分) |
| 飲食店 |
居酒屋コン/17時00分~23時30分/70m(徒歩1分) 京味/12時00分~14時00分、18時00分~22時00分/43m(徒歩1分) |
| カフェ |
ベローチェ/新橋四丁目店/[営業時間]6:45~22:00/400m(徒歩5分) スターバックス/慈恵大学病院店/[営業時間]月~土:7:00~19:00 [休業日]日・祝/500m(徒歩7分) |
| コインパーキング |
三井のリパーク/新橋4丁目第3 [料金] 全日 08:00~00:00 15分/400円 全日 00:00~08:00 60分/100円 [最大料金] 【全日】最大料金入庫当日24時まで4800円 [台数]6 PEN/港区新橋3丁目パーキング [料金] 月~土(祝日除く)【通常】8:00~24:00 20分 400円 24:00~8:00 60分 100円 日・祝【通常】8:00~24:00 20分 400円 24:00~8:00 60分 100円 [最大料金] 月~土(祝日除く)【最大】- 日・祝【最大】12時間最大2000円(繰り返し可) [台数]3 |
周辺地図
クレグラン新橋IIIは港区新橋にある地下1階、地上9階建ての賃貸事務所です。最寄駅は都営三田線の内幸町駅から徒歩5分、東京メトロ銀座線の新橋駅から徒歩7分、JR線の新橋駅から徒歩6分、都営浅草線の新橋駅から徒歩6分、都営浅草線の新橋駅から徒歩6分です。1987年7月竣工の基準階面積が42.62坪の鉄骨鉄筋コンクリート造です。設備としては、エレベーターが1基あります。セキュリティは機械警備です。トイレは室外男女別です。空調は個別空調です。床仕様は2WAYです。天高は2400mmです。耐震設計となっている、複数路線利用可能なアクセスの良い港区新橋の賃貸オフィスです。
全フロア情報
更新日:2026年3月6日
| 階 | 面積 | 賃料 | 共益費 | 敷金 | 入居日 | お問合せ | お気に入り | |
|---|---|---|---|---|---|---|---|---|
| 1F |
29.81 坪 98.55 ㎡ |
※現在空室情報はございません |
※現在空室情報は 確認する |
|||||
| 3F |
42.62 坪 140.89 ㎡ |
※現在空室情報はございません |
※現在空室情報は 確認する |
|||||
| 4F |
42.62 坪 140.89 ㎡ |
※現在空室情報はございません |
※現在空室情報は 確認する |
|||||
| 5F |
42.62 坪 140.89 ㎡ |
※現在空室情報はございません |
※現在空室情報は 確認する |
|||||
| 6F |
38.6 坪 127.6 ㎡ |
※現在空室情報はございません |
※現在空室情報は 確認する |
|||||
| 7F |
29.29 坪 96.83 ㎡ |
※現在空室情報はございません |
※現在空室情報は 確認する |
|||||
| 8F |
23.72 坪 78.41 ㎡ |
※現在空室情報はございません |
※現在空室情報は 確認する |
|||||
お問い合わせ
似た条件の物件はこちら
-
石井ビル
東京都港区新橋3-1-10
坪数:33.46 坪
坪単価:16,000 円(坪)
-
汐留AZビル
東京都港区東新橋2-6-6
坪数:35.09 坪
坪単価:16,000 円(坪)
-
第2小川ビル
東京都港区東新橋2-11-3
坪数:32.14 坪
坪単価:17,000 円(坪)
-
新橋NKKビル
東京都港区西新橋2-18-2
坪数:37.93 坪
坪単価:12,022 円(坪)
-
中村ビル
東京都港区新橋4-24-11
坪数:35 坪
坪単価:14,500 円(坪)
-
須田ビル(本館)
東京都港区西新橋1-17-8
坪数:33.74 坪
坪単価:13,000 円(坪)
-
belle汐留
東京都港区東新橋1-2-14
坪数:34.03 坪
坪単価:13,488 円(坪)
-
カルチャーセンタービル
東京都港区新橋5-10-8
坪数:32.11 坪
坪単価:12,500 円(坪)
-
明宏ビル別館
東京都港区新橋1-18-2
坪数:50.32 坪
坪単価:17,000 円(坪)
-
虎ノ門南ビル
東京都港区虎ノ門3-3-3
坪数:37.62 坪
坪単価:12,500 円(坪)