モン・パピール(物件No:81285175)
モン・パーピルは、港区南青山にある貸事務所物件です。最寄り駅は東京メトロ銀座線、半蔵門線表参道駅、東京メトロ千代田線乃木坂駅、東京メトロ銀座線の外苑前駅です。1977年竣工の賃貸オフィスビルです。空調は個別空調で、駐車場があります。複数路線利用可能な、アクセスの良い港区南青山の貸事務所です。
| 階 | 面積 | 賃料 | 共益費 | 敷金 | 入居日 | お問合せ | お気に入り | |
|---|---|---|---|---|---|---|---|---|
|
2F
(203区画) |
15.03 坪 49.69 ㎡ |
※現在空室情報はございません |
※現在空室情報は 確認する |
|||||
-
物件情報
-
設備情報
- トイレ
- 室内男女共用
- 床
- -
- 空調
- 個別空調
- セキュリティ
- -
- 駐車場
- 有
- 会議室
- -
- エレベーター
- -
- 天井高
- -
-
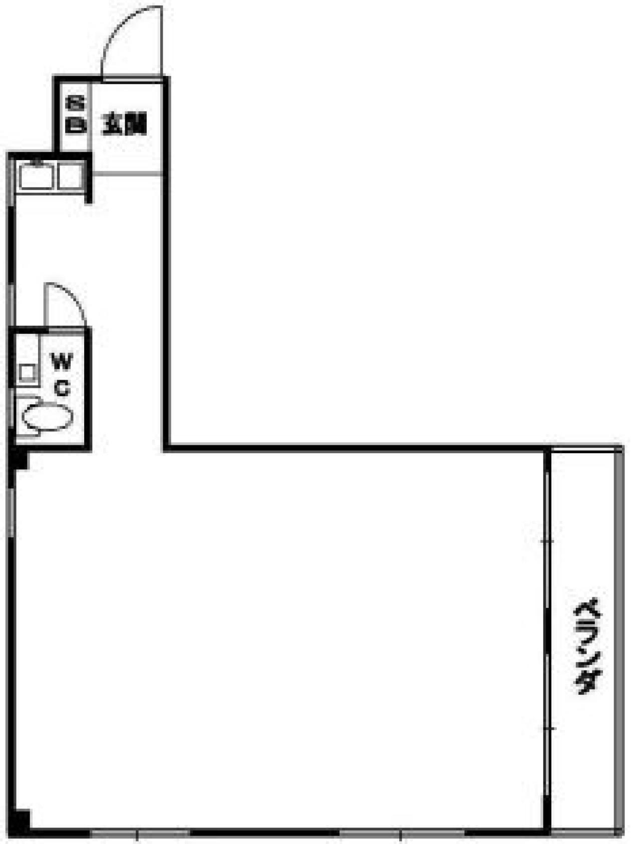
間取り図
-
近隣相場情報
南青山4丁目(20坪以下)の相場
調査中
周辺施設情報
| コンビニ |
ファミリーマート/南青山四丁目店/33m(徒歩1分) セブンイレブン/原宿表参道/850m(徒歩11分) |
|---|---|
| 郵便局/銀行 |
きらぼし銀行/東京みらい営業部/[営業時間]店舗 平日 9:00~15:00 土曜日 - 日・祝日 - ATM 平日 8:00~21:00 土曜日 8:00~21:00 日・祝日 8:00~21:00/450m(徒歩5分) セブン銀行/北青山青山通り店/[営業時間]24時間営業 [備考]1 台/500m(徒歩7分) |
| 飲食店 |
apero/18時00分~0時00分/160m(徒歩2分) WINE LIVING Signature/18時00分~2時00分/650m(徒歩8分) |
| カフェ |
OVE/10時00分~18時00分/91m(徒歩1分) Cafeteria Maravilla/13時00分~17時00分/400m(徒歩5分) |
| コインパーキング |
三井のリパーク/南青山3丁目第6 [料金] 平日 08:00~22:00 20分/400円、平日 22:00~08:00 60分/100円 日祝 08:00~22:00 20分/400円、日祝 22:00~08:00 60分/100円 [最大料金] 【月~土】最大料金入庫当日24時まで4200円 【日祝】最大料金入庫当日24時まで2000円 [台数]12 タイムズ駐車場/南青山4丁目第2 [料金] [全日]07:00-19:00 15分 300円 [全日]19:00-07:00 60分 100円 [最大料金] [全日]駐車後6時間 最大料金3500円 [台数]6 |
周辺地図
モン・パーピルは、港区南青山にある貸事務所物件です。最寄り駅は東京メトロ銀座線、半蔵門線表参道駅、東京メトロ千代田線乃木坂駅、東京メトロ銀座線の外苑前駅です。1977年竣工の賃貸オフィスビルです。空調は個別空調で、駐車場があります。複数路線利用可能な、アクセスの良い港区南青山の貸事務所です。
全フロア情報
更新日:2026年3月6日
| 階 | 面積 | 賃料 | 共益費 | 敷金 | 入居日 | お問合せ | お気に入り | |
|---|---|---|---|---|---|---|---|---|
| 1F |
33.28 坪 110.02 ㎡ |
※現在空室情報はございません |
※現在空室情報は 確認する |
|||||
|
2F
(202区画) |
13.48 坪 44.55 ㎡ |
※現在空室情報はございません |
※現在空室情報は 確認する |
|||||
|
2F
(203区画) |
15.03 坪 49.69 ㎡ |
※現在空室情報はございません |
※現在空室情報は 確認する |
|||||
|
3F
(302区画) |
12.91 坪 42.68 ㎡ |
※現在空室情報はございません |
※現在空室情報は 確認する |
|||||
|
3F
(303区画) |
15.29 坪 50.55 ㎡ |
※現在空室情報はございません |
※現在空室情報は 確認する |
|||||
お問い合わせ
似た条件の物件はこちら
-
メゾン青山
東京都港区北青山2-7-26
坪数:18.75 坪
坪単価:18,230 円(坪)
-
たつむら青山マンション(青南吉川興産ビル)
東京都港区南青山5-4-35
坪数:11.4 坪
坪単価:19,298 円(坪)
-
青山アレー
東京都港区南青山6-4-6
坪数:16.2 坪
坪単価:26,543 円(坪)
-
ティアック青山
東京都港区北青山3-10-21
坪数:16.52 坪
坪単価:22,397 円(坪)
-
リーラ乃木坂
東京都港区南青山1-15-18
坪数:17.2 坪
坪単価:18,000 円(坪)
-
クレアトゥール南青山
東京都港区南青山3-8-7
坪数:13.59 坪
坪単価:16,924 円(坪)
-
南青山セピアコート
東京都港区南青山6-8-3
坪数:18.09 坪
坪単価:21,006 円(坪)
-
シグマ南青山ビル
東京都港区南青山2-11-14
坪数:14.16 坪
坪単価:40,000 円(坪)
-
美松ビル
東京都港区南青山1-4-17
坪数:18.91 坪
坪単価:20,624 円(坪)
-
ARISTO南青山
東京都港区南青山2-11-11
坪数:18.16 坪
坪単価:26,000 円(坪)