ACN日本橋ビル(物件No:81280172)
ACN日本橋ビル(旧:日本橋RBビル)は中央区日本橋箱崎町にある地下1階、地上7階建ての賃貸事務所です。最寄駅は東京メトロ日比谷線の茅場町駅から徒歩4分、東京メトロ日比谷線の人形町駅から徒歩7分、東京メトロ半蔵門線の水天宮前駅から徒歩5分、東京メトロ東西線の茅場町駅から徒歩6分です。1992年9月竣工の基準階面積が49.39坪の鉄骨鉄筋コンクリート造です。設備としてはエレベーターが1基あり、駐車場もあります。機械警備もあります。トイレは室内男女別です。空調は個別空調です。床仕様はフリーアクセスです。天高は2500mmです。耐震性は新耐震となっている、複数駅利用可能な、アクセスの良い中央区日本橋箱崎町の賃貸オフィスです。
| 階 | 面積 | 賃料 | 共益費 | 敷金 | 入居日 | お問合せ | お気に入り |
|---|---|---|---|---|---|---|---|
| 3F |
49.39 坪 163.27 ㎡ |
相談 |
込 |
8ヶ月 |
2026/07 |
|
|
| 階 | 面積 | 賃料 | 共益費 | 敷金 | 入居日 | お問合せ | お気に入り |
|---|---|---|---|---|---|---|---|
| 3F |
49.39 坪 163.27 ㎡ |
相談 |
込 |
8ヶ月 |
2026/07 |
|
|
-
物件情報
-
設備情報
- トイレ
- 室内男女別
- 床
- フリーアクセス
- 空調
- 個別空調
- セキュリティ
- 有
- 駐車場
- 有
- 会議室
- -
- エレベーター
- 1基
- 天井高
- 2500mm
-
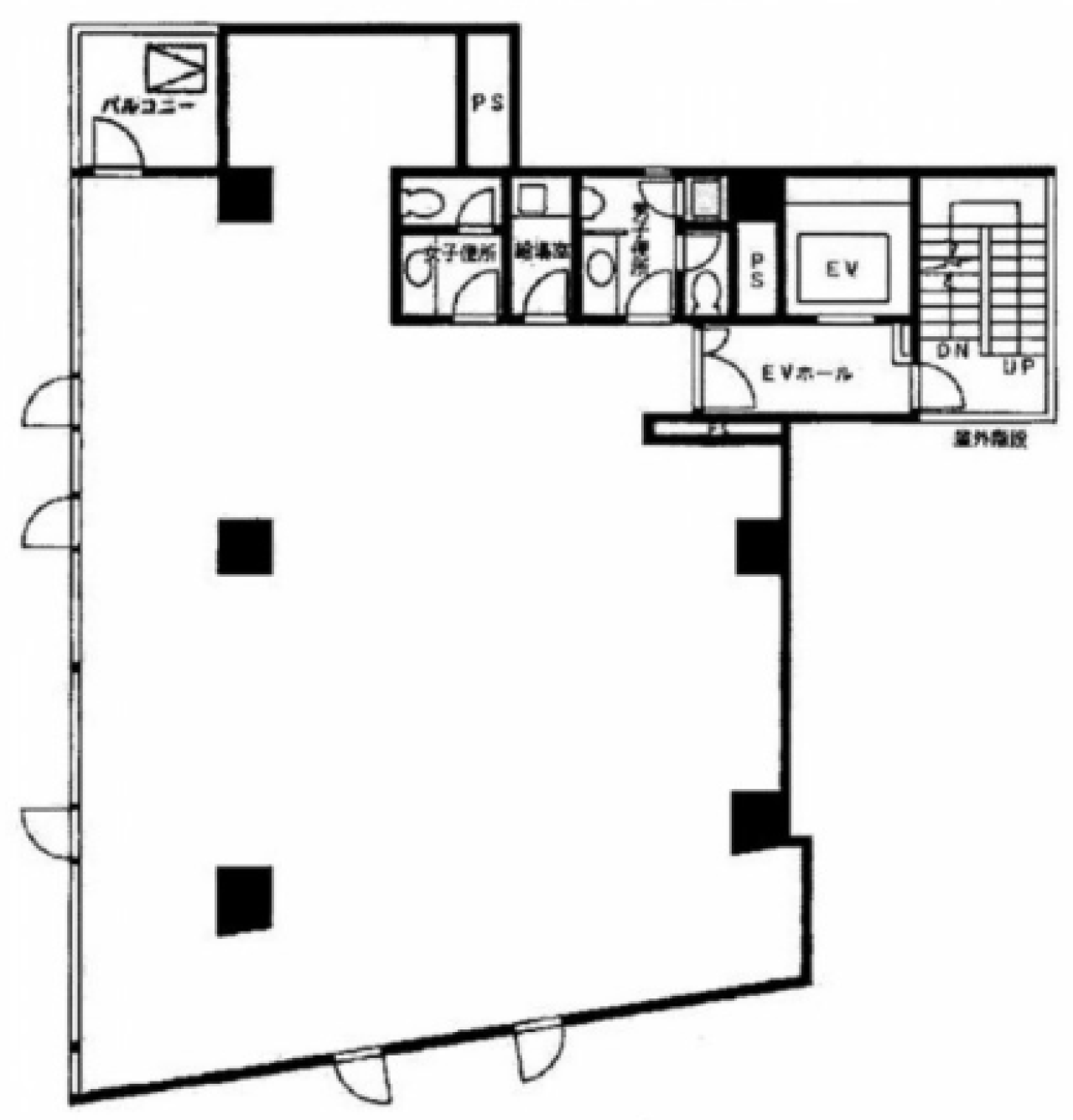
間取り図
-
近隣相場情報
日本橋箱崎町10丁目(40~50坪)の相場
13261 円 (坪)
※ビルサク調べ
周辺施設情報
| コンビニ |
ファミリーマート/IBM箱崎ビル店/300m(徒歩4分) ローソン/箱崎湊橋/270m(徒歩3分) |
|---|---|
| 郵便局/銀行 |
郵便局/IBM箱崎ビル内/[駐車場]なし/230m(徒歩3分) イーネット/ファミリーマートIBM箱崎ビル/[営業時間]7:00~23:00/300m(徒歩4分) |
| 飲食店 |
ぽえむ 日本橋店/9時00分~18時00分/140m(徒歩2分) 炭火焼肉 ふくぶく/17時00分~23時30分/180m(徒歩2分) |
| カフェ |
タリーズ/IBM箱崎店/[営業時間]平日:7:00~19:00 土 :休業日 日祝:休業日/260m(徒歩3分) カフェドクリエ/箱崎町/[営業時間][平 日] 7:30-18:00 [土日祝] (土)休業 (日/祝)休業/290m(徒歩4分) |
| コインパーキング |
三井のリパーク/日本橋箱崎町第8 [料金] [料金]平日 08:00~22:00 15分/300円 平日 22:00~08:00 60分/100円 日祝 08:00~22:00 15分/300円 日祝 22:00~08:00 60分/100円 [最大料金] 最大料金 【月~土】8:00~22:00以内 最大料金3200円 【月~土】22:00~8:00以内 最大料金500円 【日祝】8:00~22:00以内 最大料金1200円 【日祝】22:00~8:00以内 最大料金500円 [台数]3 タイムズ駐車場/日本橋箱崎町第3 [料金] [月~土]通常料金 / 0:00~0:00 20分 330円 [日・祝]通常料金 / 0:00~0:00 20分 330円 [最大料金] [月~土]8:00~19:00 最大料金2860円 19:00~8:00 最大料金440円 [日・祝]8:00~19:00 最大料金1100円 19:00~8:00 最大料金440円 [台数]4 |
周辺地図
ACN日本橋ビル(旧:日本橋RBビル)は中央区日本橋箱崎町にある地下1階、地上7階建ての賃貸事務所です。最寄駅は東京メトロ日比谷線の茅場町駅から徒歩4分、東京メトロ日比谷線の人形町駅から徒歩7分、東京メトロ半蔵門線の水天宮前駅から徒歩5分、東京メトロ東西線の茅場町駅から徒歩6分です。1992年9月竣工の基準階面積が49.39坪の鉄骨鉄筋コンクリート造です。設備としてはエレベーターが1基あり、駐車場もあります。機械警備もあります。トイレは室内男女別です。空調は個別空調です。床仕様はフリーアクセスです。天高は2500mmです。耐震性は新耐震となっている、複数駅利用可能な、アクセスの良い中央区日本橋箱崎町の賃貸オフィスです。
全フロア情報
更新日:2026年4月14日
| 階 | 面積 | 賃料 | 共益費 | 敷金 | 入居日 | お問合せ | お気に入り | |
|---|---|---|---|---|---|---|---|---|
| 1F |
14.58 坪 48.2 ㎡ |
※現在空室情報はございません |
※現在空室情報は 確認する |
|||||
| 2F |
49.38 坪 163.24 ㎡ |
※現在空室情報はございません |
※現在空室情報は 確認する |
|||||
| 3F |
49.39 坪 163.27 ㎡ |
相談 |
込 |
8ヶ月 |
2026/07 |
|
|
|
| 4F |
49.39 坪 163.27 ㎡ |
※現在空室情報はございません |
※現在空室情報は 確認する |
|||||
| 5F |
49.39 坪 163.27 ㎡ |
※現在空室情報はございません |
※現在空室情報は 確認する |
|||||
| 5+7BF |
61.54 坪 203.44 ㎡ |
※現在空室情報はございません |
※現在空室情報は 確認する |
|||||
|
7F
(A区画) |
19.82 坪 65.52 ㎡ |
※現在空室情報はございません |
※現在空室情報は 確認する |
|||||
|
7F
(A+B区画) |
31.98 坪 105.72 ㎡ |
※現在空室情報はございません |
※現在空室情報は 確認する |
|||||
|
7F
(B区画) |
12.15 坪 40.17 ㎡ |
※現在空室情報はございません |
※現在空室情報は 確認する |
|||||
お問い合わせ
似た条件の物件はこちら
-
オーキッドプレイス蛎殻町ビル
東京都中央区日本橋蛎殻町1-4-1
坪数:51.15 坪
坪単価:15,000 円(坪)
-
Grandir 日本橋小伝馬町
東京都中央区日本橋小伝馬町18-1
坪数:44.34 坪
坪単価:24,000 円(坪)
-
吉野第二ビル
東京都中央区日本橋馬喰町1-6-6
坪数:41.44 坪
坪単価:10,000 円(坪)
-
アライズ第2ビル
東京都中央区日本橋箱崎町5-4
坪数:52.8 坪
坪単価:11,000 円(坪)
-
(仮称)びいんず馬喰町駅前ビル
東京都中央区日本橋馬喰町1-11-2
坪数:42.19 坪
坪単価:18,962 円(坪)
-
カズキビル
東京都中央区日本橋浜町2-36-8
坪数:48.12 坪
坪単価:18,000 円(坪)
-
EDGE小伝馬町ビル
東京都中央区日本橋小伝馬町15-18
坪数:48.82 坪
坪単価:20,000 円(坪)
-
日本橋白馬ビル
東京都中央区日本橋小網町18-6
坪数:42 坪
坪単価:17,000 円(坪)
-
THE PORTAL Nihombashi East
東京都中央区日本橋小伝馬町21-1
坪数:39.66 坪
坪単価:22,000 円(坪)
-
日本橋山大ビル
東京都中央区日本橋小舟町6-3
坪数:48.54 坪
坪単価:15,000 円(坪)
関連エリアから探す
- 日本橋大伝馬町
- 日本橋蛎殻町
- 日本橋小網町
- 日本橋小伝馬町
- 日本橋小舟町
- 日本橋富沢町
- 日本橋人形町
- 日本橋箱崎町
- 日本橋堀留町
- 日本橋中洲
- 日本橋馬喰町
- 日本橋浜町
- 日本橋久松町
- 日本橋横山町
- 東日本橋