NGA紀尾井町ビルディング(物件No:71984058)
NGA紀尾井町ビルディング(フルヤビルディング)は、千代田区紀尾井町にある貸事務所物件です。最寄駅は、東京メトロ有楽町線麹町駅、東京メトロ銀座線、丸ノ内線赤坂見附駅、東京メトロ南北線、半蔵門線永田町駅です。1990年竣工で、基準階が40.66坪の賃貸オフィスビルです。床はOAフロアで、天井の高さは2400mmほどとなっています。トイレは室内男女別で、空調は個別空調です。エレベーターは1基あり、セキュリティは機械警備となっています。駐車場もございます。複数路線利用可能で交通アクセスの良い、千代田区紀尾井町の貸事務所です。
| 階 | 面積 | 賃料 | 共益費 | 敷金 | 入居日 | お問合せ | お気に入り | |
|---|---|---|---|---|---|---|---|---|
|
4F
(401区画) |
40.68 坪 134.48 ㎡ |
※現在空室情報はございません |
※現在空室情報は 確認する |
|||||
| 階 | 面積 | 賃料 | 共益費 | 敷金 | 入居日 | お問合せ | お気に入り | |
|---|---|---|---|---|---|---|---|---|
|
4F
(401区画) |
40.68 坪 134.48 ㎡ |
※現在空室情報はございません |
※現在空室情報は 確認する |
|||||
-
物件情報
-
設備情報
- トイレ
- 室外男女別
- 床
- フリーアクセス
- 空調
- 個別空調
- セキュリティ
- 有
- 駐車場
- 有
- 会議室
- -
- エレベーター
- 1基
- 天井高
- 2400mm
-
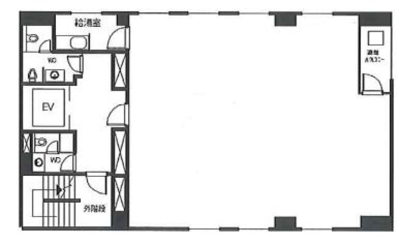
間取り図
-
近隣相場情報
紀尾井町3丁目(40~50坪)の相場
19666 円 (坪)
※ビルサク調べ
周辺施設情報
| コンビニ |
ファミリーマート/紀尾井町店/120m(徒歩1分) セブンイレブン/千代田区麹町3丁目/270m(徒歩4分) |
|---|---|
| 郵便局/銀行 |
ゆうちょ/都道府県会館内郵便局/[駐車場]なし [取扱]郵便/貯金/保険/ATM/350m(徒歩4分) 三菱UFJ銀行/麹町中央支店/[営業時間] [窓口]平日 9:00~15:00 土曜日 - 日曜日 - *祝日・休日および12月31日、1月1日~3日は営業いたしません。 [ATM]平日 7:00~24:00 土曜日 7:00~24:00 日・祝日 7:00~24:00 *毎月第2土曜日の21:00~翌朝7:00はご利用いただけ/400m(徒歩5分) |
| 飲食店 |
ガンシップ 東京店/11時30分~14時00分、17時30分~21時00分/700m(徒歩8分) タワー・ビュッフェ/17時00分~23時00分/750m(徒歩9分) |
| カフェ |
ノニーノ/8時00分~21時00分/300m(徒歩4分) トムキャット ニューオータニ店/11時30分~21時00分/650m(徒歩8分) |
| コインパーキング |
SANパーク/千代田平河町 1 [料金] オールタイム20分300円 [最大料金] 【日祝】24時間最大1,400円 【全日】夜間(22時~8時)最大400円 ※上限繰り返し適用 [台数]車:3台 タイムズ/TNS紀尾井町ビル [料金] [月~土]通常料金 / 8:00~22:00 20分 300円 22:00~8:00 60分 100円 [日・祝]通常料金 / 8:00~22:00 20分 300円 22:00~8:00 60分 100円 [最大料金] [月~土]当日1日最大料金3300円(24時迄) [日・祝]当日1日最大料金1200円(24時迄) [台数]48 |
周辺地図
NGA紀尾井町ビルディング(フルヤビルディング)は、千代田区紀尾井町にある貸事務所物件です。最寄駅は、東京メトロ有楽町線麹町駅、東京メトロ銀座線、丸ノ内線赤坂見附駅、東京メトロ南北線、半蔵門線永田町駅です。1990年竣工で、基準階が40.66坪の賃貸オフィスビルです。床はOAフロアで、天井の高さは2400mmほどとなっています。トイレは室内男女別で、空調は個別空調です。エレベーターは1基あり、セキュリティは機械警備となっています。駐車場もございます。複数路線利用可能で交通アクセスの良い、千代田区紀尾井町の貸事務所です。
全フロア情報
更新日:2026年4月2日
| 階 | 面積 | 賃料 | 共益費 | 敷金 | 入居日 | お問合せ | お気に入り | |
|---|---|---|---|---|---|---|---|---|
|
1F
(101区画) |
33.34 坪 110.21 ㎡ |
※現在空室情報はございません |
※現在空室情報は 確認する |
|||||
|
2F
(201区画) |
40.68 坪 134.48 ㎡ |
610,200 円 15,000 円(坪) |
122,108 円 3,000 円(坪) |
4,881,600 円 8 ヶ月 |
2026/05/19 |
|
|
|
|
3F
(301区画) |
40.68 坪 134.48 ㎡ |
※現在空室情報はございません |
※現在空室情報は 確認する |
|||||
|
4F
(401区画) |
40.68 坪 134.48 ㎡ |
※現在空室情報はございません |
※現在空室情報は 確認する |
|||||
|
5F
(501区画) |
40.68 坪 134.48 ㎡ |
※現在空室情報はございません |
※現在空室情報は 確認する |
|||||
|
6F
(601区画) |
52.82 坪 174.61 ㎡ |
※現在空室情報はございません |
※現在空室情報は 確認する |
|||||
お問い合わせ
似た条件の物件はこちら
-
TYビル
東京都千代田区九段南2-3-23
坪数:40.25 坪
坪単価:23,602 円(坪)
-
エヌワンビル
東京都千代田区麹町3-2-3
坪数:37.8 坪
坪単価:21,000 円(坪)
-
プリンス通ビル
東京都千代田区紀尾井町3-33
坪数:38 坪
坪単価:13,158 円(坪)
-
US半蔵門ビル
東京都千代田区隼町2-13
坪数:42.31 坪
坪単価:14,000 円(坪)
-
番町ハイム
東京都千代田区二番町1
坪数:33.16 坪
坪単価:14,867 円(坪)
-
サンライン第14ビル
東京都千代田区九段北4-3-16
坪数:48.74 坪
坪単価:12,727 円(坪)
-
桜ビル
東京都千代田区九段北4-2-2
坪数:35.14 坪
坪単価:14,229 円(坪)
-
一番町館
東京都千代田区一番町22-4
坪数:46.16 坪
坪単価:20,000 円(坪)
-
宮ビル
東京都千代田区麹町4-3-4
坪数:33.22 坪
坪単価:12,041 円(坪)
-
麹町アネックス
東京都千代田区麹町4-5-10
坪数:45.65 坪
坪単価:11,610 円(坪)