Shinto GINZA EAST(物件No:71982142)
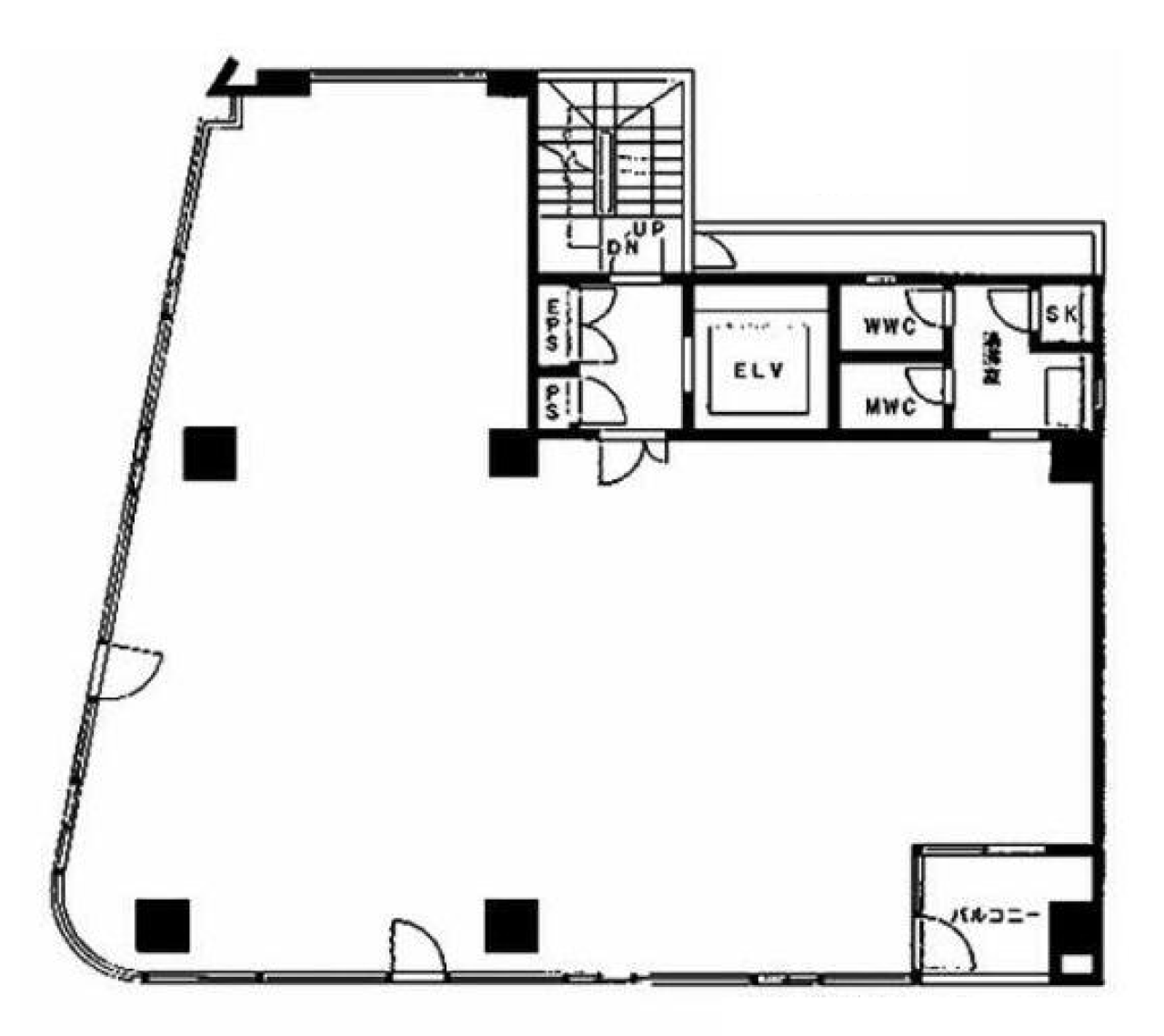
Shinto GINZA EASTビルは、中央区築地にある貸事務所物件です。最寄り駅は、東京メトロ日比谷線の東銀座駅、築地駅、八丁堀駅、東京メトロ有楽町線の新富町駅、都営浅草線の東銀座駅です。1990年竣工で、基準階が46.35坪の賃貸オフィスビルです。天高は2550mmで、床はOAフロアとなっています。空調は個別空調でトイレは室内にあり、男女別です。機械警備で、エレベーターは1基あります。複数路線利用可能な、アクセスの良い中央区築地の貸事務所です。
-
物件情報
-
設備情報
- トイレ
- 室内男女別
- 床
- フリーアクセス
- 空調
- 個別空調
- セキュリティ
- 有
- 駐車場
- 無
- 会議室
- -
- エレベーター
- 1基
- 天井高
- 2550mm
-
間取り図
-
近隣相場情報
築地3丁目(40~50坪)の相場
18513 円 (坪)
※ビルサク調べ
周辺施設情報
| コンビニ |
ローソン/H築地三丁目/5m(徒歩1分) ファミリーマート/新富町駅前店/94m(徒歩1分) |
|---|---|
| 郵便局/銀行 |
ローソン銀行/築地三丁目共同出張所/[営業時間]24時間/5m(徒歩1分) バンクタイム/ATM ファミリーマート 新富町駅前店/[営業時間]全日/24H営業/94m(徒歩1分) |
| 飲食店 |
さらしなの里/11時00分~21時45分/67m(徒歩1分) 鍛冶屋 文蔵 新富町店/11時30分~14時00分 17時00分~23時30分/78m(徒歩1分) |
| カフェ |
ホクオー/新富町店/[営業時間]平日 7:30~22:00 土日祝 9:00~20:00/190m(徒歩1分) ドトール/新富町店/[営業時間]平日:6:45~17:00 土曜日:8:00~17:00 日 祝:-/140m(徒歩2分) |
| コインパーキング |
タイムズ駐車場/築地聖ルカ通り [料金] [月~土]通常料金 / 0:00~0:00 12分 330円 [日・祝]通常料金 / 0:00~0:00 12分 330円 [最大料金] [月~土]20:00~8:00 最大料金660円 [日・祝]8:00~20:00 最大料金1980円 20:00~8:00 最大料金660円 [台数]3 三井のリパーク/築地2丁目第6 [料金] [料金]全日 02:00~08:00 60分/100円 全日 08:00~02:00 12分/400円 [台数]2 |
周辺地図
Shinto GINZA EASTビルは、中央区築地にある貸事務所物件です。最寄り駅は、東京メトロ日比谷線の東銀座駅、築地駅、八丁堀駅、東京メトロ有楽町線の新富町駅、都営浅草線の東銀座駅です。1990年竣工で、基準階が46.35坪の賃貸オフィスビルです。天高は2550mmで、床はOAフロアとなっています。空調は個別空調でトイレは室内にあり、男女別です。機械警備で、エレベーターは1基あります。複数路線利用可能な、アクセスの良い中央区築地の貸事務所です。
全フロア情報
更新日:2026年4月13日
| 階 | 面積 | 賃料 | 共益費 | 敷金 | 入居日 | お問合せ | お気に入り | |
|---|---|---|---|---|---|---|---|---|
| 3F |
47.56 坪 157.22 ㎡ |
※現在空室情報はございません |
※現在空室情報は 確認する |
|||||
| 4F |
47.56 坪 157.22 ㎡ |
※現在空室情報はございません |
※現在空室情報は 確認する |
|||||
| 5F |
46.35 坪 153.22 ㎡ |
※現在空室情報はございません |
※現在空室情報は 確認する |
|||||
| 6F |
46.35 坪 153.22 ㎡ |
※現在空室情報はございません |
※現在空室情報は 確認する |
|||||
| 7F |
47.56 坪 157.22 ㎡ |
※現在空室情報はございません |
※現在空室情報は 確認する |
|||||
お問い合わせ
似た条件の物件はこちら
-
Biz SQUARE築地
東京都中央区湊3-10-10
坪数:39.89 坪
坪単価:20,000 円(坪)
-
THE TERRACE TSUKIJI
東京都中央区築地7-2-1
坪数:50.96 坪
坪単価:26,000 円(坪)
-
U-Axis
東京都中央区入船2-2-14
坪数:55.92 坪
坪単価:14,500 円(坪)
-
八丁堀ウエストコート
東京都中央区湊1-9-8
坪数:39.85 坪
坪単価:10,038 円(坪)
-
明図ビル
東京都中央区明石町5-15
坪数:37.3 坪
坪単価:8,000 円(坪)
-
TSUKIJI EAST SQUARE
東京都中央区入船2-3-7
坪数:47.67 坪
坪単価:20,000 円(坪)
-
+SHIFT GINZA EAST
東京都中央区新富1-8-9
坪数:55.85 坪
坪単価:24,000 円(坪)
-
RINGOビル
東京都中央区築地7-2-13
坪数:47.31 坪
坪単価:12,682 円(坪)
-
湊SYビル
東京都中央区湊2-12-6
坪数:48.61 坪
坪単価:13,000 円(坪)
-
コンワビル
東京都中央区築地1-12-22
坪数:40.67 坪
坪単価:21,000 円(坪)