エム・エム・エスビルディング(物件No:71883104)
エム・エム・エスビルディングは港区芝にある地上7階建ての賃貸事務所です。最寄駅は都営浅草線の三田駅から徒歩4分、都営三田線の三田駅から徒歩4分、都営三田線の芝公園駅から徒歩6分、JR線の田町駅から徒歩8分です。2001年3月竣工の鉄筋コンクリート造です。設備としては、エレベーターが1基あります。空調は個別空調です。耐震設計となっている、複数路線利用可能なアクセスの良い港区芝の賃貸オフィスです。
-
物件情報
-
設備情報
- トイレ
- 室外男女共用
- 床
- -
- 空調
- 個別空調
- セキュリティ
- -
- 駐車場
- -
- 会議室
- -
- エレベーター
- 1基
- 天井高
- -
-
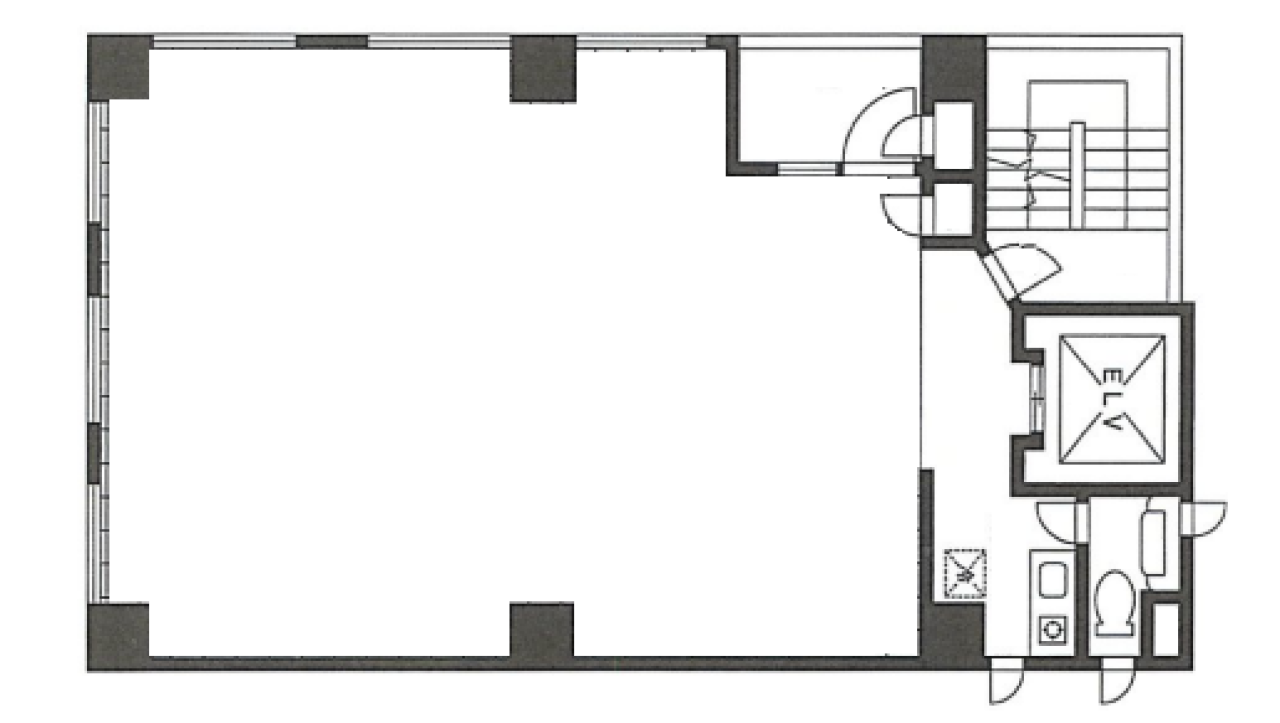
間取り図
-
近隣相場情報
芝2丁目(20~30坪)の相場
14554 円 (坪)
※ビルサク調べ
周辺施設情報
| コンビニ |
セブンイレブン/港区芝4丁目/120m(徒歩1分) ローソン/芝三丁目/400m(徒歩5分) |
|---|---|
| 郵便局/銀行 |
セブン銀行/三田駅北店/[営業時間]24時間営業 [ATM台数]1/300m(徒歩4分) みずほ銀行/ATM マルエツプチ芝二丁目店出張所/[営業時間]ATM 平日 /Monday - Friday 8:00~22:00 土曜日/Saturday 8:00~22:00 日曜日/Sunday 8:00~22:00 祝日・振替休日 /Public Holidays 曜日に準ずる 備考 通帳繰越機 設置なし/190m(徒歩2分) |
| 飲食店 |
タイ国屋台食堂ソイナナ/11時30分~14時30分、17時30分~22時30分/75m(徒歩1分) 東海飯店/17時00分~23時00分/51m(徒歩1分) |
| カフェ |
タリーズ/セレスティン芝三井ビルディング店/[営業時間]平日:7:00~20:30 土 :8:00~18:00 日祝:休業日 [備考]Tully's Wi-Fi/400m(徒歩5分) saiccoro/11時30分~14時00分、18時30分~23時00分/300m(徒歩4分) |
| コインパーキング |
コインパーク/芝2丁目第3 [料金] 【月~土】 ■通常料金 【00:00~24:00】20分400円 【日祝】 ■通常料金 【00:00~24:00】20分400円 [最大料金] 【月~土】 ■最大料金 【8:00~18:00】3400円 【18:00~8:00】400円 【日祝】 ■最大料金 【8:00~18:00】2700円 【18:00~8:00】400円 [台数][車: 4台] タイムズ駐車場/芝2丁目第5 [料金] [月~土]通常料金 / 08:00-22:00 15分 400円 22:00-08:00 60分 100円 [日・祝]通常料金 / 08:00-22:00 15分 400円 22:00-08:00 60分 100円 [最大料金] [日・祝]当日1日最大料金2000円(24時迄) [台数]3 |
周辺地図
エム・エム・エスビルディングは港区芝にある地上7階建ての賃貸事務所です。最寄駅は都営浅草線の三田駅から徒歩4分、都営三田線の三田駅から徒歩4分、都営三田線の芝公園駅から徒歩6分、JR線の田町駅から徒歩8分です。2001年3月竣工の鉄筋コンクリート造です。設備としては、エレベーターが1基あります。空調は個別空調です。耐震設計となっている、複数路線利用可能なアクセスの良い港区芝の賃貸オフィスです。
全フロア情報
更新日:2026年4月9日
| 階 | 面積 | 賃料 | 共益費 | 敷金 | 入居日 | お問合せ | お気に入り | |
|---|---|---|---|---|---|---|---|---|
| 2F |
24.05 坪 79.5 ㎡ |
※現在空室情報はございません |
※現在空室情報は 確認する |
|||||
| 3F |
24.05 坪 79.5 ㎡ |
450,000 円 18,711 円(坪) |
24,050 円 1,000 円(坪) |
1,800,000 円 4 ヶ月 |
2026/09/01 |
|
|
|
| 4F |
24.05 坪 79.5 ㎡ |
※現在空室情報はございません |
※現在空室情報は 確認する |
|||||
| 5F |
24.05 坪 79.5 ㎡ |
※現在空室情報はございません |
※現在空室情報は 確認する |
|||||
| 6F |
24.05 坪 79.5 ㎡ |
※現在空室情報はございません |
※現在空室情報は 確認する |
|||||
お問い合わせ
似た条件の物件はこちら
-
三洋ビル
東京都港区芝大門1-1-33
坪数:26.54 坪
坪単価:14,000 円(坪)
-
柴村ビル
東京都港区芝3-42-1
坪数:24.5 坪
坪単価:10,000 円(坪)
-
日建ビル
東京都港区海岸2-6-31
坪数:27.02 坪
坪単価:12,000 円(坪)
-
芝パークビル
東京都港区浜松町2-1-15
坪数:26 坪
坪単価:17,000 円(坪)
-
山口ビル
東京都港区芝公園1-7-7
坪数:22 坪
坪単価:11,364 円(坪)
-
EARTH SHIBA BLD
東京都港区芝2-10-6
坪数:22.47 坪
坪単価:29,000 円(坪)
-
奥山ビル
東京都港区芝5-20-10
坪数:23.74 坪
坪単価:12,637 円(坪)
-
中野第5ビル
東京都港区芝3-17-14
坪数:23.5 坪
坪単価:11,000 円(坪)
-
オーロラ三田
東京都港区三田2-17-29
坪数:19.5 坪
坪単価:28,000 円(坪)
-
第一浜松町ビル
東京都港区浜松町1-12-6
坪数:28.62 坪
坪単価:16,771 円(坪)