麹町1丁目3番ビル(物件No:71787028)
麹町1丁目3番ビルは、千代田区麹町にある貸事務所物件です。最寄り駅は、東京メトロ半蔵門線の半蔵門駅、東京メトロ有楽町線の麹町駅、JR中央・総武線の四ツ谷駅、東京メトロ有楽町線、半蔵門線、南北線の永田町駅、JR中央総武線の市ヶ谷駅です。1982年竣工で、基準階が26.02坪の賃貸オフィスビルです。床はOAフロアとなっております。空調は個別空調で、トイレは室内にあり、男女別です。エレベーターは1基あります。複数路線利用可能な、アクセスの良い千代田区麹町の貸事務所です。
-
物件情報
-
設備情報
- トイレ
- 室内男女別
- 床
- フリーアクセス
- 空調
- 個別空調
- セキュリティ
- -
- 駐車場
- 無
- 会議室
- -
- エレベーター
- 1基
- 天井高
- 2380mm
-
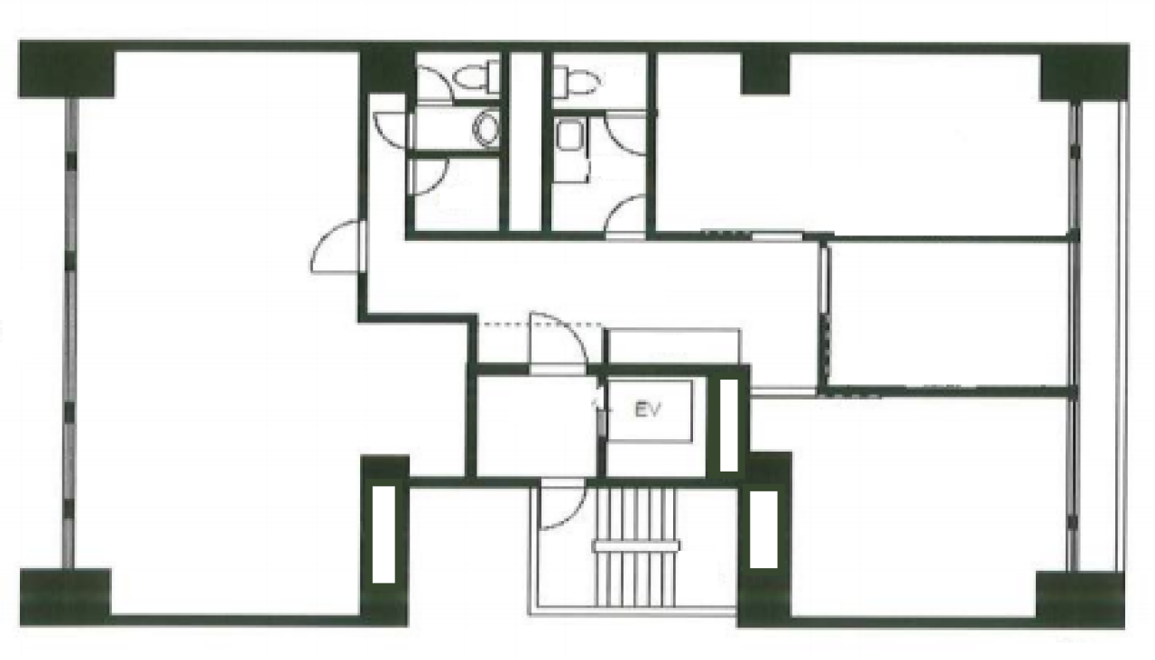
間取り図
-
近隣相場情報
麹町1丁目(40~50坪)の相場
21943 円 (坪)
※ビルサク調べ
周辺施設情報
| コンビニ |
ファミリーマート/紀尾井町三番地店/400m(徒歩5分) セブンイレブン/千代田一番町/450m(徒歩6分) |
|---|---|
| 郵便局/銀行 |
みずほ銀行/麹町支店/[営業時間] [窓口]平日9:00~15:00 [ATM]平日 6:00~26:00 土曜日 8:00~22:00 日曜日 8:00~21:00 祝日・振替休日 8:00~21:00 備考 *月曜日の6:00~7:00はご利用いただけません [駐車場]エコロパーク二番町第3/350m(徒歩5分) ゆうちょ/最高裁判所内郵便局/[駐車場]なし [取扱]郵便/貯金/保険/ATM/500m(徒歩6分) |
| 飲食店 |
アルゴ/11時30分~13時00分、18時00分~20時00分/270m(徒歩4分) 和バル銀~GIN~ 半蔵門平河町店/7時00分~10時00分、11時30分~15時00分、17時00分~22時00分/280m(徒歩4分) |
| カフェ |
カフェ・テリア/11時00分~14時30分、18時00分~21時00分/300m(徒歩4分) きよの/17時00分~23時00分/350m(徒歩4分) |
| コインパーキング |
ユアー・パーキング/平河町第3 [料金] 【全日】 08時~20時 15分/200円 【全日】20時~08時 60分/100円 [最大料金] 月~土:昼間最大(08時~20時の間)3,400円 日 祝:昼間最大(08時~20時の間)1,000円 全 日:夜間最大(20時~08時の間)400円 [台数]5 三井のリパーク/麹町1丁目第2 [料金] 全日 08:00~22:00 20分/500円 全日 22:00~08:00 60分/100円 [最大料金] 6~9、15、16、18~25、29、30に限り最大料金【全日】入庫当日24時まで2900円 [台数]30 |
周辺地図
麹町1丁目3番ビルは、千代田区麹町にある貸事務所物件です。最寄り駅は、東京メトロ半蔵門線の半蔵門駅、東京メトロ有楽町線の麹町駅、JR中央・総武線の四ツ谷駅、東京メトロ有楽町線、半蔵門線、南北線の永田町駅、JR中央総武線の市ヶ谷駅です。1982年竣工で、基準階が26.02坪の賃貸オフィスビルです。床はOAフロアとなっております。空調は個別空調で、トイレは室内にあり、男女別です。エレベーターは1基あります。複数路線利用可能な、アクセスの良い千代田区麹町の貸事務所です。
全フロア情報
更新日:2026年3月4日
| 階 | 面積 | 賃料 | 共益費 | 敷金 | 入居日 | お問合せ | お気に入り | |
|---|---|---|---|---|---|---|---|---|
| 2F |
42.84 坪 141.62 ㎡ |
※現在空室情報はございません |
※現在空室情報は 確認する |
|||||
|
3F
(302区画) |
26.2 坪 86.61 ㎡ |
471,600 円 18,000 円(坪) |
無 |
2,829,600 円 6 ヶ月 |
即日 |
|
|
|
|
4F
(401区画) |
19.67 坪 65.02 ㎡ |
※現在空室情報はございません |
※現在空室情報は 確認する |
|||||
|
4F
(402区画) |
21.93 坪 72.5 ㎡ |
※現在空室情報はございません |
※現在空室情報は 確認する |
|||||
|
5F
(501区画) |
19.67 坪 65.02 ㎡ |
※現在空室情報はございません |
※現在空室情報は 確認する |
|||||
|
5F
(502区画) |
21.93 坪 72.5 ㎡ |
※現在空室情報はございません |
※現在空室情報は 確認する |
|||||
| 7F |
19 坪 62.81 ㎡ |
※現在空室情報はございません |
※現在空室情報は 確認する |
|||||
お問い合わせ
似た条件の物件はこちら
-
TYビル
東京都千代田区九段南2-3-23
坪数:40.25 坪
坪単価:23,602 円(坪)
-
エヌワンビル
東京都千代田区麹町3-2-3
坪数:37.8 坪
坪単価:21,000 円(坪)
-
一番町村上ビル
東京都千代田区一番町9-7
坪数:32.84 坪
坪単価:12,000 円(坪)
-
東プレビル
東京都千代田区五番町4-2
坪数:39 坪
坪単価:15,000 円(坪)
-
US半蔵門ビル
東京都千代田区隼町2-13
坪数:42.31 坪
坪単価:14,000 円(坪)
-
サンライン第14ビル
東京都千代田区九段北4-3-16
坪数:48.74 坪
坪単価:12,727 円(坪)
-
桜ビル
東京都千代田区九段北4-2-2
坪数:35.14 坪
坪単価:14,229 円(坪)
-
一番町館
東京都千代田区一番町22-4
坪数:46.16 坪
坪単価:20,000 円(坪)
-
宮ビル
東京都千代田区麹町4-3-4
坪数:33.22 坪
坪単価:12,041 円(坪)
-
麹町アネックス
東京都千代田区麹町4-5-10
坪数:45.65 坪
坪単価:11,610 円(坪)