JMFビル神田01(物件No:71582089)
JMFビル神田01(旧:吉安神田ビル)は、千代田区岩本町にある貸事務所物件です。最寄り駅は東京メトロ日比谷線小伝馬町駅、都営新宿線岩本町駅、JR神田駅です。1989年竣工の賃貸オフィスビルです。床はOAフロアで、天井の高さは2590mm。トイレは室外男女別で、空調は個別空調です。エレベーターは2基あり、セキュリティは機械警備となっています。駐車場が利用可能です。複数路線利用可能で、交通アクセスの良い、千代田区岩本町の貸事務所です。
| 階 | 面積 | 賃料 | 共益費 | 敷金 | 入居日 | お問合せ | お気に入り |
|---|---|---|---|---|---|---|---|
| 5F |
136.98 坪 452.83 ㎡ |
相談 |
込 |
12ヶ月 |
2027/03/01 |
|
|
| 階 | 面積 | 賃料 | 共益費 | 敷金 | 入居日 | お問合せ | お気に入り |
|---|---|---|---|---|---|---|---|
| 5F |
136.98 坪 452.83 ㎡ |
相談 |
込 |
12ヶ月 |
2027/03/01 |
|
|
-
物件情報
-
設備情報
- トイレ
- 室外男女別
- 床
- フリーアクセス
- 空調
- 個別空調
- セキュリティ
- 有
- 駐車場
- 有
- 会議室
- 無
- エレベーター
- 2基
- 天井高
- 2590mm
-
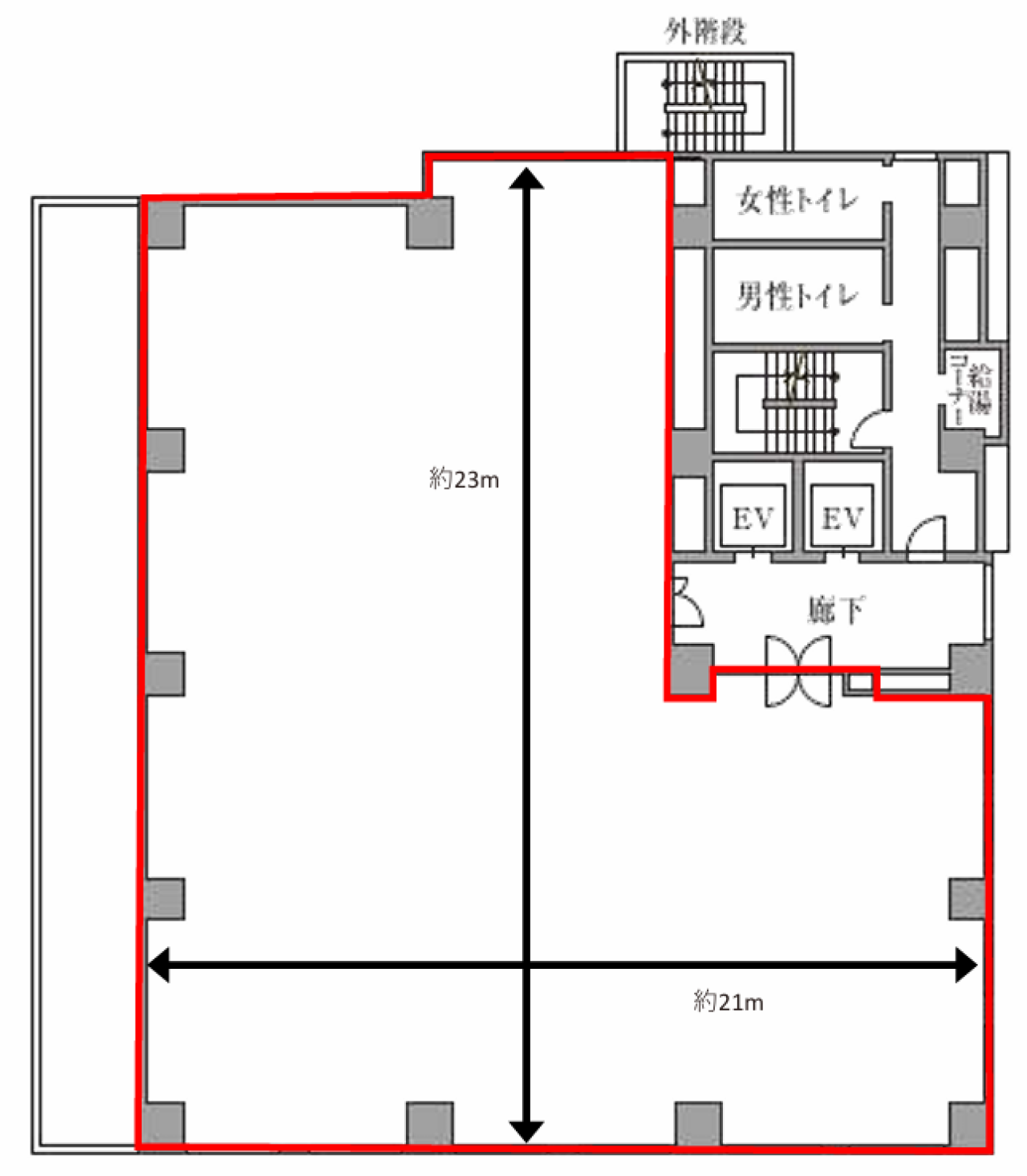
間取り図
-
近隣相場情報
岩本町2丁目(100坪以上)の相場
28000 円 (坪)
※ビルサク調べ
周辺施設情報
| コンビニ |
ポプラ/スリーエイト 神田東店/400m(徒歩5分) ファミリーマート/神田須田町一丁目店/250m(徒歩4分) |
|---|---|
| 郵便局/銀行 |
みずほ銀行/ATM ミニストップ神田富山町店出張所/[営業時間] [ATM]平日 0:00~24:00 土曜日 0:00~22:00 日曜日 8:00~24:00 祝日・振替休日 曜日に準ずる/450m(徒歩6分) イーネット/ファミリーマート薬ヒグチ淡路町/[営業時間]0:00~24:00/400m(徒歩6分) |
| 飲食店 |
和味和酒KOKORI/17時00分~23時00分/300m(徒歩5分) 万世麺店 本店/11時00分~23時00分/92m(徒歩1分) |
| カフェ |
ブルーボトル/神田万世橋カフェ/[営業時間]8:00~19:00(平日)9:00~19:30(土日)/220m(徒歩3分) ドトール/秋葉原和泉橋店/[営業時間]平日 6:50~21:30 土曜 7:30~20:30 日祝 8:00~19:30 [備考]総席数:74(禁煙席:74 喫煙席:0)/喫煙ブース(紙・加熱)/500m(徒歩6分) |
| コインパーキング |
タイムパーキング/神田 三井のリパーク/神田須田町2丁目第4 [料金] 全日 08:00~20:00 15分/300円 全日 20:00~08:00 60分/100円 [最大料金] 1.2番【全日】最大料金入庫当日24時まで3800円 3番【全日】最大料金入庫当日24時まで3100円 [台数]3 |
周辺地図
JMFビル神田01(旧:吉安神田ビル)は、千代田区岩本町にある貸事務所物件です。最寄り駅は東京メトロ日比谷線小伝馬町駅、都営新宿線岩本町駅、JR神田駅です。1989年竣工の賃貸オフィスビルです。床はOAフロアで、天井の高さは2590mm。トイレは室外男女別で、空調は個別空調です。エレベーターは2基あり、セキュリティは機械警備となっています。駐車場が利用可能です。複数路線利用可能で、交通アクセスの良い、千代田区岩本町の貸事務所です。
全フロア情報
更新日:2026年4月20日
| 階 | 面積 | 賃料 | 共益費 | 敷金 | 入居日 | お問合せ | お気に入り | |
|---|---|---|---|---|---|---|---|---|
| 2F |
135.96 坪 449.45 ㎡ |
※現在空室情報はございません |
※現在空室情報は 確認する |
|||||
| 3F |
136.98 坪 452.83 ㎡ |
※現在空室情報はございません |
※現在空室情報は 確認する |
|||||
| 4F |
136.98 坪 452.83 ㎡ |
相談 |
込 |
12ヶ月 |
2027/03/01 |
|
|
|
| 5F |
136.98 坪 452.83 ㎡ |
相談 |
込 |
12ヶ月 |
2027/03/01 |
|
|
|
| 7F |
137.01 坪 452.92 ㎡ |
※現在空室情報はございません |
※現在空室情報は 確認する |
|||||
| 8F |
49.15 坪 162.48 ㎡ |
※現在空室情報はございません |
※現在空室情報は 確認する |
|||||
お問い合わせ
似た条件の物件はこちら
-
大手町ゲートビルディング
東京都千代田区内神田1-31-11
坪数:157.45 坪
坪単価:63,512 円(坪)
-
廣瀬第1ビル
東京都千代田区神田錦町3-17
坪数:110.36 坪
坪単価:23,000 円(坪)
関連エリアから探す
- 内神田
- 神田淡路町
- 神田小川町
- 神田鍛冶町
- 神田須田町
- 神田駿河台
- 神田多町
- 神田司町
- 神田錦町
- 神田美土代町
- 岩本町
- 鍛冶町
- 神田岩本町
- 神田北乗物町
- 神田紺屋町
- 神田富山町
- 神田西福田町
- 神田東松下町
- 神田東紺屋町
- 神田美倉町
- 東神田
- 神田相生町
- 神田和泉町
- 神田佐久間町
- 神田佐久間河岸
- 神田練塀町
- 神田花岡町
- 神田松永町
- 外神田
- 神田平河町