カメリアビル(物件No:71484107)
カメリアビルは新宿区西新宿にある地上4階建ての賃貸事務所です。最寄駅は東京メトロ丸ノ内線の西新宿駅から徒歩2分、都営大江戸線の都庁前駅から徒歩6分、JR線の新大久保駅から徒歩8分、西武新宿線の西武新宿駅から徒歩8分、JR線の新宿駅から徒歩10分です。1992年9月竣工の基準階面積が46.66坪の鉄筋コンクリート造です。設備としては、エレベーターが1基あります。トイレは男女別です。空調は個別空調です。床仕様はフリーアクセスです。天高は2450mmです。耐震設計となっている、複数駅利用可能なアクセスの良い新宿区西新宿の賃貸オフィスです。
-
物件情報
-
設備情報
- トイレ
- 男女別
- 床
- フリーアクセス
- 空調
- 個別空調
- セキュリティ
- -
- 駐車場
- -
- 会議室
- -
- エレベーター
- 1基
- 天井高
- 2450mm
-
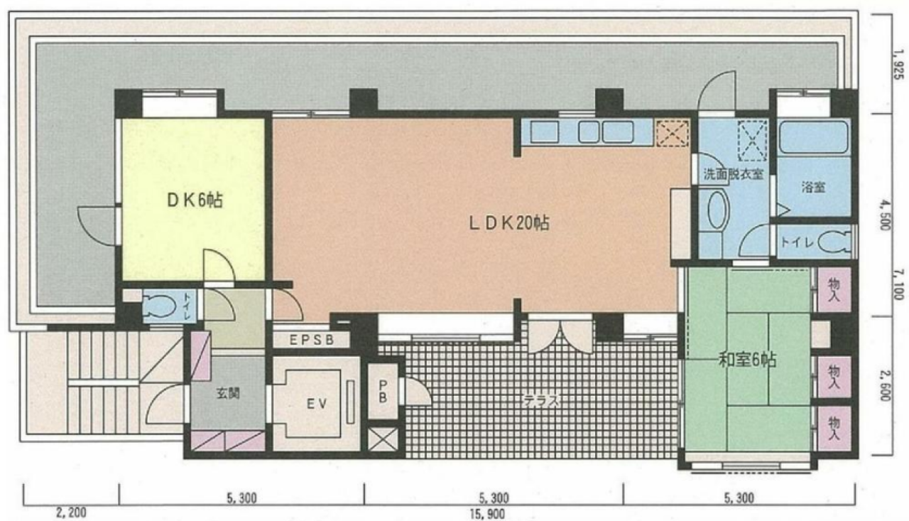
間取り図
-
近隣相場情報
西新宿8丁目(20~30坪)の相場
16000 円 (坪)
※ビルサク調べ
周辺施設情報
| コンビニ |
ファミリーマート/西新宿八丁目店/140m(徒歩2分) まいばすけっと/西新宿8丁目店/31m(徒歩1分) |
|---|---|
| 郵便局/銀行 |
セブン銀行/東京メトロ 丸ノ内線 西新宿駅/[ATM]平日 5:00~24:00 土曜日 5:00~22:00 日曜日 8:00~21:00 祝日・振替休日 曜日に準ずる/150m(徒歩2分) イーネット/ファミリーマート西新宿八丁目2号機/[営業時間]0:00~24:00/140m(徒歩2分) |
| 飲食店 |
麺屋武蔵 五輪洞/11時00分~22時30分/140m(徒歩2分) マクドナルド 西新宿駅前店/ 24 時間営業/290m(徒歩4分) |
| カフェ |
ドトール/新宿アイランド店/■通常営業時間 平日 7:00~20:00 土曜 8:00~18:00 日祝 8:00~17:00/200m(徒歩3分) タリーズ/西新宿駅前店/[営業時間]平日:7:00~21:30(L.O.21:00)土:8:00~20:00(L.O.19:30)日祝:8:30~19:00(L.O.18:30)/130m(徒歩2分) |
| コインパーキング |
名鉄協商パーキング/西新宿(東京医科大学病院) [料金] [料金]全日 0:00~24:00 30分 400円 [最大料金] 最大料金 1,000円 月~金・土 7:00~20:00 最大料金 2,000円 日祝 7:00~20:00 最大料金 1,500円 [台数]409台 コインパーク/西新宿8丁目第2 [料金] 【月~金】■通常料金【8:00~21:00】20分/200円【21:00~8:00】60分/100円 【月~金】■最大料金【8:00~21:00】2200円【21:00~8:00】300円 [最大料金] 【土日祝】■通常料金【8:00~21:00】20分/200円【21:00~8:00】60分/100円 【土日祝】 ■最大料金【8:00~21:00】1500円【21:00~8:00】300円 [台数] [車: 2台] |
周辺地図
カメリアビルは新宿区西新宿にある地上4階建ての賃貸事務所です。最寄駅は東京メトロ丸ノ内線の西新宿駅から徒歩2分、都営大江戸線の都庁前駅から徒歩6分、JR線の新大久保駅から徒歩8分、西武新宿線の西武新宿駅から徒歩8分、JR線の新宿駅から徒歩10分です。1992年9月竣工の基準階面積が46.66坪の鉄筋コンクリート造です。設備としては、エレベーターが1基あります。トイレは男女別です。空調は個別空調です。床仕様はフリーアクセスです。天高は2450mmです。耐震設計となっている、複数駅利用可能なアクセスの良い新宿区西新宿の賃貸オフィスです。
全フロア情報
更新日:2026年1月27日
| 階 | 面積 | 賃料 | 共益費 | 敷金 | 入居日 | お問合せ | お気に入り | |
|---|---|---|---|---|---|---|---|---|
| 2F |
46.66 坪 154.25 ㎡ |
※現在空室情報はございません |
※現在空室情報は 確認する |
|||||
| 3F |
46.66 坪 154.25 ㎡ |
606,450 円 12,997 円(坪) |
93,300 円 2,000 円(坪) |
3,638,700 円 6 ヶ月 |
2026/02 |
|
|
|
| 4F |
24.99 坪 82.61 ㎡ |
※現在空室情報はございません |
※現在空室情報は 確認する |
|||||
お問い合わせ
似た条件の物件はこちら
-
12-SHINJUKU
東京都新宿区西新宿1-1-6
坪数:25.76 坪
坪単価:28,649 円(坪)
-
新宿Qフラットビル
東京都新宿区新宿5-4-1
坪数:21.02 坪
坪単価:14,748 円(坪)
-
ANビル
東京都新宿区新宿1-15-8
坪数:20.42 坪
坪単価:14,691 円(坪)
-
第一山口ビル
東京都新宿区西新宿6-20-12
坪数:26.47 坪
坪単価:13,500 円(坪)
-
新宿須田ビル
東京都新宿区西新宿1-18-6
坪数:23.77 坪
坪単価:24,401 円(坪)
-
第二山口ビル
東京都新宿区西新宿6-20-12
坪数:25.84 坪
坪単価:13,495 円(坪)
-
NAビル
東京都新宿区西新宿7-22-41
坪数:28.9 坪
坪単価:20,000 円(坪)
-
共栄ビル
東京都新宿区西新宿7-1-11
坪数:20.5 坪
坪単価:21,951 円(坪)
-
アイアイビル
東京都新宿区西新宿7-6-8
坪数:19.6 坪
坪単価:12,245 円(坪)
-
第2関根ビル
東京都新宿区新宿1-25-14
坪数:24.96 坪
坪単価:12,019 円(坪)