港ビル(物件No:71381125)
港ビルは港区浜松町にある地下1階、地上6階建ての賃貸事務所です。最寄駅はJR線の浜松町駅から徒歩2分、都営大江戸線の大門駅から徒歩4分、都営浅草線の大門駅から徒歩4分です。1981年10月竣工の鉄骨鉄筋コンクリート造です。設備としては、エレベーターが1基、駐車場もあります。セキュリティは機械警備です。空調は個別空調です。床仕様はフリーアクセスです。耐震設計となっている、複数路線利用可能なアクセスの良い港区浜松町の賃貸オフィスです。
-
物件情報
-
設備情報
- トイレ
- 室内男女別
- 床
- タイルカーペット
- 空調
- 個別空調
- セキュリティ
- 有
- 駐車場
- 有
- 会議室
- -
- エレベーター
- 1基
- 天井高
- -
-
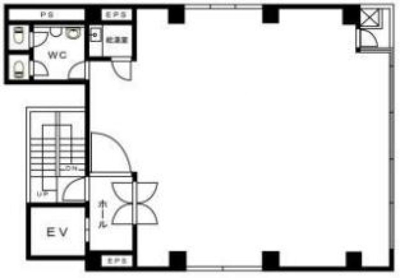
間取り図
-
近隣相場情報
浜松町1丁目(30~40坪)の相場
21111 円 (坪)
※ビルサク調べ
周辺施設情報
| コンビニ |
セブンイレブン/汐留ビルディング/500m(徒歩6分) NewDays/浜松町/300m(徒歩4分) |
|---|---|
| 郵便局/銀行 |
東日本銀行/浜松町支店/[営業時間] [窓口]平日 9:00~15:00 [ATM]平日 8:00~21:00 土曜 8:00~21:00 日祝 8:00~21:00 当座預金へのご入金は平日15:00までです。硬貨のご入金は平日17:00までです/250m(徒歩3分) 三菱UFJ銀行/ATM 浜松町駅/[営業時間] [ATM]平日 7:00~24:00 土曜日 7:00~24:00 日・祝日 7:00~24:00 *毎月第2土曜日の21:00~翌朝7:00はご利用いただけません/300m(徒歩4分) |
| 飲食店 |
凪/ランチ11:30A.M.~2:30P.M.、ディナー5:00P.M~11:00P.M./3m(徒歩1分) 東京しゃ門 浜松町本店/17時00分~2時00分/280m(徒歩3分) |
| カフェ |
タリーズ/汐留住友ビル店/[営業時間]平日:7:00~22:00 土 :8:00~20:00 日祝:8:00~20:00 [備考]Tully's Wi-Fi/700m(徒歩9分) FAITH COFFEE COMPANY/8時00分~17時00分/900m(徒歩12分) |
| コインパーキング |
タイムズ駐車場/浜松町第2 [料金] [月~土]通常料金 / 08:00-22:00 10分 300円 22:00-08:00 60分 100円 [日・祝]通常料金 / 08:00-22:00 10分 300円 22:00-08:00 60分 100円 [最大料金] [日・祝]当日1日最大料金2000円(24時迄) [台数]5 ナビパーク/芝大門第1 [料金] 全曜日 24:00~24:00 15分/300円 [最大料金] 夜間最大(全曜日) 20:00~8:00 800円 12時間最大(日・祝) 2,800円 3時間最大(平日・土) 2,600円 [台数]2台 その他区画 0台 |
周辺地図
港ビルは港区浜松町にある地下1階、地上6階建ての賃貸事務所です。最寄駅はJR線の浜松町駅から徒歩2分、都営大江戸線の大門駅から徒歩4分、都営浅草線の大門駅から徒歩4分です。1981年10月竣工の鉄骨鉄筋コンクリート造です。設備としては、エレベーターが1基、駐車場もあります。セキュリティは機械警備です。空調は個別空調です。床仕様はフリーアクセスです。耐震設計となっている、複数路線利用可能なアクセスの良い港区浜松町の賃貸オフィスです。
全フロア情報
更新日:2021年5月7日
| 階 | 面積 | 賃料 | 共益費 | 敷金 | 入居日 | お問合せ | お気に入り | |
|---|---|---|---|---|---|---|---|---|
| 3F |
38.00 坪 125.62 ㎡ |
※現在空室情報はございません |
※現在空室情報は 確認する |
|||||
| 4F |
38.00 坪 125.62 ㎡ |
※現在空室情報はございません |
※現在空室情報は 確認する |
|||||
お問い合わせ
似た条件の物件はこちら
-
大門アーバニストビル
東京都港区芝大門2-3-6
坪数:47.81 坪
坪単価:14,071 円(坪)
-
シントクビル
東京都港区芝3-14-6
坪数:45.28 坪
坪単価:14,000 円(坪)
-
Bizflex浜松町
東京都港区浜松町2-12-11
坪数:44.06 坪
坪単価:36,314 円(坪)
-
第二神明ビル
東京都港区芝大門2-9-15
坪数:32 坪
坪単価:11,000 円(坪)
-
喜多ビル
東京都港区芝大門1-3-6
坪数:32.36 坪
坪単価:13,133 円(坪)
-
ARZ芝公園
東京都港区芝2-23-1
坪数:30.63 坪
坪単価:28,000 円(坪)
-
サンワード浜松町
東京都港区浜松町2-13-14
坪数:47.84 坪
坪単価:12,000 円(坪)
-
マートルコート三田
東京都港区三田3-4-6
坪数:32.46 坪
坪単価:13,863 円(坪)
-
中野スプリングビル
東京都港区芝浦4-11-17
坪数:38.8 坪
坪単価:12,000 円(坪)
-
芝ビル
東京都港区芝3-28-3
坪数:44.61 坪
坪単価:19,996 円(坪)