寿パークビル(物件No:71286085)
寿パークビルは、渋谷区道玄坂にある貸事務所物件です。最寄り駅は、JR線、京王井の頭線、東京メトロ銀座線、半蔵門線、副都心線の渋谷駅、京王井の頭線の神泉駅です。2002年竣工で、基準階が110.2坪の賃貸オフィスビルです。天高は2500mmで、床はOAフロアとなっております。空調は個別空調で、トイレは室外にあり、男女別です。貸会議室があり、機械警備で、エレベーターは1基あります。駐車場が利用可能な、アクセスの良い渋谷区道玄坂の貸事務所です。
-
物件情報
-
設備情報
- トイレ
- 室外男女別
- 床
- フリーアクセス
- 空調
- 個別空調
- セキュリティ
- 有
- 駐車場
- 有
- 会議室
- 有
- エレベーター
- 1基
- 天井高
- 2500mm
-
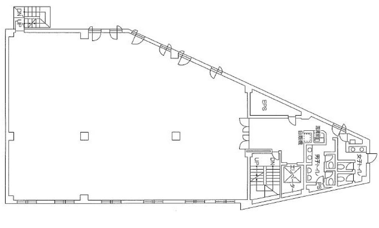
間取り図
-
近隣相場情報
道玄坂1丁目(50~100坪)の相場
25311 円 (坪)
※ビルサク調べ
周辺施設情報
| コンビニ |
セブンイレブン/渋谷道玄坂1丁目/300m(徒歩4分) ファミリーマート/渋谷円山町店/250m(徒歩3分) |
|---|---|
| 郵便局/銀行 |
みずほ銀行/ATM ミニストップ道玄坂2丁目店出張所/[営業時間]平日 0:00~24:00 土曜日 0:00~22:00 日曜日 8:00~24:00 祝日・振替休日 曜日に準ずる/400m(徒歩5分) セブン銀行/渋谷駅西店/[営業時間]24時間営業 [備考]2 台/400m(徒歩5分) |
| 飲食店 |
酒場きんぼし/17時00分~0時00分/130m(徒歩2分) 東京ワイン倶楽部 楽/17時00分~23時00分/200m(徒歩2分) |
| カフェ |
珈琲店トップ 渋谷駅前店/9時00分~20時00分/600m(徒歩7分) コーヒー専門店 カフェ ?キャリオカ/9時00分~17時00分/150m(徒歩2分) |
| コインパーキング |
三井のリパーク/道玄坂1丁目第3 [料金] 平日 00:00~24:00 12分/400円 日祝 00:00~24:00 12分/200円 [台数]5 エコロパーク/新大宗ビル道玄坂駐車場3F [料金] 全日 終日 15分300円 [最大料金] 全日 12時間 最大2800円 [台数]15 |
周辺地図
寿パークビルは、渋谷区道玄坂にある貸事務所物件です。最寄り駅は、JR線、京王井の頭線、東京メトロ銀座線、半蔵門線、副都心線の渋谷駅、京王井の頭線の神泉駅です。2002年竣工で、基準階が110.2坪の賃貸オフィスビルです。天高は2500mmで、床はOAフロアとなっております。空調は個別空調で、トイレは室外にあり、男女別です。貸会議室があり、機械警備で、エレベーターは1基あります。駐車場が利用可能な、アクセスの良い渋谷区道玄坂の貸事務所です。
全フロア情報
更新日:2026年4月6日
| 階 | 面積 | 賃料 | 共益費 | 敷金 | 入居日 | お問合せ | お気に入り | |
|---|---|---|---|---|---|---|---|---|
| 2F |
61.38 坪 202.91 ㎡ |
※現在空室情報はございません |
※現在空室情報は 確認する |
|||||
| 3F |
110.2 坪 364.3 ㎡ |
※現在空室情報はございません |
※現在空室情報は 確認する |
|||||
| 4F |
110.2 坪 364.3 ㎡ |
※現在空室情報はございません |
※現在空室情報は 確認する |
|||||
| 5F |
111.47 坪 368.51 ㎡ |
※現在空室情報はございません |
※現在空室情報は 確認する |
|||||
| 6F |
111.47 坪 368.5 ㎡ |
※現在空室情報はございません |
※現在空室情報は 確認する |
|||||
| 7F |
93.25 坪 308.26 ㎡ |
※現在空室情報はございません |
※現在空室情報は 確認する |
|||||
| 8F |
84.42 坪 279.07 ㎡ |
※現在空室情報はございません |
※現在空室情報は 確認する |
|||||
| 9F |
69.36 坪 229.29 ㎡ |
※現在空室情報はございません |
※現在空室情報は 確認する |
|||||
お問い合わせ
似た条件の物件はこちら
-
Daiwa渋谷スクエア
東京都渋谷区南平台町16-28
坪数:88.94 坪
坪単価:31,000 円(坪)
-
並木橋ビル
東京都渋谷区渋谷3-15-6
坪数:100.36 坪
坪単価:20,000 円(坪)
-
T&Aビル
東京都渋谷区神宮前6-34-17
坪数:75.36 坪
坪単価:21,231 円(坪)
-
新大宗道玄坂上ビル
東京都渋谷区円山町20-1
坪数:77 坪
坪単価:17,500 円(坪)
-
CASA表参道
東京都渋谷区神宮前4-19-3
坪数:99.5 坪
坪単価:46,231 円(坪)
-
神宮前IKビル
東京都渋谷区神宮前3-1-25
坪数:80.87 坪
坪単価:23,000 円(坪)
-
ビジネスヴィップ渋谷・道玄坂坂本ビル
東京都渋谷区道玄坂2-16-8
坪数:73.91 坪
坪単価:20,000 円(坪)
-
松濤館
東京都渋谷区松濤2-13-9
坪数:98.98 坪
坪単価:27,554 円(坪)
-
フィロアオヤマビル
東京都渋谷区神宮前5-49-2
坪数:93.43 坪
坪単価:53,516 円(坪)
-
さくらビル表参道
東京都渋谷区神宮前3-3-13
坪数:83.42 坪
坪単価:35,963 円(坪)