妙和ビル(物件No:71187154)
妙和ビルは港区赤坂にある地上4階建ての賃貸事務所です。最寄駅は東京メトロ銀座線の溜池山王駅から徒歩2分、東京メトロ南北線の溜池山王駅から徒歩2分、東京メトロ千代田線の赤坂駅から徒歩4分、東京メトロ千代田線の国会議事堂前駅から徒歩5分です。1987年3月竣工の鉄筋コンクリート造です。設備としては、エレベーターが1基あります。セキュリティは機械警備です。空調は個別空調です。耐震設計となっている、複数路線利用可能なアクセスの良い港区赤坂の賃貸オフィスです。
-
物件情報
-
設備情報
- トイレ
- 室内男女共用
- 床
- 2WAY
- 空調
- 個別空調
- セキュリティ
- 有
- 駐車場
- -
- 会議室
- -
- エレベーター
- 1基
- 天井高
- -
-
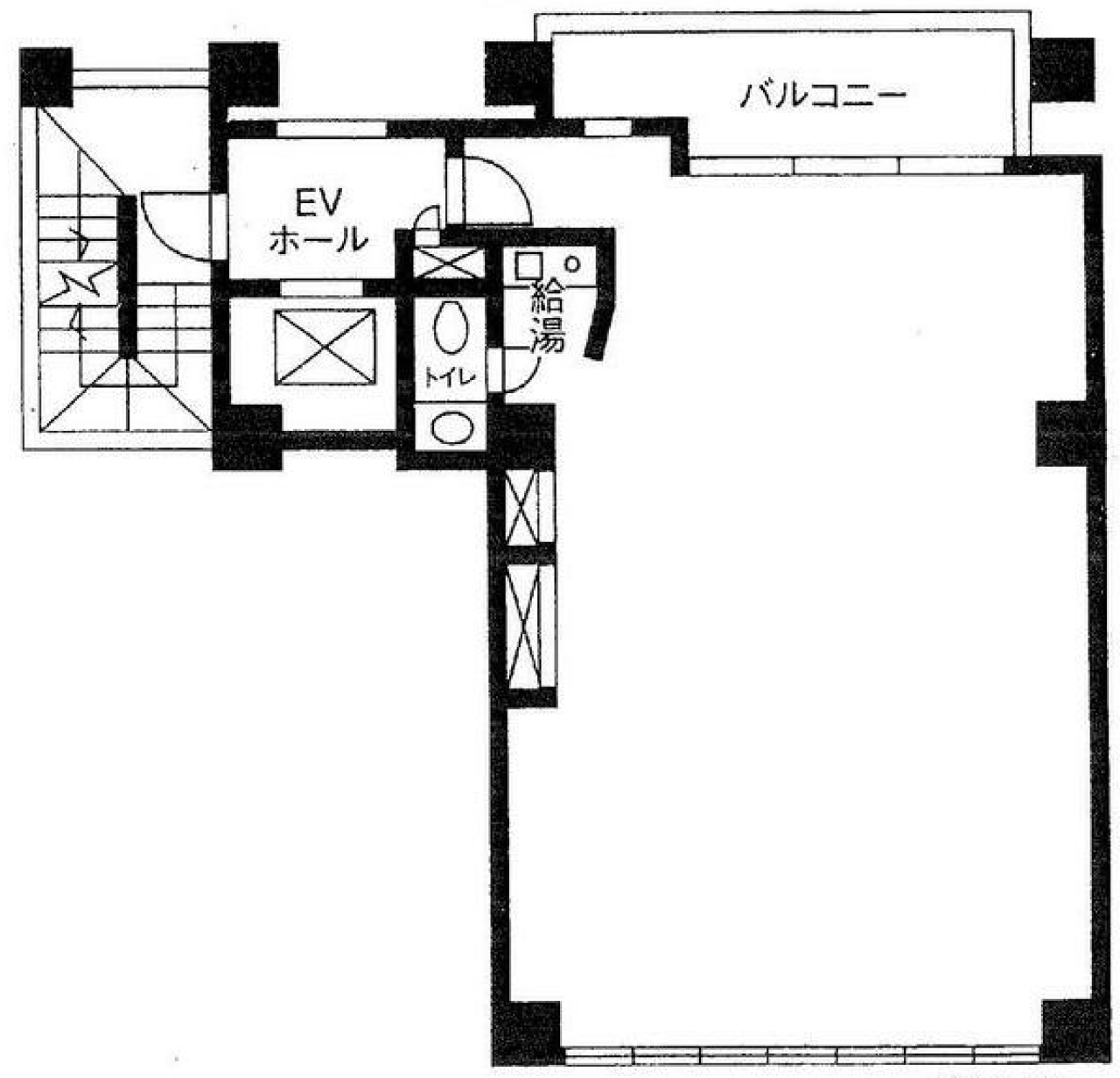
間取り図
-
近隣相場情報
赤坂2丁目(20~30坪)の相場
21924 円 (坪)
※ビルサク調べ
周辺施設情報
| コンビニ |
ローソン/オリックス赤坂2丁目ビル/160m(徒歩2分) セブンイレブン/赤坂2丁目/260m(徒歩3分) |
|---|---|
| 郵便局/銀行 |
三井住友銀行/ATM ヴィルマルシェ赤坂店出張所/[営業時間] [ATM]平日 8:00~22:00 土曜 10:00~22:00 日曜 10:00~21:00/150m(徒歩2分) イーネット/ファミリーマート溜池山王/[営業時間]7:00~23:00/190m(徒歩2分) |
| 飲食店 |
雅屋 溜池山王店/11時30分~14時00分、17時00分~23時30分/88m(徒歩1分) 雛どり/11時30分~14時00分、18時00分~23時30分/140m(徒歩2分) |
| カフェ |
イージーポイント/24 時間営業/350m(徒歩5分) パンジー/8時30分~20時00分/220m(徒歩3分) |
| コインパーキング |
三井のリパーク/新霞が関ビル駐車場 [料金] 全日 00:00~24:00 30分/300円 [最大料金] 【全日】最大料金入庫後12時間以内2500円 [台数]34 タイムズ駐車場/赤坂第29 [料金] [月~土]00:00-00:00 10分 400円 [日・祝]通常料金 / 00:00-00:00 10分 400円 [最大料金] [月~土]08:00-17:00 最大料金4000円 17:00-08:00 最大料金1500円 [日・祝]08:00-17:00 最大料金2000円 17:00-08:00 最大料金1500円 [台数]26 |
周辺地図
妙和ビルは港区赤坂にある地上4階建ての賃貸事務所です。最寄駅は東京メトロ銀座線の溜池山王駅から徒歩2分、東京メトロ南北線の溜池山王駅から徒歩2分、東京メトロ千代田線の赤坂駅から徒歩4分、東京メトロ千代田線の国会議事堂前駅から徒歩5分です。1987年3月竣工の鉄筋コンクリート造です。設備としては、エレベーターが1基あります。セキュリティは機械警備です。空調は個別空調です。耐震設計となっている、複数路線利用可能なアクセスの良い港区赤坂の賃貸オフィスです。
全フロア情報
更新日:2022年8月8日
| 階 | 面積 | 賃料 | 共益費 | 敷金 | 入居日 | お問合せ | お気に入り | |
|---|---|---|---|---|---|---|---|---|
| 2F |
40.00 坪 132.23 ㎡ |
※現在空室情報はございません |
※現在空室情報は 確認する |
|||||
| 4F |
26.00 坪 85.95 ㎡ |
※現在空室情報はございません |
※現在空室情報は 確認する |
|||||
お問い合わせ
似た条件の物件はこちら
-
SP赤坂ビル
東京都港区赤坂3-15-10
坪数:16.25 坪
坪単価:26,462 円(坪)
-
霊南坂ビル
東京都港区赤坂1-14-2
坪数:31.46 坪
坪単価:15,893 円(坪)
-
ライオンズマンション赤坂
東京都港区赤坂7-5-6
坪数:22.7 坪
坪単価:17,000 円(坪)
-
第4文成ビル
東京都港区赤坂7-10-9
坪数:17 坪
坪単価:20,000 円(坪)
-
赤坂余湖ビル
東京都港区赤坂4-8-6
坪数:18.48 坪
坪単価:15,000 円(坪)
-
元赤坂マンション
東京都港区元赤坂1-5-11
坪数:30.2 坪
坪単価:14,500 円(坪)
-
赤坂ASビル
東京都港区赤坂7-11-10
坪数:20.8 坪
坪単価:16,000 円(坪)
-
ヴェルディ赤坂
東京都港区赤坂6-5-28
坪数:27.86 坪
坪単価:13,101 円(坪)
-
ゴールド赤坂
東京都港区赤坂3-12-11
坪数:17.58 坪
坪単価:23,891 円(坪)
-
赤坂鈴木ビル
東京都港区赤坂3-19-13
坪数:21.56 坪
坪単価:24,119 円(坪)