スタン赤坂ハイツ(物件No:62399754)
スタン赤坂ハイツは、港区赤坂にある地上4階建ての賃貸事務所です。最寄駅は東京メトロ千代田線の赤坂駅から徒歩4分、東京メトロ銀座線の溜池山王駅から徒歩9分、東京メトロ丸ノ内線の赤坂見附駅から徒歩10分です。1978年3月竣工の鉄筋コンクリート造です。設備としては、駐車場があります。複数駅利用可能なアクセスの良い港区赤坂の賃貸オフィスです。
| 階 | 面積 | 賃料 | 共益費 | 敷金 | 入居日 | お問合せ | お気に入り | |
|---|---|---|---|---|---|---|---|---|
|
2F
(202区画) |
25.36 坪 83.85 ㎡ |
※現在空室情報はございません |
※現在空室情報は 確認する |
|||||
-
物件情報
-
設備情報
- トイレ
- -
- 床
- -
- 空調
- -
- セキュリティ
- -
- 駐車場
- 有
- 会議室
- -
- エレベーター
- -
- 天井高
- -
-
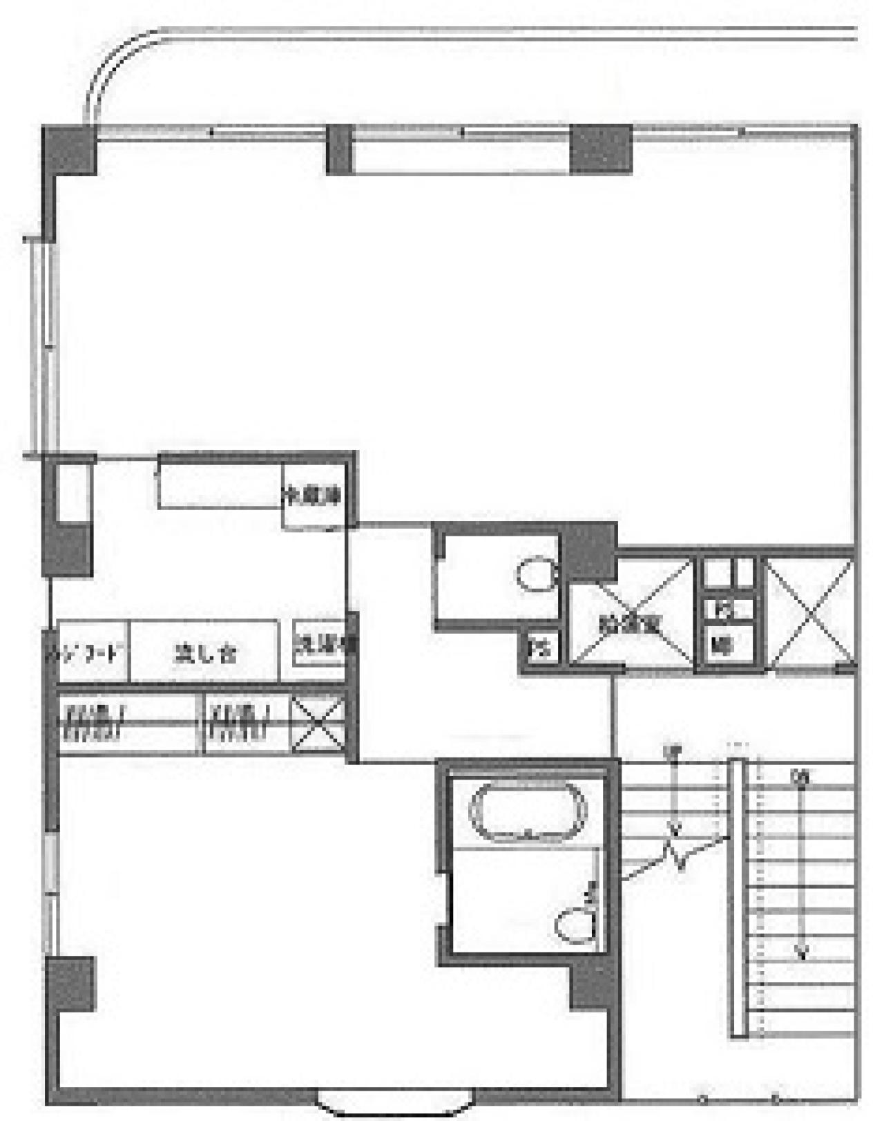
間取り図
-
近隣相場情報
赤坂6丁目(20~30坪)の相場
13101 円 (坪)
※ビルサク調べ
周辺施設情報
| コンビニ |
セブンイレブン/赤坂6丁目/400m(徒歩5分) ファミリーマート/赤坂五丁目店/350m(徒歩5分) |
|---|---|
| 郵便局/銀行 |
りそな銀行/赤坂支店/[営業時間]平日/9:00~17:00 [ATM]平日/7:00~23:00 土/7:00~21:00 日・祝/8:00~21:00/700m(徒歩8分) 三菱UFJ銀行/ATM 国際新赤坂ビル東館/[営業時間] [ATM]平日 8:00~21:00 土曜日 8:00~21:00 日・祝日 8:00~21:00/300m(徒歩3分) |
| 飲食店 |
もつ福 赤坂店/17時00分~23時30分/350m(徒歩5分) おやじのやまだ/17時30分~0時30分/190m(徒歩2分) |
| カフェ |
DEAN&DELUCA/CAFE 赤坂アークヒルズ/[営業時間]月-金 7:00~22:00 土日祝 8:00~21:00 [備考]Wi-Fi利用可 電源利用可 ペット同伴可(テラス席のみ)/800m(徒歩10分) プロント/espressamente illy 赤坂Bizタワー店/[営業時間]平日:カフェ 7:00~23:00 土曜:カフェ 7:00~22:30 日曜:カフェ 7:00~22:30 [休業日]無休 [備考]72席/空間分煙/550m(徒歩7分) |
| コインパーキング |
タイムズ駐車場/赤坂6丁目 [料金] [月~土]通常料金 / 00:00-00:00 15分 300円 [日・祝]通常料金 / 00:00-00:00 15分 300円 [最大料金] [月~土]08:00-19:00 最大料金3400円 19:00-08:00 最大料金600円 [日・祝]08:00-19:00 最大料金2400円 19:00-08:00 最大料金600円 [台数]14 三井のリパーク/六本木2丁目第4 [料金] 全日 08:00~00:00 25分/300円 全日 00:00~08:00 60分/100円 [最大料金] 【全日】最大料金入庫後12時間以内3000円 [台数]5 |
周辺地図
スタン赤坂ハイツは、港区赤坂にある地上4階建ての賃貸事務所です。最寄駅は東京メトロ千代田線の赤坂駅から徒歩4分、東京メトロ銀座線の溜池山王駅から徒歩9分、東京メトロ丸ノ内線の赤坂見附駅から徒歩10分です。1978年3月竣工の鉄筋コンクリート造です。設備としては、駐車場があります。複数駅利用可能なアクセスの良い港区赤坂の賃貸オフィスです。
全フロア情報
更新日:2018年4月11日
| 階 | 面積 | 賃料 | 共益費 | 敷金 | 入居日 | お問合せ | お気に入り | |
|---|---|---|---|---|---|---|---|---|
|
2F
(202区画) |
25.36 坪 83.85 ㎡ |
※現在空室情報はございません |
※現在空室情報は 確認する |
|||||
お問い合わせ
似た条件の物件はこちら
-
SP赤坂ビル
東京都港区赤坂3-15-10
坪数:16.25 坪
坪単価:26,462 円(坪)
-
赤坂Kマンション
東京都港区赤坂2-15-7
坪数:15.81 坪
坪単価:16,302 円(坪)
-
霊南坂ビル
東京都港区赤坂1-14-2
坪数:31.46 坪
坪単価:15,893 円(坪)
-
ライオンズマンション赤坂
東京都港区赤坂7-5-6
坪数:22.7 坪
坪単価:17,000 円(坪)
-
第4文成ビル
東京都港区赤坂7-10-9
坪数:17 坪
坪単価:20,000 円(坪)
-
赤坂余湖ビル
東京都港区赤坂4-8-6
坪数:18.48 坪
坪単価:15,000 円(坪)
-
元赤坂マンション
東京都港区元赤坂1-5-11
坪数:30.2 坪
坪単価:14,500 円(坪)
-
赤坂ASビル
東京都港区赤坂7-11-10
坪数:20.8 坪
坪単価:16,000 円(坪)
-
ヴェルディ赤坂
東京都港区赤坂6-5-28
坪数:27.86 坪
坪単価:13,101 円(坪)
-
ゴールド赤坂
東京都港区赤坂3-12-11
坪数:17.58 坪
坪単価:23,891 円(坪)