GINZA SIX(物件No:61988122)
(仮)銀座六丁目プロジェクトは、中央区銀座にある貸事務所物件で、最寄り駅は地下鉄各線の銀座駅です。2016年11月竣工予定の物件で、地上13階建ての賃貸オフィスビルです。EVは10基、駐車場もございます。床はOAフロアで、天井高は2,900mmです。空調はセントラル空調です。他に東銀座駅、日比谷駅、有楽町駅と複数の駅が利用可能な中央区銀座の貸事務所です。
-
物件情報
-
設備情報
- トイレ
- -
- 床
- フリーアクセス
- 空調
- セントラル空調
- セキュリティ
- 有
- 駐車場
- 有
- 会議室
- -
- エレベーター
- 10基
- 天井高
- 2700mm
-
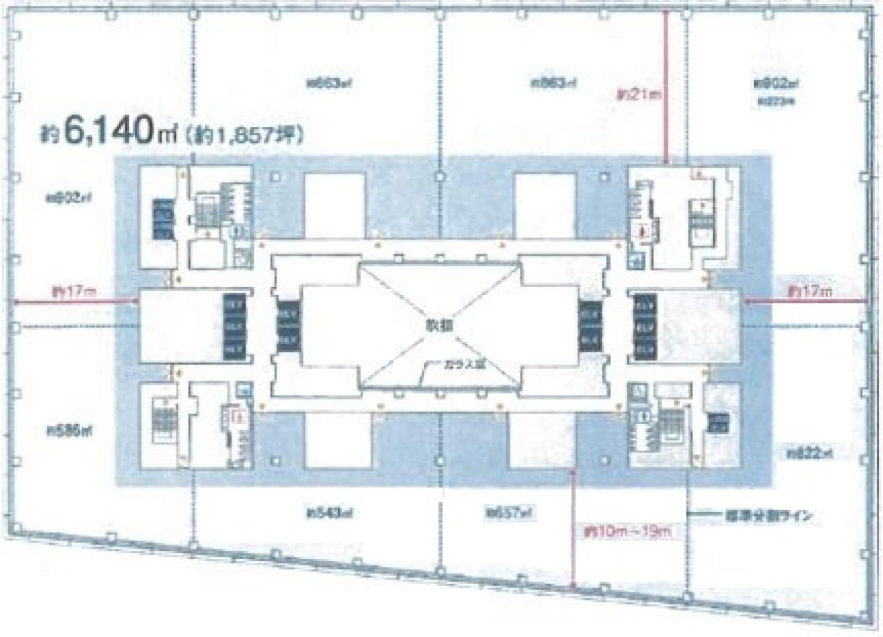
間取り図
-
近隣相場情報
銀座6丁目(50~100坪)の相場
37000 円 (坪)
※ビルサク調べ
周辺施設情報
| コンビニ |
ローソン/GINZA SIX/110m(徒歩2分) セブンイレブン/銀座6丁目中央/100m(徒歩2分) |
|---|---|
| 郵便局/銀行 |
三井住友銀行/銀座支店/平日 9:00-15:00 土曜 10:00-17:00 日曜・祝日 - [ATM]平日 7:00-24:00 土曜 7:00-24:00 日曜・祝日 7:00-21:00/30m(徒歩1分) みずほ銀行/銀座通支店/窓口 平日9:00~15:00 ATM 平日/6:00~26:00 土曜日/8:00~22:00 日曜日/8:00~21:00 祝日・振替休日/8:00~21:00/110m(徒歩1分) |
| 飲食店 |
おもき 離れ/11時00分~15時00分/160m(徒歩2分) 銀座 やさ/17時00分~22時40分/160m(徒歩2分) |
| カフェ |
ルノアール/銀座6丁目店/[営業時間]平日 :7:30-22:00 土曜日:7:30-22:00 日祝日:8:00-22:00/200m(徒歩2分) スターバックス/銀座 蔦屋書店/[営業時間]10:00~22:30 [休業日]不定休 [備考]無線LAN/110m(徒歩2分) |
| コインパーキング |
タイムズ駐車場/GINZA SIX [料金] [全日]00:00-00:00 30分 300円 [台数]500 NPC24H/ストラータ銀座 [料金] 30分/300円 [最大料金] 普通車 12時間毎 1300円 ハイルーフ車 12時間毎 2300円 全車両 700円(18時~5時) [台数]時間貸:64台 月極:16台 |
周辺地図
(仮)銀座六丁目プロジェクトは、中央区銀座にある貸事務所物件で、最寄り駅は地下鉄各線の銀座駅です。2016年11月竣工予定の物件で、地上13階建ての賃貸オフィスビルです。EVは10基、駐車場もございます。床はOAフロアで、天井高は2,900mmです。空調はセントラル空調です。他に東銀座駅、日比谷駅、有楽町駅と複数の駅が利用可能な中央区銀座の貸事務所です。
全フロア情報
更新日:2024年10月9日
| 階 | 面積 | 賃料 | 共益費 | 敷金 | 入居日 | お問合せ | お気に入り | |
|---|---|---|---|---|---|---|---|---|
| B2-6F |
15000 坪 49586.7 ㎡ |
※現在空室情報はございません |
※現在空室情報は 確認する |
|||||
|
7F
(1区画) |
51.7 坪 170.91 ㎡ |
※現在空室情報はございません |
※現在空室情報は 確認する |
|||||
|
7F
(2区画) |
248 坪 819.83 ㎡ |
※現在空室情報はございません |
※現在空室情報は 確認する |
|||||
| 8F |
1576 坪 5209.91 ㎡ |
※現在空室情報はございません |
※現在空室情報は 確認する |
|||||
|
8F
(1区画) |
32.9 坪 108.76 ㎡ |
※現在空室情報はございません |
※現在空室情報は 確認する |
|||||
|
8F
(10区画) |
62.53 坪 206.7 ㎡ |
※現在空室情報はございません |
※現在空室情報は 確認する |
|||||
|
8F
(11区画) |
72.57 坪 239.89 ㎡ |
※現在空室情報はございません |
※現在空室情報は 確認する |
|||||
|
8F
(12区画) |
272.78 坪 901.76 ㎡ |
※現在空室情報はございません |
※現在空室情報は 確認する |
|||||
|
8F
(13区画) |
272.82 坪 901.89 ㎡ |
※現在空室情報はございません |
※現在空室情報は 確認する |
|||||
|
8F
(14区画) |
260.83 坪 862.26 ㎡ |
※現在空室情報はございません |
※現在空室情報は 確認する |
|||||
|
8F
(15区画) |
161.93 坪 535.3 ㎡ |
※現在空室情報はございません |
※現在空室情報は 確認する |
|||||
|
8F
(16区画) |
260.83 坪 862.25 ㎡ |
※現在空室情報はございません |
※現在空室情報は 確認する |
|||||
|
8F
(17区画) |
218.3 坪 721.65 ㎡ |
※現在空室情報はございません |
※現在空室情報は 確認する |
|||||
|
8F
(18区画) |
85.63 坪 283.07 ㎡ |
※現在空室情報はございません |
※現在空室情報は 確認する |
|||||
|
8F
(2区画) |
35.7 坪 118.02 ㎡ |
※現在空室情報はございません |
※現在空室情報は 確認する |
|||||
|
8F
(3区画) |
36.31 坪 120.03 ㎡ |
※現在空室情報はございません |
※現在空室情報は 確認する |
|||||
|
8F
(4区画) |
37.8 坪 124.95 ㎡ |
※現在空室情報はございません |
※現在空室情報は 確認する |
|||||
|
8F
(5区画) |
41.2 坪 136.21 ㎡ |
※現在空室情報はございません |
※現在空室情報は 確認する |
|||||
|
8F
(6区画) |
41.16 坪 136.06 ㎡ |
※現在空室情報はございません |
※現在空室情報は 確認する |
|||||
|
8F
(7区画) |
44.45 坪 146.95 ㎡ |
※現在空室情報はございません |
※現在空室情報は 確認する |
|||||
|
8F
(8区画) |
44.45 坪 146.95 ㎡ |
※現在空室情報はございません |
※現在空室情報は 確認する |
|||||
|
8F
(9区画) |
51.31 坪 169.61 ㎡ |
※現在空室情報はございません |
※現在空室情報は 確認する |
|||||
| 9F |
1813.7 坪 5995.69 ㎡ |
※現在空室情報はございません |
※現在空室情報は 確認する |
|||||
|
9F
(1区画) |
164.1 坪 542.48 ㎡ |
※現在空室情報はございません |
※現在空室情報は 確認する |
|||||
|
9F
(2区画) |
521.6 坪 1724.29 ㎡ |
※現在空室情報はございません |
※現在空室情報は 確認する |
|||||
|
9F
(3区画) |
272.7 坪 901.49 ㎡ |
※現在空室情報はございません |
※現在空室情報は 確認する |
|||||
|
9F
(4区画) |
794.4 坪 2626.11 ㎡ |
※現在空室情報はございません |
※現在空室情報は 確認する |
|||||
|
9F
(5区画) |
260.8 坪 862.15 ㎡ |
※現在空室情報はございません |
※現在空室情報は 確認する |
|||||
| 10F |
1857 坪 6138.83 ㎡ |
※現在空室情報はございません |
※現在空室情報は 確認する |
|||||
|
10F
(1区画) |
238.98 坪 790 ㎡ |
※現在空室情報はございません |
※現在空室情報は 確認する |
|||||
|
10F
(2区画) |
368.14 坪 1217 ㎡ |
※現在空室情報はございません |
※現在空室情報は 確認する |
|||||
|
10F
(3区画) |
1248.72 坪 4128 ㎡ |
※現在空室情報はございません |
※現在空室情報は 確認する |
|||||
|
10F
(4区画) |
885.8 坪 2928.26 ㎡ |
※現在空室情報はございません |
※現在空室情報は 確認する |
|||||
|
10F
(5区画) |
1050 坪 3471.07 ㎡ |
※現在空室情報はございません |
※現在空室情報は 確認する |
|||||
|
10F
(6区画) |
164 坪 542.15 ㎡ |
※現在空室情報はございません |
※現在空室情報は 確認する |
|||||
|
10F
(7区画) |
248.63 坪 821.9 ㎡ |
※現在空室情報はございません |
※現在空室情報は 確認する |
|||||
|
10F
(8区画) |
273 坪 902.48 ㎡ |
※現在空室情報はございません |
※現在空室情報は 確認する |
|||||
|
10F
(9区画) |
364 坪 1203.3 ㎡ |
※現在空室情報はございません |
※現在空室情報は 確認する |
|||||
| 11F |
1857 坪 6138.83 ㎡ |
※現在空室情報はございません |
※現在空室情報は 確認する |
|||||
|
11F
(1区画) |
272.82 坪 901.89 ㎡ |
※現在空室情報はございません |
※現在空室情報は 確認する |
|||||
|
11F
(2区画) |
272.7 坪 901.49 ㎡ |
※現在空室情報はございません |
※現在空室情報は 確認する |
|||||
|
11F
(3区画) |
164.1 坪 542.48 ㎡ |
※現在空室情報はございません |
※現在空室情報は 確認する |
|||||
|
11F
(4区画) |
177.1 坪 585.45 ㎡ |
※現在空室情報はございません |
※現在空室情報は 確認する |
|||||
|
11F
(5区画) |
199 坪 657.85 ㎡ |
※現在空室情報はございません |
※現在空室情報は 確認する |
|||||
|
11F
(6区画) |
260.8 坪 862.15 ㎡ |
※現在空室情報はございません |
※現在空室情報は 確認する |
|||||
|
11F
(7区画) |
625 坪 2066.11 ㎡ |
※現在空室情報はございません |
※現在空室情報は 確認する |
|||||
|
11F
(8区画) |
248.3 坪 820.83 ㎡ |
※現在空室情報はございません |
※現在空室情報は 確認する |
|||||
|
11F
(9区画) |
789 坪 2608.26 ㎡ |
※現在空室情報はございません |
※現在空室情報は 確認する |
|||||
| 12F |
1857 坪 6138.83 ㎡ |
※現在空室情報はございません |
※現在空室情報は 確認する |
|||||
|
13F
(1区画) |
927.16 坪 3065 ㎡ |
※現在空室情報はございません |
※現在空室情報は 確認する |
|||||
|
13F
(2区画) |
410 坪 1355.37 ㎡ |
※現在空室情報はございません |
※現在空室情報は 確認する |
|||||
|
13F
(3区画) |
249 坪 823.14 ㎡ |
※現在空室情報はございません |
※現在空室情報は 確認する |
|||||
|
13F
(4区画) |
268 坪 885.95 ㎡ |
※現在空室情報はございません |
※現在空室情報は 確認する |
|||||
|
13F
(5区画) |
517 坪 1709.09 ㎡ |
※現在空室情報はございません |
※現在空室情報は 確認する |
|||||
|
13F
(6区画) |
929 坪 3071.07 ㎡ |
※現在空室情報はございません |
※現在空室情報は 確認する |
|||||
お問い合わせ
似た条件の物件はこちら
-
ニューギンザビル6号館
東京都中央区銀座5-5-7
坪数:63.54 坪
坪単価:23,000 円(坪)
-
The ORB Premiere
東京都中央区銀座1-3-13
坪数:66.02 坪
坪単価:33,000 円(坪)
-
東貨ビル
東京都中央区銀座1-16-1
坪数:60.05 坪
坪単価:21,500 円(坪)
-
ニューギンザビル1号館
東京都中央区銀座7-3-13
坪数:60.00 坪
坪単価:22,000 円(坪)
-
銀座3丁目ビルディング
東京都中央区銀座3-8-13
坪数:84.57 坪
坪単価:18,000 円(坪)
-
銀座東新ビル
東京都中央区銀座5-15-18
坪数:71.43 坪
坪単価:16,500 円(坪)
-
第21中央ビル
東京都中央区銀座1-8-21
坪数:65.35 坪
坪単価:23,000 円(坪)
-
上一ビルディング
東京都中央区銀座1-6-10
坪数:75.81 坪
坪単価:20,000 円(坪)
-
銀座コティビル
東京都中央区銀座5-9-1
坪数:84.2 坪
坪単価:35,000 円(坪)
-
銀座あづまビル
東京都中央区銀座5-9-17
坪数:70.86 坪
坪単価:25,000 円(坪)