ASKビル(物件No:61489281)
ASKビルは、江東区東陽にある地上5階建ての賃貸事務所です。最寄駅は東京メトロ東西線の東陽町駅から徒歩2分です。1989年6月竣工の鉄筋コンクリート造です。設備としては、エレベーターが2基あり、駐車場もあります。トイレは室外男女別です。空調は個別空調です。床仕様はフリーアクセスです。最寄駅から近くて便利な江東区東陽の賃貸オフィスです。
-
物件情報
-
設備情報
- トイレ
- -
- 床
- フリーアクセス
- 空調
- 個別空調
- セキュリティ
- -
- 駐車場
- 有
- 会議室
- -
- エレベーター
- 2基
- 天井高
- 2550mm
-
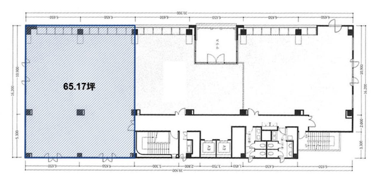
間取り図
-
近隣相場情報
東陽2丁目(50~100坪)の相場
調査中
周辺地図
ASKビルは、江東区東陽にある地上5階建ての賃貸事務所です。最寄駅は東京メトロ東西線の東陽町駅から徒歩2分です。1989年6月竣工の鉄筋コンクリート造です。設備としては、エレベーターが2基あり、駐車場もあります。トイレは室外男女別です。空調は個別空調です。床仕様はフリーアクセスです。最寄駅から近くて便利な江東区東陽の賃貸オフィスです。
全フロア情報
更新日:2026年5月13日
| 階 | 面積 | 賃料 | 共益費 | 敷金 | 入居日 | お問合せ | お気に入り | |
|---|---|---|---|---|---|---|---|---|
|
3F
(303区画) |
25.16 坪 83.17 ㎡ |
※現在空室情報はございません |
※現在空室情報は 確認する |
|||||
|
4F
(1区画) |
43.85 坪 144.96 ㎡ |
※現在空室情報はございません |
※現在空室情報は 確認する |
|||||
|
4F
(403区画) |
47.09 坪 155.67 ㎡ |
相談 |
150,688 円 3,200 円(坪) |
6ヶ月 |
2026/06/01 |
|
|
|
|
5F
(1区画) |
65.17 坪 215.44 ㎡ |
※現在空室情報はございません |
※現在空室情報は 確認する |
|||||
お問い合わせ
似た条件の物件はこちら
-
長谷川ビル
東京都江東区東陽3-27-17
坪数:56.9 坪
坪単価:13,636 円(坪)
-
MR木場
東京都江東区木場1-3-1
坪数:73.85 坪
坪単価:11,000 円(坪)
-
ISM門前仲町
東京都江東区富岡1-26-18
坪数:70.78 坪
坪単価:16,498 円(坪)
-
堀第5富岡ビル
東京都江東区富岡1-21-7
坪数:57.22 坪
坪単価:13,002 円(坪)
-
東京原木会館
東京都江東区東陽5-30-13
坪数:79.85 坪
坪単価:12,010 円(坪)