316青山(物件No:60035867)
316青山は、東京都港区北青山3-1-6にある賃貸オフィスです。最寄駅は東京メトロ銀座線外苑前駅徒歩4分、東京メトロ半蔵門線・千代田線表参道駅徒歩6分と、複数路線利用可能でアクセス良好な立地です。1973年竣工の鉄筋コンクリート造、地上6階建てのビルです。
| 階 | 面積 | 賃料 | 共益費 | 敷金 | 入居日 | お問合せ | お気に入り |
|---|---|---|---|---|---|---|---|
|
4F
(405区画) |
10.7 坪 35.37 ㎡ |
290,000 円 27,103 円(坪) |
30,000 円 2,804 円(坪) |
870,000 円 3 ヶ月 |
2026/05 |
|
|
| 階 | 面積 | 賃料 | 共益費 | 敷金 | 入居日 | お問合せ | お気に入り |
|---|---|---|---|---|---|---|---|
|
4F
(405区画) |
10.7 坪 35.37 ㎡ |
290,000 円 27,103 円(坪) |
30,000 円 2,804 円(坪) |
870,000 円 3 ヶ月 |
2026/05 |
|
|
-
物件情報
-
設備情報
- トイレ
- 室内男女共用
- 床
- -
- 空調
- 個別空調
- セキュリティ
- -
- 駐車場
- 有
- 会議室
- -
- エレベーター
- -
- 天井高
- -
-
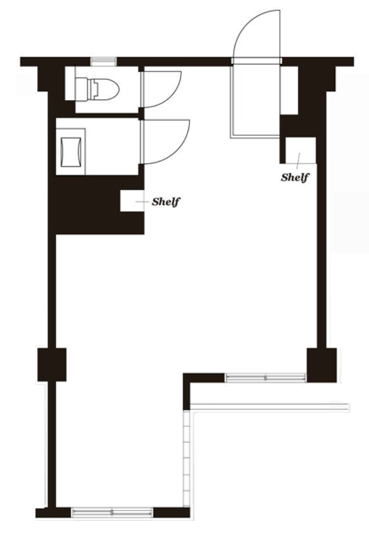
間取り図
-
近隣相場情報
北青山3丁目(20坪以下)の相場
33446 円 (坪)
※ビルサク調べ
周辺地図
316青山は、東京都港区北青山3-1-6にある賃貸オフィスです。最寄駅は東京メトロ銀座線外苑前駅徒歩4分、東京メトロ半蔵門線・千代田線表参道駅徒歩6分と、複数路線利用可能でアクセス良好な立地です。1973年竣工の鉄筋コンクリート造、地上6階建てのビルです。
全フロア情報
更新日:2026年4月21日
| 階 | 面積 | 賃料 | 共益費 | 敷金 | 入居日 | お問合せ | お気に入り | |
|---|---|---|---|---|---|---|---|---|
|
3F
(306区画) |
10.45 坪 34.56 ㎡ |
290,000 円 27,751 円(坪) |
30,000 円 2,871 円(坪) |
870,000 円 3 ヶ月 |
2026/05 |
|
|
|
|
4F
(405区画) |
10.7 坪 35.37 ㎡ |
290,000 円 27,103 円(坪) |
30,000 円 2,804 円(坪) |
870,000 円 3 ヶ月 |
2026/05 |
|
|
|
|
4F
(406区画) |
10.7 坪 35.37 ㎡ |
290,000 円 27,103 円(坪) |
30,000 円 2,804 円(坪) |
870,000 円 3 ヶ月 |
2026/06 |
|
|
|
|
5F
(501区画) |
18.68 坪 61.74 ㎡ |
※現在空室情報はございません |
※現在空室情報は 確認する |
|||||
|
5F
(502区画) |
15.11 坪 49.95 ㎡ |
※現在空室情報はございません |
※現在空室情報は 確認する |
|||||
|
5F
(503区画) |
15.11 坪 49.95 ㎡ |
※現在空室情報はございません |
※現在空室情報は 確認する |
|||||
|
5F
(507区画) |
12.96 坪 42.84 ㎡ |
350,000 円 27,006 円(坪) |
30,000 円 2,315 円(坪) |
1,050,000 円 3 ヶ月 |
即日 |
|
|
|
|
6F
(601区画) |
33.54 坪 110.88 ㎡ |
※現在空室情報はございません |
※現在空室情報は 確認する |
|||||
|
6F
(602区画) |
20.26 坪 66.96 ㎡ |
※現在空室情報はございません |
※現在空室情報は 確認する |
|||||
お問い合わせ
似た条件の物件はこちら
-
たつむら青山マンション(青南吉川興産ビル)
東京都港区南青山5-4-35
坪数:11.4 坪
坪単価:19,298 円(坪)
-
クレアトゥール南青山
東京都港区南青山3-8-7
坪数:13.59 坪
坪単価:16,924 円(坪)
-
シグマ南青山ビル
東京都港区南青山2-11-14
坪数:14.16 坪
坪単価:40,000 円(坪)
-
シスター
東京都港区北青山2-9-14
坪数:10.42 坪
坪単価:22,553 円(坪)
-
パレス青山
東京都港区南青山6-1-6
坪数:11.36 坪
坪単価:18,134 円(坪)
-
Sugar
東京都港区北青山2-12-12
坪数:13.83 坪
坪単価:21,692 円(坪)
-
WISE512
東京都港区南青山5-12-27
坪数:14.04 坪
坪単価:24,003 円(坪)
-
ピロティ南青山
東京都港区南青山6-1-21
坪数:10.3 坪
坪単価:23,010 円(坪)
-
ファーロ南青山
東京都港区南青山6-7-7
坪数:13.79 坪
坪単価:16,679 円(坪)