INOビル大崎(物件No:51585168)
INOビル大崎は品川区大崎にある地上8階建ての賃貸事務所です。最寄駅はJR線の大崎駅から徒歩2分、東急池上線の大崎広小路駅から徒歩11分です。1986年3月竣工の基準階面積が75.95坪の鉄骨鉄筋コンクリート造です。設備としては、エレベーターが2基あり、駐車場もあります。トイレは男女別です。空調は個別空調です。床仕様は2WAYです。天高は2400mmです。耐震設計となっている、最寄駅から近くて便利な品川区大崎の賃貸オフィスです。
| 階 | 面積 | 賃料 | 共益費 | 敷金 | 入居日 | お問合せ | お気に入り | |
|---|---|---|---|---|---|---|---|---|
|
5F
(501区画) |
21.78 坪 72 ㎡ |
※現在空室情報はございません |
※現在空室情報は 確認する |
|||||
| 階 | 面積 | 賃料 | 共益費 | 敷金 | 入居日 | お問合せ | お気に入り | |
|---|---|---|---|---|---|---|---|---|
|
5F
(501区画) |
21.78 坪 72 ㎡ |
※現在空室情報はございません |
※現在空室情報は 確認する |
|||||
-
物件情報
-
設備情報
- トイレ
- 室外男女別
- 床
- 2WAY
- 空調
- 個別空調
- セキュリティ
- -
- 駐車場
- 無
- 会議室
- -
- エレベーター
- 2基
- 天井高
- 2400mm
-
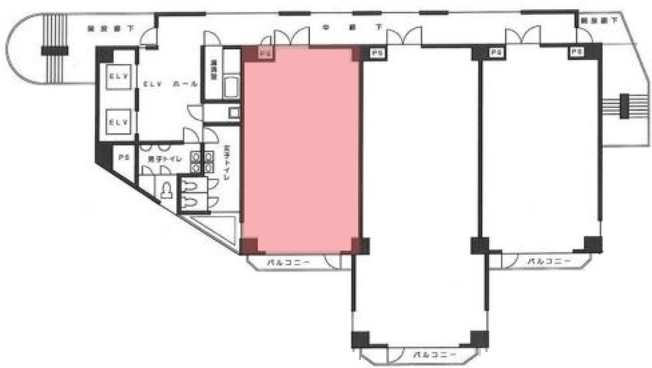
間取り図
-
近隣相場情報
大崎1丁目(20~30坪)の相場
15000 円 (坪)
※ビルサク調べ
周辺地図
INOビル大崎は品川区大崎にある地上8階建ての賃貸事務所です。最寄駅はJR線の大崎駅から徒歩2分、東急池上線の大崎広小路駅から徒歩11分です。1986年3月竣工の基準階面積が75.95坪の鉄骨鉄筋コンクリート造です。設備としては、エレベーターが2基あり、駐車場もあります。トイレは男女別です。空調は個別空調です。床仕様は2WAYです。天高は2400mmです。耐震設計となっている、最寄駅から近くて便利な品川区大崎の賃貸オフィスです。
全フロア情報
更新日:2026年4月17日
| 階 | 面積 | 賃料 | 共益費 | 敷金 | 入居日 | お問合せ | お気に入り | |
|---|---|---|---|---|---|---|---|---|
| 1F |
53 坪 175.21 ㎡ |
※現在空室情報はございません |
※現在空室情報は 確認する |
|||||
|
3F
(301区画) |
21.78 坪 72 ㎡ |
※現在空室情報はございません |
※現在空室情報は 確認する |
|||||
|
3F
(302区画) |
32.39 坪 107.07 ㎡ |
485,850 円 15,000 円(坪) |
込 |
1,457,550 円 3 ヶ月 |
2026/06 |
|
|
|
|
3F
(303区画) |
21.78 坪 72 ㎡ |
※現在空室情報はございません |
※現在空室情報は 確認する |
|||||
|
4F
(401区画) |
21.78 坪 72 ㎡ |
326,700 円 15,000 円(坪) |
込 |
980,100 円 3 ヶ月 |
2026/09/01 |
|
|
|
|
5F
(501区画) |
21.78 坪 72 ㎡ |
※現在空室情報はございません |
※現在空室情報は 確認する |
|||||
|
5F
(502区画) |
32.39 坪 107.07 ㎡ |
※現在空室情報はございません |
※現在空室情報は 確認する |
|||||
|
5F
(503区画) |
21.78 坪 72 ㎡ |
※現在空室情報はございません |
※現在空室情報は 確認する |
|||||
| 6F |
9.07 坪 29.98 ㎡ |
※現在空室情報はございません |
※現在空室情報は 確認する |
|||||
|
7F
(704区画) |
9.07 坪 29.98 ㎡ |
※現在空室情報はございません |
※現在空室情報は 確認する |
|||||
|
7F
(706区画) |
9.07 坪 29.98 ㎡ |
※現在空室情報はございません |
※現在空室情報は 確認する |
|||||
|
7F
(707区画) |
9.07 坪 29.98 ㎡ |
※現在空室情報はございません |
※現在空室情報は 確認する |
|||||
お問い合わせ
似た条件の物件はこちら
-
アイオス五反田
東京都品川区東五反田1-10-7
坪数:16.27 坪
坪単価:22,741 円(坪)
-
NOVEL WORK Gotanda
東京都品川区東五反田4-7-27
坪数:21.2 坪
坪単価:29,259 円(坪)
-
ウエストワールドビル
東京都品川区東五反田3-1-6
坪数:20.42 坪
坪単価:15,671 円(坪)
-
シティインデックス西五反田
東京都品川区西五反田8-2-13
坪数:16.42 坪
坪単価:18,845 円(坪)
-
WAVE BLDG MEGURO
東京都品川区上大崎3-3-5
坪数:18.04 坪
坪単価:27,716 円(坪)
-
扇寿ビル
東京都品川区東五反田5-27-12
坪数:16.46 坪
坪単価:16,403 円(坪)
-
第1五反田ビル
東京都品川区東五反田5-27-6
坪数:25 坪
坪単価:20,000 円(坪)
-
ライオンズマンション西五反田
東京都品川区西五反田7-23-11
坪数:25.13 坪
坪単価:9,948 円(坪)
-
STビル
東京都品川区東五反田1-10-9
坪数:17.63 坪
坪単価:20,306 円(坪)