福吉坂ビル(物件No:51584135)
福吉坂ビルは港区赤坂にある地下1階、地上4階建ての賃貸事務所です。最寄駅は東京メトロ銀座線の溜池山王駅から徒歩5分、東京メトロ南北線の溜池山王駅から徒歩5分です。1987年3月竣工の基準階面積が60.54坪の鉄筋コンクリート造です。設備としては、エレベーターが1基あります。トイレは男女別です。空調は個別空調です。耐震設計となっている、ビジネス街として人気のある港区赤坂の賃貸オフィスです。
-
物件情報
-
設備情報
- トイレ
- 室外男女別
- 床
- フリーアクセス
- 空調
- 個別空調
- セキュリティ
- -
- 駐車場
- 無
- 会議室
- -
- エレベーター
- 1基
- 天井高
- 2450mm
-
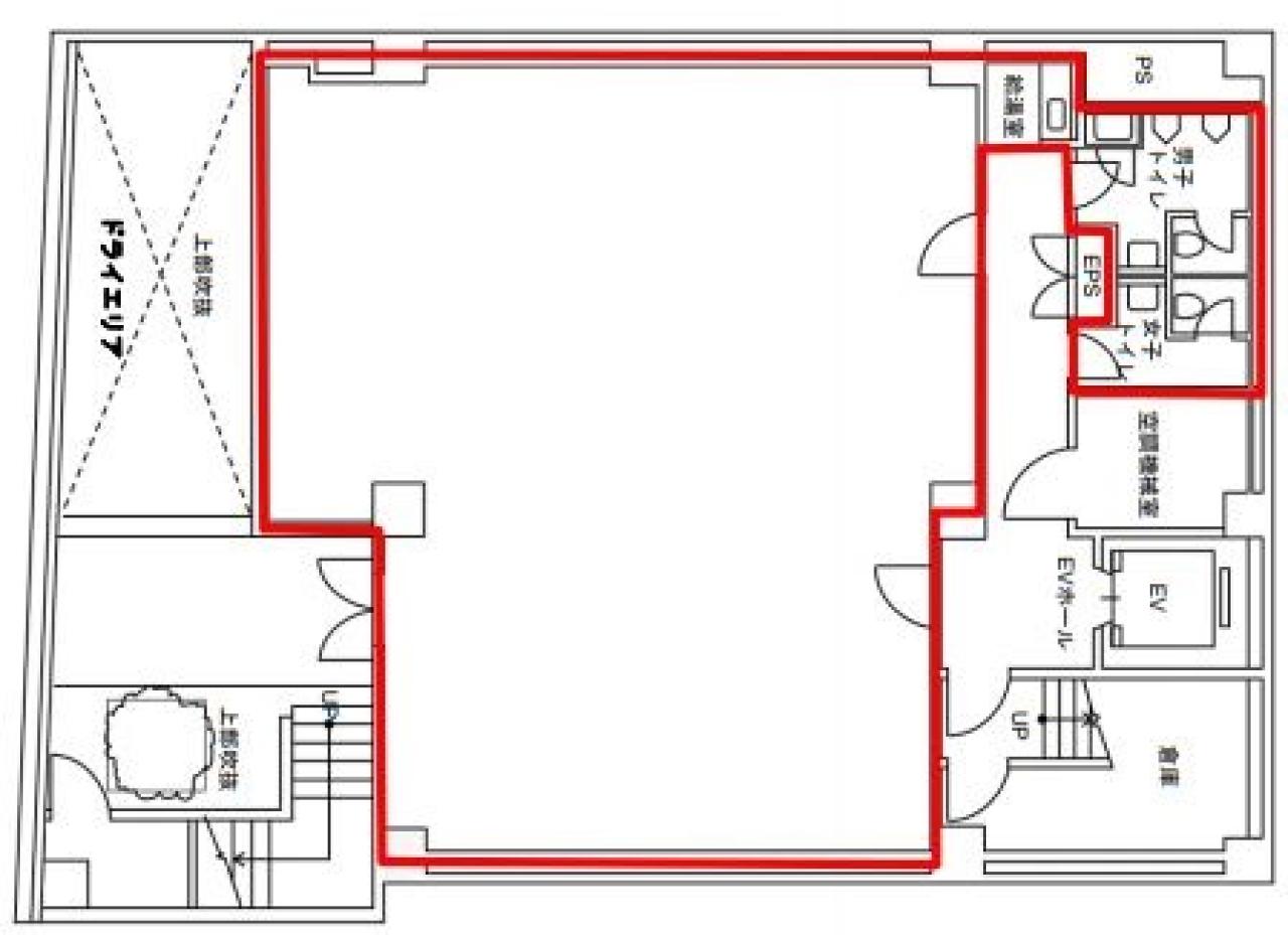
間取り図
-
近隣相場情報
赤坂2丁目(40~50坪)の相場
16980 円 (坪)
※ビルサク調べ
周辺施設情報
| コンビニ |
ファミリーマート/アークヒルズ前店/400m(徒歩5分) セブンイレブン/赤坂氷川坂下/450m(徒歩5分) |
|---|---|
| 郵便局/銀行 |
セブン銀行/ANA インターコンチネンタルホテル 東京/[営業時間]24時間営業 [備考]1 台/550m(徒歩8分) みずほ銀行/ATM 赤坂インターシティAIR出張所(1)/[営業時間] [ATM]平日 7:00~23:30 土曜日 7:00~22:00 日曜日 8:00~21:00 祝日・振替休日 曜日に準ずる 備考 *設置施設の休業日・休業時間帯は、一般のお客さまはご利用いただけません。通帳繰越機 設置なし/400m(徒歩5分) |
| 飲食店 |
貝作/12時00分~14時00分、17時00分~23時00分/ Minori/7時00分~10時00分、11時30分~15時00分、18時00分~22時30分/210m(徒歩3分) |
| カフェ |
シティベーカリー/東京・赤坂(レストラン・ランチ)/[営業時間]MORNING 7:00~10:00 LUNCH 11:00~17:00 DINNER 平日・土 17:00~23:30(L.O 22:30)日・祝 17:00~22:00(L.O 21:00) [モーニングメニュー | ランチメニュー | ディナーメニュー | デザート&カフェメニュー]/600m(徒歩8分) ホットケーキパーラー Fru-Full 赤坂店/11時00分~19時30分/120m(徒歩2分) |
| コインパーキング |
三井のリパーク/六本木2丁目第4 [料金] 全日 08:00~00:00 25分/300円 全日 00:00~08:00 60分/100円 [最大料金] 【全日】最大料金入庫後12時間以内3000円 [台数]5 SANパーク/赤坂 1 [料金] [料金]オールタイム15分200円 [台数]車:3台 |
周辺地図
福吉坂ビルは港区赤坂にある地下1階、地上4階建ての賃貸事務所です。最寄駅は東京メトロ銀座線の溜池山王駅から徒歩5分、東京メトロ南北線の溜池山王駅から徒歩5分です。1987年3月竣工の基準階面積が60.54坪の鉄筋コンクリート造です。設備としては、エレベーターが1基あります。トイレは男女別です。空調は個別空調です。耐震設計となっている、ビジネス街として人気のある港区赤坂の賃貸オフィスです。
全フロア情報
更新日:2026年4月10日
| 階 | 面積 | 賃料 | 共益費 | 敷金 | 入居日 | お問合せ | お気に入り | |
|---|---|---|---|---|---|---|---|---|
| B1F |
42.42 坪 140.23 ㎡ |
※現在空室情報はございません |
※現在空室情報は 確認する |
|||||
| 1F |
53.48 坪 176.79 ㎡ |
未定 |
込 |
12ヶ月 |
2026/08/01 |
|
|
|
| 2F |
80.75 坪 266.94 ㎡ |
※現在空室情報はございません |
※現在空室情報は 確認する |
|||||
| GFF |
38.16 坪 126.15 ㎡ |
※現在空室情報はございません |
※現在空室情報は 確認する |
|||||
お問い合わせ
似た条件の物件はこちら
-
第4文成ビル
東京都港区赤坂7-10-9
坪数:38 坪
坪単価:14,000 円(坪)
-
AERBIN AKASAKAビル
東京都港区赤坂8-10-39
坪数:47.66 坪
坪単価:20,982 円(坪)
-
リバービル
東京都港区赤坂6-3-12
坪数:45.08 坪
坪単価:15,084 円(坪)
-
赤坂伊藤ビル
東京都港区赤坂7-10-9
坪数:43.7 坪
坪単価:15,000 円(坪)
-
BIC赤坂ビル
東京都港区赤坂3-9-18
坪数:40.96 坪
坪単価:23,022 円(坪)
-
紀陽ビル
東京都港区赤坂3-9-1
坪数:47.92 坪
坪単価:16,000 円(坪)
-
赤坂FS
東京都港区赤坂7-10-7
坪数:35.12 坪
坪単価:17,000 円(坪)
-
JESCO赤坂表町ビル
東京都港区赤坂4-8-20
坪数:39.12 坪
坪単価:37,065 円(坪)
-
近文ビル
東京都港区赤坂6-14-3
坪数:33.8 坪
坪単価:10,000 円(坪)
-
富士陰ビルディング
東京都港区元赤坂1-1-5
坪数:34.55 坪
坪単価:17,995 円(坪)