VORT新宿御苑(物件No:51185136)
VORT新宿御苑(旧:御苑前311)は新宿区新宿にある地下1階、地上9階建ての賃貸事務所です。最寄駅は都営新宿線の新宿三丁目駅から徒歩3分、東京メトロ丸ノ内線の新宿三丁目駅から徒歩3分、東京メトロ丸ノ内線の新宿御苑前駅から徒歩3分、JR線の新宿駅から徒歩9分です。1986年11月竣工の基準階面積が75.54坪の鉄骨鉄筋コンクリート造です。設備としては、エレベーターが1基あり、駐車場もあります。トイレは男女別です。空調は個別空調です。床仕様はフリーアクセスです。天高は2500mmです。耐震設計となっている、複数駅利用可能なアクセスの良い新宿区新宿の賃貸オフィスです。
-
物件情報
-
設備情報
- トイレ
- 男女別
- 床
- フリーアクセス
- 空調
- 個別空調
- セキュリティ
- 有
- 駐車場
- 有
- 会議室
- -
- エレベーター
- 1基
- 天井高
- 2500mm
-
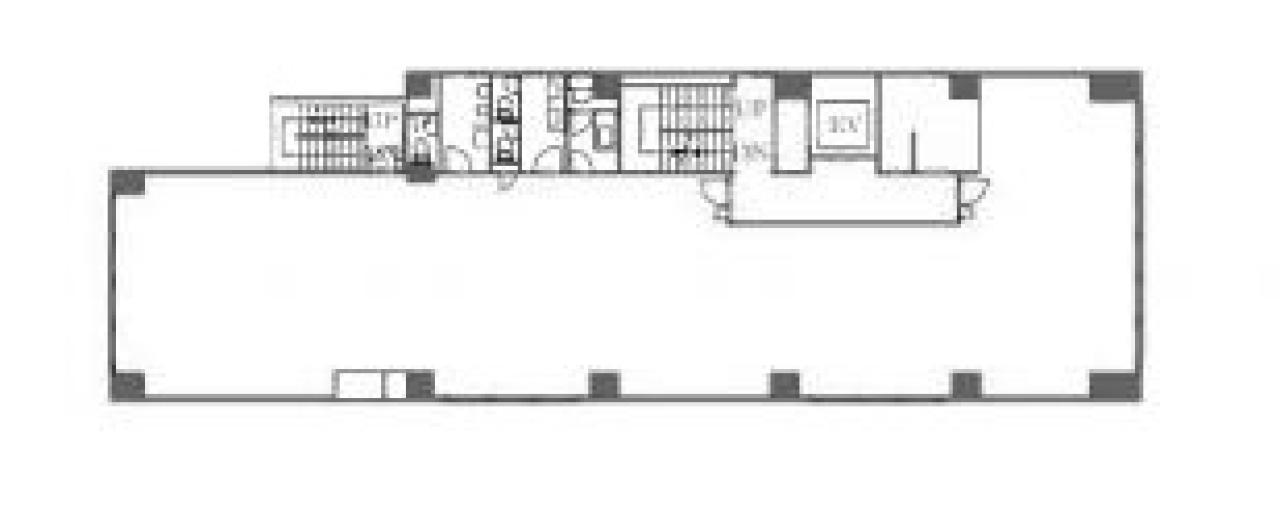
間取り図
-
近隣相場情報
新宿2丁目(50~100坪)の相場
25785 円 (坪)
※ビルサク調べ
周辺施設情報
| コンビニ |
セブンイレブン/新宿2丁目/1m(徒歩1分) ファミリーマート/新宿御苑駅西店/120m(徒歩2分) |
|---|---|
| 郵便局/銀行 |
イーネット/ファミリーマート新宿御苑駅西/[営業時間]0:00~24:00/120m(徒歩2分) セブン銀行/新宿2丁目店/[営業時間]24時間営業/1m(徒歩1分) |
| 飲食店 |
晴京/11時30分~14時00分 17時00分~23時00分/100m(徒歩1分) カロヤン/不定休/99m(徒歩1分) |
| カフェ |
ドトール/新宿2丁目店/■通常営業時間 平日 7:15~21:30 土曜 7:30~21:00 日祝 8:00~21:00/140m(徒歩2分) スターバックス/新宿2丁目店/[営業時間]月~金:7:00~22:00 土日祝:8:00~22:00/51m(徒歩1分) |
| コインパーキング |
タイムズ/新宿2丁目第3 [料金] [全日]通常料金 / 9:00~19:00 20分 330円 19:00~9:00 20分 220円 [最大料金] [全日]9:00~19:00 最大料金3520円 19:00~9:00 最大料金1540円 [台数]20 タイムズ/新宿2丁目第2 [料金] [全日]通常料金 / 9:00~19:00 20分 330円 19:00~9:00 15分 220円 [最大料金] [全日]9:00~19:00 最大料金3520円 19:00~9:00 最大料金1540円 [台数]5 |
周辺地図
VORT新宿御苑(旧:御苑前311)は新宿区新宿にある地下1階、地上9階建ての賃貸事務所です。最寄駅は都営新宿線の新宿三丁目駅から徒歩3分、東京メトロ丸ノ内線の新宿三丁目駅から徒歩3分、東京メトロ丸ノ内線の新宿御苑前駅から徒歩3分、JR線の新宿駅から徒歩9分です。1986年11月竣工の基準階面積が75.54坪の鉄骨鉄筋コンクリート造です。設備としては、エレベーターが1基あり、駐車場もあります。トイレは男女別です。空調は個別空調です。床仕様はフリーアクセスです。天高は2500mmです。耐震設計となっている、複数駅利用可能なアクセスの良い新宿区新宿の賃貸オフィスです。
全フロア情報
更新日:2026年4月14日
| 階 | 面積 | 賃料 | 共益費 | 敷金 | 入居日 | お問合せ | お気に入り | |
|---|---|---|---|---|---|---|---|---|
| 2F |
75.55 坪 249.75 ㎡ |
※現在空室情報はございません |
※現在空室情報は 確認する |
|||||
| 3F |
75.55 坪 249.75 ㎡ |
※現在空室情報はございません |
※現在空室情報は 確認する |
|||||
| 4F |
75.55 坪 249.75 ㎡ |
※現在空室情報はございません |
※現在空室情報は 確認する |
|||||
| 5F |
75.55 坪 249.75 ㎡ |
※現在空室情報はございません |
※現在空室情報は 確認する |
|||||
| 6F |
75.55 坪 249.75 ㎡ |
1,662,100 円 22,000 円(坪) |
込 |
8,310,500 円 5 ヶ月 |
2026/09/01 |
|
|
|
| 7F |
75.55 坪 249.75 ㎡ |
※現在空室情報はございません |
※現在空室情報は 確認する |
|||||
| 8F |
75.44 坪 249.39 ㎡ |
※現在空室情報はございません |
※現在空室情報は 確認する |
|||||
| 9F |
72.91 坪 241.02 ㎡ |
※現在空室情報はございません |
※現在空室情報は 確認する |
|||||
お問い合わせ
似た条件の物件はこちら
-
斉藤ビル
東京都新宿区西新宿7-5-3
坪数:70.16 坪
坪単価:15,000 円(坪)
-
アソルティ西新宿
東京都新宿区西新宿7-3-4
坪数:60.33 坪
坪単価:30,000 円(坪)
-
新宿セントランドビル
東京都新宿区西新宿3-5-1
坪数:72.12 坪
坪単価:20,000 円(坪)
-
西新宿PARKWEST
東京都新宿区西新宿6-12-1
坪数:87.71 坪
坪単価:19,000 円(坪)
-
新宿やわらぎビル
東京都新宿区新宿5-6-1
坪数:67 坪
坪単価:20,000 円(坪)
-
@WORK SHINJUKUGYOEN
東京都新宿区新宿2-1-9
坪数:73.05 坪
坪単価:31,000 円(坪)
-
SIL新宿
東京都新宿区歌舞伎町2-46-3
坪数:82.56 坪
坪単価:29,000 円(坪)
-
文芸社新宿御苑ビル
東京都新宿区新宿1-11-7
坪数:77.17 坪
坪単価:15,000 円(坪)
-
711ビルディング
東京都新宿区西新宿7-11-18
坪数:64.37 坪
坪単価:19,000 円(坪)