飛栄九段ビル(物件No:51080007)
飛栄九段ビルは千代田区九段南にある地下1階、地上11階建ての貸店舗事務所です。最寄駅は東京メトロ有楽町線の市ヶ谷駅から徒歩8分、東京メトロ半蔵門線の半蔵門駅から徒歩9分、東京メトロ東西線の九段下駅から徒歩9分、都営新宿線の市ヶ谷駅から徒歩5分です。1991年9月竣工の基準階面積が95.78坪の鉄骨造です。設備としては、エレベーターが2基あります。駐車場もあります。トイレは男女別です。空調は個別空調です。耐震設計となっている、複数駅利用可能なアクセスの良い千代田区九段南の貸店舗事務所です。
| 階 | 面積 | 賃料 | 共益費 | 敷金 | 入居日 | お問合せ | お気に入り |
|---|---|---|---|---|---|---|---|
|
7F
(1区画) |
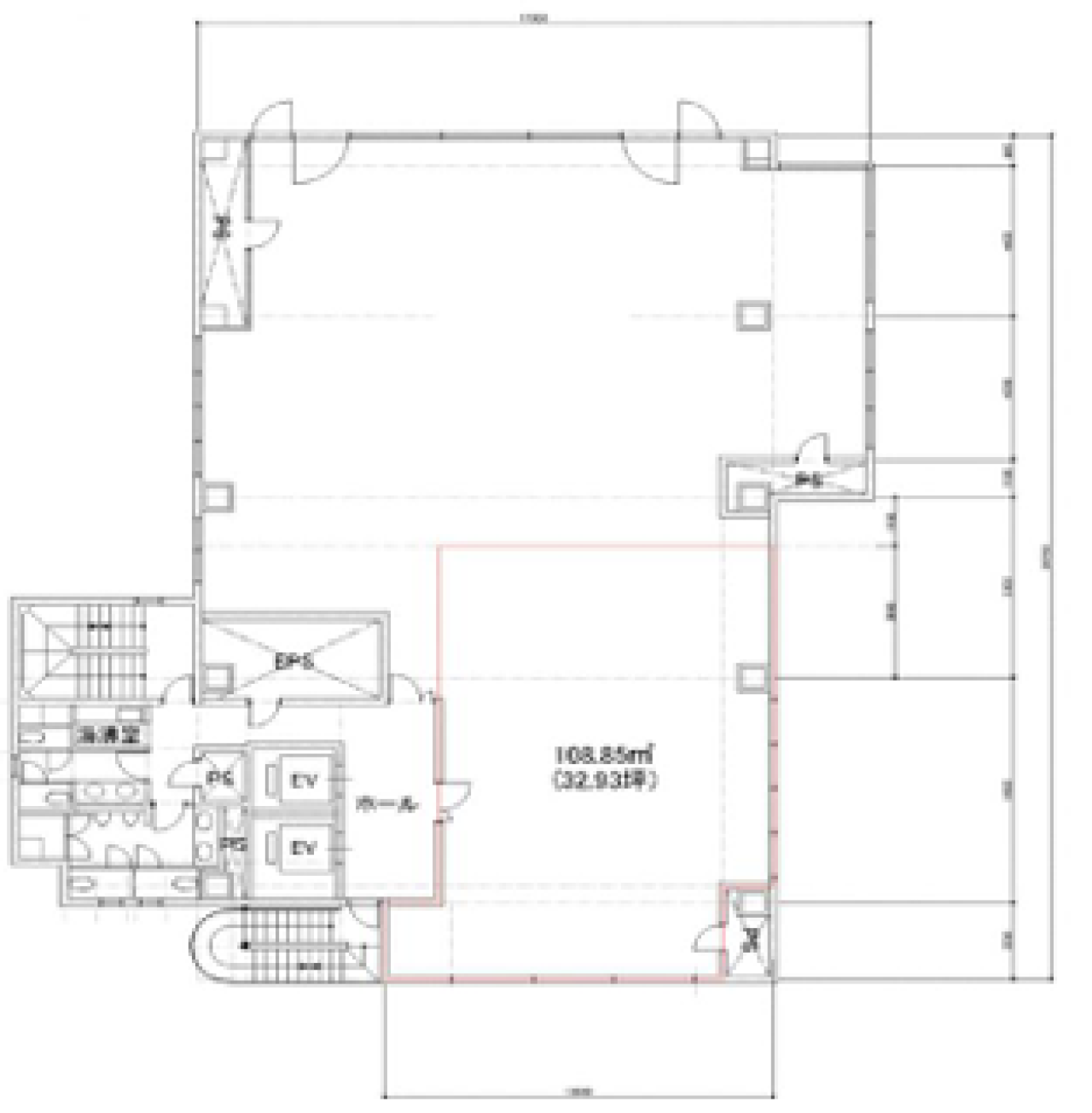
32.93 坪 108.86 ㎡ |
510,415 円 15,500 円(坪) |
115,283 円 3,500 円(坪) |
6,124,980 円 12 ヶ月 |
2026/08/01 |
|
|
| 階 | 面積 | 賃料 | 共益費 | 敷金 | 入居日 | お問合せ | お気に入り |
|---|---|---|---|---|---|---|---|
|
7F
(1区画) |
32.93 坪 108.86 ㎡ |
510,415 円 15,500 円(坪) |
115,283 円 3,500 円(坪) |
6,124,980 円 12 ヶ月 |
2026/08/01 |
|
|
-
物件情報
-
設備情報
- トイレ
- -
- 床
- -
- 空調
- 個別空調
- セキュリティ
- 有
- 駐車場
- 有
- 会議室
- -
- エレベーター
- 2基
- 天井高
- 2550mm
-
間取り図
-
近隣相場情報
九段南3丁目(30~40坪)の相場
19861 円 (坪)
※ビルサク調べ
周辺施設情報
| コンビニ |
セブンイレブン/千代田三番町/700m(徒歩8分) NewDays/市ヶ谷/650m(徒歩8分) |
|---|---|
| 郵便局/銀行 |
みずほ銀行/ATM 九段北出張所/[営業時間] [ATM]平日 6:00~26:00 土曜日 8:00~22:00 日曜日 8:00~21:00 祝日・振替休日 8:00~21:00 備考 *月曜日の6:00~7:00はご利用いただけません。通帳繰越機 設置なし/300m(徒歩4分) イオン銀行/ATM ミニストップ九段南4丁目店出張所/[営業時間]24時間/400m(徒歩5分) |
| 飲食店 |
RAKLI/11時30分~14時00分、18時00分~23時00分/41m(徒歩1分) もも瀬/11時30分~13時30分、17時30分~19時00分/170m(徒歩2分) |
| カフェ |
カフェドクリエ/市ヶ谷東/[営業時間][平 日] 07:00~21:00 [土日祝] (土)08:00~20:00 (日/祝)08:00~20:00/300m(徒歩4分) 吉茶 市ヶ谷店/11時30分~19時00分/180m(徒歩2分) |
| コインパーキング |
コインパーク/九段南4丁目 [料金] 【月~土】■通常料金【オールタイム [24時間]】12分/400円 【日祝】■通常料金【オールタイム [24時間]】20分/200円 [最大料金] 【月~土】■最大料金【19:00~8:00】800円 【日祝】■最大料金【19:00~8:00】800円 [台数] [車: 1台] ユアー・パーキング/九段南第2 [料金] 【全日】 08時~22時 20分/400円 【全日】22時~08時 60分/100円 [最大料金] 【全日】昼間最大(08時~22時の間)3,000円 【全日】夜間最大(22時~08時の間)600円 [台数]3 |
周辺地図
飛栄九段ビルは千代田区九段南にある地下1階、地上11階建ての貸店舗事務所です。最寄駅は東京メトロ有楽町線の市ヶ谷駅から徒歩8分、東京メトロ半蔵門線の半蔵門駅から徒歩9分、東京メトロ東西線の九段下駅から徒歩9分、都営新宿線の市ヶ谷駅から徒歩5分です。1991年9月竣工の基準階面積が95.78坪の鉄骨造です。設備としては、エレベーターが2基あります。駐車場もあります。トイレは男女別です。空調は個別空調です。耐震設計となっている、複数駅利用可能なアクセスの良い千代田区九段南の貸店舗事務所です。
全フロア情報
更新日:2026年4月6日
| 階 | 面積 | 賃料 | 共益費 | 敷金 | 入居日 | お問合せ | お気に入り | |
|---|---|---|---|---|---|---|---|---|
|
B1F
(B02区画) |
39.94 坪 132.03 ㎡ |
※現在空室情報はございません |
※現在空室情報は 確認する |
|||||
| 1F |
96.96 坪 320.53 ㎡ |
※現在空室情報はございません |
※現在空室情報は 確認する |
|||||
|
1F
(101区画) |
14.92 坪 49.32 ㎡ |
※現在空室情報はございません |
※現在空室情報は 確認する |
|||||
|
1F
(102区画) |
28.52 坪 94.28 ㎡ |
相談 |
込 |
10ヶ月 |
相談 |
|
|
|
|
2F
(1区画) |
30.52 坪 100.89 ㎡ |
※現在空室情報はございません |
※現在空室情報は 確認する |
|||||
| 3F |
95.78 坪 316.62 ㎡ |
※現在空室情報はございません |
※現在空室情報は 確認する |
|||||
|
5F
(1区画) |
59.98 坪 198.28 ㎡ |
※現在空室情報はございません |
※現在空室情報は 確認する |
|||||
| 6F |
95.78 坪 316.62 ㎡ |
※現在空室情報はございません |
※現在空室情報は 確認する |
|||||
| 7F |
62.85 坪 207.77 ㎡ |
※現在空室情報はございません |
※現在空室情報は 確認する |
|||||
|
7F
(1区画) |
32.93 坪 108.86 ㎡ |
510,415 円 15,500 円(坪) |
115,283 円 3,500 円(坪) |
6,124,980 円 12 ヶ月 |
2026/08/01 |
|
|
|
|
9F
(1区画) |
59.98 坪 198.28 ㎡ |
※現在空室情報はございません |
※現在空室情報は 確認する |
|||||
お問い合わせ
似た条件の物件はこちら
-
第2DMJビル
東京都千代田区九段南3-5-9
坪数:24.41 坪
坪単価:20,000 円(坪)
-
TYビル
東京都千代田区九段南2-3-23
坪数:40.25 坪
坪単価:23,602 円(坪)
-
エヌワンビル
東京都千代田区麹町3-2-3
坪数:37.8 坪
坪単価:21,000 円(坪)
-
WIND KIOICHO BLDG.
東京都千代田区紀尾井町3-30
坪数:29.6 坪
坪単価:25,000 円(坪)
-
Shirasuna bldg.NAGATACHO
東京都千代田区平河町2-10-4
坪数:28.6 坪
坪単価:19,895 円(坪)
-
プリンス通ビル
東京都千代田区紀尾井町3-33
坪数:38 坪
坪単価:13,158 円(坪)
-
恩田ビル
東京都千代田区六番町1-1
坪数:22.83 坪
坪単価:10,951 円(坪)
-
番町ハイム
東京都千代田区二番町1
坪数:33.16 坪
坪単価:14,867 円(坪)
-
平河町センタービル
東京都千代田区平河町1-4-12
坪数:22.66 坪
坪単価:20,000 円(坪)
-
桜ビル
東京都千代田区九段北4-2-2
坪数:35.14 坪
坪単価:14,229 円(坪)