オーツービル(物件No:41484223)
オーツービルは渋谷区広尾にある地下1階、地上10階建ての賃貸事務所です。最寄駅はJR線の恵比寿駅から徒歩4分、東急東横線の代官山駅から徒歩10分です。1990年9月竣工の基準階面積が22坪の鉄骨鉄筋コンクリート造です。設備としては、エレベーターが1基あります。セキュリティは機械警備です。空調は個別空調です。床仕様はフリーアクセスです。耐震設計となっている、複数路線利用可能なアクセスの良い渋谷区広尾の賃貸オフィスです。
-
物件情報
-
設備情報
- トイレ
- -
- 床
- フリーアクセス
- 空調
- 個別空調
- セキュリティ
- 有
- 駐車場
- 無
- 会議室
- -
- エレベーター
- 1基
- 天井高
- -
-
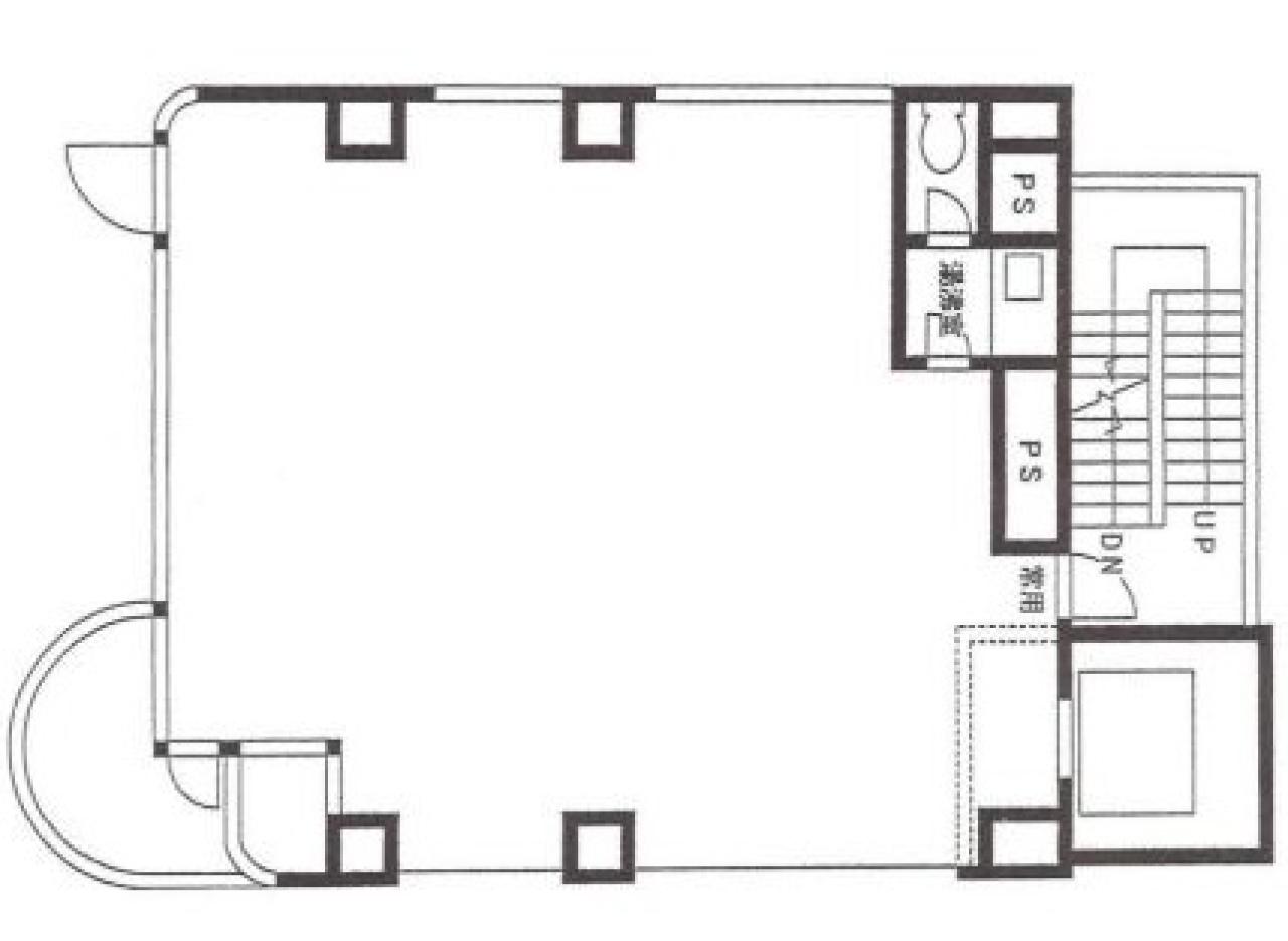
間取り図
-
近隣相場情報
広尾1丁目(20~30坪)の相場
24641 円 (坪)
※ビルサク調べ
周辺施設情報
| コンビニ |
セブンイレブン/恵比寿駅前/350m(徒歩5分) ローソン/恵比寿プライムスクエア/300m(徒歩4分) |
|---|---|
| 郵便局/銀行 |
みずほ銀行/恵比寿支店/[営業時間] [窓口]平日9:00~15:00 2021年8月10日より、8月23日以降のご来店について、インターネットを活用した予約サービスを開始いたしました。ご予約がない場合もお手続きは可能でございますが、予約をいただくことであらかじめ受付の日時を決めることができますのでぜひご活用ください。【ご/350m(徒歩5分) ビューアルッテ/JR恵比寿駅東口/[営業時間]24時間営業 [備考]1 台/450m(徒歩7分) |
| 飲食店 |
ALTRO!(アルトロ)/210m(徒歩3分) 松玄 恵比寿/11時30分~14時30分、17時00分~20時00分/24m(徒歩1分) |
| カフェ |
TEN/350m(徒歩5分) タリーズ/エビススバルビル店/[営業時間]平日:7:30~20:00 土:8:00~19:00 日祝:8:00~19:00 [備考]Tully's Wi-Fi、禁煙/280m(徒歩4分) |
| コインパーキング |
エコロパーク/恵比寿第11 [料金] 全日 終日 12分300円 [最大料金] 全日 4時間 最大1800円 1番車室, 全日 4時間 最大1500円 2番車室 全日 夜 20時~8時 最大800円 全車室 [台数]2 タイムズ/広尾第6 [料金] [全日]8:00~19:00 20分 330円 [全日]19:00~8:00 15分 220円 [最大料金] [全日]8:00~19:00 最大料金2200円 [全日]19:00~8:00 最大料金880円 [台数]4 |
周辺地図
オーツービルは渋谷区広尾にある地下1階、地上10階建ての賃貸事務所です。最寄駅はJR線の恵比寿駅から徒歩4分、東急東横線の代官山駅から徒歩10分です。1990年9月竣工の基準階面積が22坪の鉄骨鉄筋コンクリート造です。設備としては、エレベーターが1基あります。セキュリティは機械警備です。空調は個別空調です。床仕様はフリーアクセスです。耐震設計となっている、複数路線利用可能なアクセスの良い渋谷区広尾の賃貸オフィスです。
全フロア情報
更新日:2026年4月16日
| 階 | 面積 | 賃料 | 共益費 | 敷金 | 入居日 | お問合せ | お気に入り | |
|---|---|---|---|---|---|---|---|---|
| 2F |
17.89 坪 59.14 ㎡ |
290,000 円 16,210 円(坪) |
50,000 円 2,795 円(坪) |
1,740,000 円 6 ヶ月 |
即日 |
|
|
|
| 6F |
22.25 坪 73.55 ㎡ |
※現在空室情報はございません |
※現在空室情報は 確認する |
|||||
| 7F |
22.25 坪 73.56 ㎡ |
※現在空室情報はございません |
※現在空室情報は 確認する |
|||||
| 9F |
22.04 坪 72.85 ㎡ |
※現在空室情報はございません |
※現在空室情報は 確認する |
|||||
| 10F |
22.04 坪 72.85 ㎡ |
※現在空室情報はございません |
※現在空室情報は 確認する |
|||||
お問い合わせ
似た条件の物件はこちら
-
コマンドプロンプト広尾
東京都渋谷区広尾5-17-9
坪数:23.65 坪
坪単価:36,490 円(坪)
-
ウインズビル
東京都渋谷区恵比寿西2-7-2
坪数:19.81 坪
坪単価:18,021 円(坪)
-
エビスユニオンビル
東京都渋谷区恵比寿南1-2-10
坪数:26.57 坪
坪単価:21,942 円(坪)
-
センチュリーハウス広尾Part3
東京都渋谷区広尾5-3-2
坪数:17.41 坪
坪単価:11,488 円(坪)
-
鈴円代官山ビル
東京都渋谷区猿楽町4-3
坪数:23.74 坪
坪単価:26,032 円(坪)
-
デリス第2ビル
東京都渋谷区恵比寿1-16-29
坪数:20.01 坪
坪単価:18,491 円(坪)
-
代官山コーポラス
東京都渋谷区猿楽町12-1
坪数:20.89 坪
坪単価:15,231 円(坪)
-
ゼネラルビル恵比寿西
東京都渋谷区恵比寿西1-16-3
坪数:26.31 坪
坪単価:21,665 円(坪)
-
代官山エーデルハイム
東京都渋谷区代官山町3-13
坪数:17.63 坪
坪単価:15,000 円(坪)
-
メゾンドミエル恵比寿
東京都渋谷区恵比寿3-40-19
坪数:22.33 坪
坪単価:17,689 円(坪)