千代田寿ビル(物件No:41284029)
千代田寿ビルは、千代田区神田紺屋町にある地下1階、地上10階建ての貸店舗事務所です。最寄駅はJR線の神田駅から徒歩4分、都営新宿線の岩本町駅から徒歩4分、東京メトロ日比谷線の小伝馬町駅から徒歩5分、東京メトロ銀座線の三越前駅から徒歩7分、JR総武線快速の新日本橋駅から徒歩3分です。1975年3月竣工の基準階面積が68.1坪の鉄骨鉄筋コンクリート造です。設備としては、エレベーターが2基あり、駐車場もあります。トイレは室外男女別です。空調は個別空調です。床仕様はフリーアクセスです。天高は2400mmあります。複数路線利用可能なアクセスの良い千代田区神田紺屋町の貸店舗事務所です。
| 階 | 面積 | 賃料 | 共益費 | 敷金 | 入居日 | お問合せ | お気に入り |
|---|---|---|---|---|---|---|---|
|
8F
(801区画) |
17.71 坪 58.55 ㎡ |
141,680 円 8,000 円(坪) |
53,130 円 3,000 円(坪) |
850,080 円 6 ヶ月 |
即日 |
|
|
| 階 | 面積 | 賃料 | 共益費 | 敷金 | 入居日 | お問合せ | お気に入り |
|---|---|---|---|---|---|---|---|
|
8F
(801区画) |
17.71 坪 58.55 ㎡ |
141,680 円 8,000 円(坪) |
53,130 円 3,000 円(坪) |
850,080 円 6 ヶ月 |
即日 |
|
|
-
物件情報
-
設備情報
- トイレ
- 室外男女別
- 床
- フリーアクセス
- 空調
- 個別空調
- セキュリティ
- -
- 駐車場
- 有
- 会議室
- -
- エレベーター
- 2基
- 天井高
- -
-
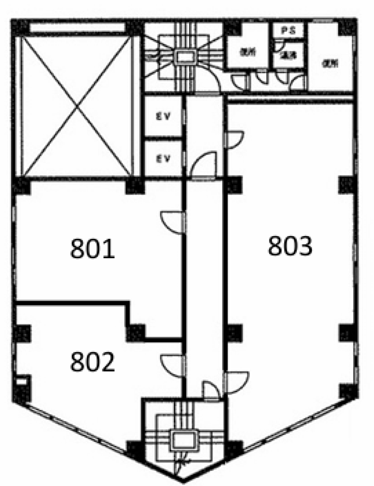
間取り図
-
近隣相場情報
神田紺屋町14丁目(20坪以下)の相場
12333 円 (坪)
※ビルサク調べ
周辺施設情報
| コンビニ |
ローソン/神田駅東口/450m(徒歩6分) セブンイレブン/神田紺屋町/82m(徒歩1分) |
|---|---|
| 郵便局/銀行 |
トマト銀行/東京支店/[営業時間] [窓口]平日:9:00~15:00/400m(徒歩5分) みずほ銀行/ATM ミニストップ神田鍛冶町店出張所/[営業時間] [ATM]平日 0:00~24:00 土曜日 0:00~22:00 日曜日 8:00~24:00 祝日・振替休日 曜日に準ずる 備考 通帳繰越機 設置なし/230m(徒歩3分) |
| 飲食店 |
ニュー加賀屋 神田南口店/16時00分~0時00分/260m(徒歩3分) ぼくんち/17時00分~23時00分/350m(徒歩5分) |
| カフェ |
Cafe Respiro/8時30分~19時00分/140m(徒歩2分) アシストコーヒー ロースタリー/11時30分~20時00分/300m(徒歩4分) |
| コインパーキング |
三井のリパーク/神田駅前第4 [料金] 全日 08:00~22:00 15分/400円 全日 22:00~08:00 60分/100円 [最大料金] 【全日】最大料金入庫後6時間以内2800円 [台数]3 コインパーク/日本橋本町4丁目第3 [料金] 【月~土】■通常料金【0:00~24:00】15分200円 【日祝】■通常料金【0:00~24:00】15分200円 [最大料金] 【月~土】■最大料金【8:00~19:00】3600円【19:00~8:00】500円 【日祝】■最大料金【8:00~19:00】1100円【19:00~8:00】500円 [台数] [車: 2台] |
周辺地図
千代田寿ビルは、千代田区神田紺屋町にある地下1階、地上10階建ての貸店舗事務所です。最寄駅はJR線の神田駅から徒歩4分、都営新宿線の岩本町駅から徒歩4分、東京メトロ日比谷線の小伝馬町駅から徒歩5分、東京メトロ銀座線の三越前駅から徒歩7分、JR総武線快速の新日本橋駅から徒歩3分です。1975年3月竣工の基準階面積が68.1坪の鉄骨鉄筋コンクリート造です。設備としては、エレベーターが2基あり、駐車場もあります。トイレは室外男女別です。空調は個別空調です。床仕様はフリーアクセスです。天高は2400mmあります。複数路線利用可能なアクセスの良い千代田区神田紺屋町の貸店舗事務所です。
全フロア情報
更新日:2026年4月15日
| 階 | 面積 | 賃料 | 共益費 | 敷金 | 入居日 | お問合せ | お気に入り | |
|---|---|---|---|---|---|---|---|---|
| 2F |
74.7 坪 246.94 ㎡ |
※現在空室情報はございません |
※現在空室情報は 確認する |
|||||
|
3F
(1区画) |
21.5 坪 71.07 ㎡ |
※現在空室情報はございません |
※現在空室情報は 確認する |
|||||
|
3F
(2区画) |
43.1 坪 142.48 ㎡ |
※現在空室情報はございません |
※現在空室情報は 確認する |
|||||
|
5F
(502区画) |
32.06 坪 105.98 ㎡ |
※現在空室情報はございません |
※現在空室情報は 確認する |
|||||
|
6F
(1区画) |
36.4 坪 120.33 ㎡ |
※現在空室情報はございません |
※現在空室情報は 確認する |
|||||
|
6F
(2区画) |
32.06 坪 105.98 ㎡ |
※現在空室情報はございません |
※現在空室情報は 確認する |
|||||
|
8F
(801区画) |
17.71 坪 58.55 ㎡ |
141,680 円 8,000 円(坪) |
53,130 円 3,000 円(坪) |
850,080 円 6 ヶ月 |
即日 |
|
|
|
|
8F
(802区画) |
14.42 坪 47.67 ㎡ |
115,360 円 8,000 円(坪) |
43,260 円 3,000 円(坪) |
692,160 円 6 ヶ月 |
即日 |
|
|
|
|
8F
(803区画) |
34.18 坪 112.99 ㎡ |
273,440 円 8,000 円(坪) |
102,540 円 3,000 円(坪) |
1,640,640 円 6 ヶ月 |
即日 |
|
|
|
|
9F
(2区画) |
31.99 坪 105.75 ㎡ |
※現在空室情報はございません |
※現在空室情報は 確認する |
|||||
お問い合わせ
似た条件の物件はこちら
-
新東ビル
東京都千代田区内神田2-8-3
坪数:21.5 坪
坪単価:12,000 円(坪)
-
神田乗物町ビル
東京都千代田区神田北乗物町2
坪数:20.88 坪
坪単価:12,973 円(坪)
-
パレヤソジマ
東京都千代田区神田司町2-15-1
坪数:12.03 坪
坪単価:12,053 円(坪)
-
神田美倉町ビル
東京都千代田区神田美倉町9
坪数:12.6 坪
坪単価:16,667 円(坪)
-
タイムビル3
東京都千代田区神田須田町1-5
坪数:21.96 坪
坪単価:13,500 円(坪)
-
藤和内神田ビル
東京都千代田区内神田2-4-4
坪数:18.49 坪
坪単価:16,500 円(坪)
-
プロミエ秋葉原
東京都千代田区神田練塀町73
坪数:13.65 坪
坪単価:19,121 円(坪)
-
昭和ビル
東京都千代田区神田和泉町1-2-5
坪数:16.5 坪
坪単価:11,000 円(坪)
-
第一ビル
東京都千代田区神田司町2-10
坪数:12.6 坪
坪単価:14,500 円(坪)
-
上田ビル
東京都千代田区神田司町2-19
坪数:12.1 坪
坪単価:11,000 円(坪)
関連エリアから探す
- 内神田
- 神田淡路町
- 神田小川町
- 神田鍛冶町
- 神田須田町
- 神田駿河台
- 神田多町
- 神田司町
- 神田錦町
- 神田美土代町
- 岩本町
- 鍛冶町
- 神田岩本町
- 神田北乗物町
- 神田紺屋町
- 神田富山町
- 神田西福田町
- 神田東松下町
- 神田東紺屋町
- 神田美倉町
- 東神田
- 神田相生町
- 神田和泉町
- 神田佐久間町
- 神田佐久間河岸
- 神田練塀町
- 神田花岡町
- 神田松永町
- 外神田
- 神田平河町