東五反田スクエア(物件No:41081118)
東五反田スクエアは品川区東五反田にある地下2階、地上16階建ての貸店舗物件です。最寄駅はJR線の五反田駅から徒歩4分、都営浅草線の五反田駅から徒歩5分、JR線の大崎駅から徒歩8分です。2009年4月竣工の基準階面積が328.37坪の鉄筋コンクリート造です。設備としては、エレベーターが7基あり、駐車場もあります。警備は機械警備です。トイレは室外男女別です。空調はセントラル空調です。耐震設計となっている、複数駅利用可能なアクセスの良い品川区東五反田の貸店舗物件です。
| 階 | 面積 | 賃料 | 共益費 | 敷金 | 入居日 | お問合せ | お気に入り | |
|---|---|---|---|---|---|---|---|---|
|
15F
(1501区画) |
65.77 坪 217.45 ㎡ |
※現在空室情報はございません |
※現在空室情報は 確認する |
|||||
-
物件情報
-
設備情報
- トイレ
- 室外男女別
- 床
- -
- 空調
- セントラル空調
- セキュリティ
- 有
- 駐車場
- 有
- 会議室
- -
- エレベーター
- 7基
- 天井高
- -
-
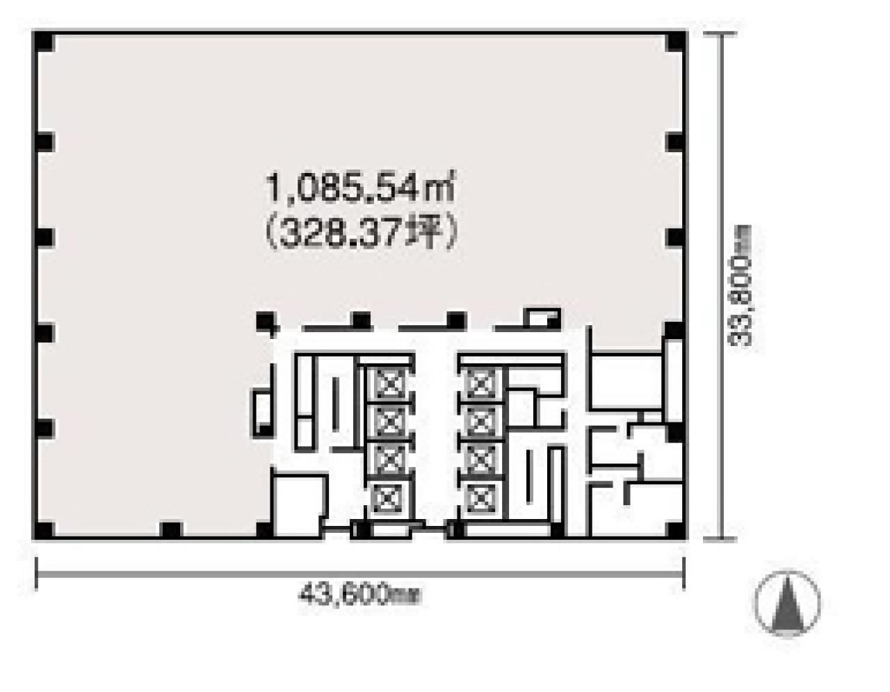
間取り図
-
近隣相場情報
東五反田2丁目(50~100坪)の相場
21111 円 (坪)
※ビルサク調べ
周辺地図
東五反田スクエアは品川区東五反田にある地下2階、地上16階建ての貸店舗物件です。最寄駅はJR線の五反田駅から徒歩4分、都営浅草線の五反田駅から徒歩5分、JR線の大崎駅から徒歩8分です。2009年4月竣工の基準階面積が328.37坪の鉄筋コンクリート造です。設備としては、エレベーターが7基あり、駐車場もあります。警備は機械警備です。トイレは室外男女別です。空調はセントラル空調です。耐震設計となっている、複数駅利用可能なアクセスの良い品川区東五反田の貸店舗物件です。
全フロア情報
更新日:2025年11月5日
| 階 | 面積 | 賃料 | 共益費 | 敷金 | 入居日 | お問合せ | お気に入り | |
|---|---|---|---|---|---|---|---|---|
|
4F
(401区画) |
35.36 坪 116.9 ㎡ |
※現在空室情報はございません |
※現在空室情報は 確認する |
|||||
|
5F
(501区画) |
157.22 坪 519.73 ㎡ |
※現在空室情報はございません |
※現在空室情報は 確認する |
|||||
|
6F
(601区画) |
157.22 坪 519.73 ㎡ |
※現在空室情報はございません |
※現在空室情報は 確認する |
|||||
|
6F
(603区画) |
76.75 坪 253.72 ㎡ |
※現在空室情報はございません |
※現在空室情報は 確認する |
|||||
|
6F
(605区画) |
94.39 坪 312.03 ㎡ |
※現在空室情報はございません |
※現在空室情報は 確認する |
|||||
|
7F
(701区画) |
328.37 坪 1085.52 ㎡ |
※現在空室情報はございません |
※現在空室情報は 確認する |
|||||
|
8F
(801区画) |
328.37 坪 1085.52 ㎡ |
※現在空室情報はございません |
※現在空室情報は 確認する |
|||||
|
9F
(901区画) |
328.37 坪 1085.52 ㎡ |
※現在空室情報はございません |
※現在空室情報は 確認する |
|||||
|
10F
(1001区画) |
328.37 坪 1085.52 ㎡ |
※現在空室情報はございません |
※現在空室情報は 確認する |
|||||
|
11F
(1101区画) |
157.22 坪 519.73 ㎡ |
※現在空室情報はございません |
※現在空室情報は 確認する |
|||||
|
12F
(1201区画) |
328.37 坪 1085.52 ㎡ |
※現在空室情報はございません |
※現在空室情報は 確認する |
|||||
|
13F
(1301区画) |
157.22 坪 519.73 ㎡ |
※現在空室情報はございません |
※現在空室情報は 確認する |
|||||
|
14F
(1401区画) |
328.37 坪 1085.54 ㎡ |
※現在空室情報はございません |
※現在空室情報は 確認する |
|||||
|
15F
(1501区画) |
65.77 坪 217.45 ㎡ |
※現在空室情報はございません |
※現在空室情報は 確認する |
|||||
|
16F
(1601区画) |
157.22 坪 519.73 ㎡ |
※現在空室情報はございません |
※現在空室情報は 確認する |
|||||
お問い合わせ
似た条件の物件はこちら
-
いちご東五反田ビル
東京都品川区東五反田1-6-3
坪数:61.55 坪
坪単価:18,000 円(坪)
-
THE GATE GOTANDA EAST
東京都品川区東五反田1-25-11
坪数:53.8 坪
坪単価:27,000 円(坪)
-
井雅ビル
東京都品川区上大崎3-14-12
坪数:60.06 坪
坪単価:12,000 円(坪)
-
SDI五反田ビル
東京都品川区西五反田7-13-6
坪数:72.49 坪
坪単価:12,000 円(坪)
-
目黒さつきビル
東京都品川区西五反田3-2-13
坪数:52.08 坪
坪単価:15,000 円(坪)
-
リビングライフ大崎ビル
東京都品川区西品川3-19-6
坪数:60.71 坪
坪単価:17,969 円(坪)
-
都五反田ビル西館
東京都品川区大崎5-6-2
坪数:77.15 坪
坪単価:16,000 円(坪)
-
THE CROSS GOTANDA
東京都品川区西五反田2-24-4
坪数:56.73 坪
坪単価:26,000 円(坪)
-
ジニアスビル
東京都品川区西五反田2-23-5
坪数:66.1 坪
坪単価:14,500 円(坪)
-
西五反田プレイス
東京都品川区西五反田3-12-14
坪数:62.77 坪
坪単価:25,000 円(坪)