いろいろ聞いてみる

芝浦の賃貸オフィス

第二吾妻ビル(物件No:32758437)

第二吾妻ビルは港区芝浦にある地上7階建ての賃貸事務所です。最寄駅はJR線の田町駅から徒歩5分です。1986年6月竣工の基準階面積が203.58坪の鉄筋コンクリート造です。設備としては、エレベーターが2基あります。空調は個別空調です。床仕様はフリーアクセスです。天高は2360mmです。耐震設計となっている、ビジネス街として人気のある港区芝浦の賃貸オフィスです。

面積 賃料 共益費 敷金 入居日 お問合せ お気に入り
3F

203.58 坪

672.99 ㎡

相談

相談

相談

2026/07/01 お問い合わせ お気に入り
  • 第二吾妻ビル
  • 第二吾妻ビル
  • 第二吾妻ビル
  • 第二吾妻ビル
面積 賃料 共益費 敷金 入居日 お問合せ お気に入り
3F

203.58 坪

672.99 ㎡

相談

相談

相談

2026/07/01 お問い合わせ お気に入り
  • 物件情報

    住所
    東京都港区芝浦3-18-21
    最寄り駅
    JR線 田町駅 徒歩5分
    竣工
    1986年
    耐震
    新耐震基準
    規模・構造
    1F - 7F  鉄筋コンクリート造
  • 設備情報

    トイレ
    室内男女別
    フリーアクセス
    空調
    個別空調
    セキュリティ
    -
    駐車場
    -
    会議室
    -
    エレベーター
    2基
    天井高
    2400mm
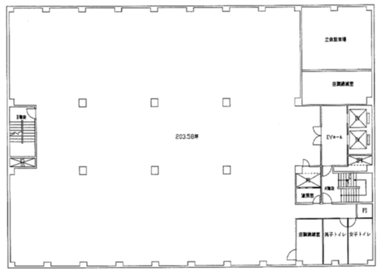
  • 間取り図

    間取り図

  • 近隣相場情報

    芝浦3丁目(100坪以上)の相場

    16928 円 (坪)
    ※ビルサク調べ

周辺施設情報

コンビニ

ローソン/ナチュラル 港芝浦三丁目/350m(徒歩4分)

ローソン100/芝浦二丁目/500m(徒歩7分)

郵便局/銀行

イオン銀行/ATM ピーコックストア芝浦アイランド店出張所/[営業時間]24時間/350m(徒歩5分)

イーネット/ファミリーマート本社/[営業時間]6:45~18:00/600m(徒歩8分)

飲食店

パサージュ田町店カジュアルイタリアン/11時30分~14時00分、17時00分~22時30分/260m(徒歩4分)

バー・ソシエ/18時00分~3時00分/300m(徒歩4分)

カフェ

タリーズ/田町グランパーク店/[営業時間]平日:8:00~19:00(L.O. 18:30) 土 :休業日 日祝:休業日 [備考]Tully's Wi-Fi/650m(徒歩8分)

カフェ・ベローチェ 芝浦店/7時00分~21時00分/290m(徒歩4分)

コインパーキング

タイムズ駐車場/芝浦第4

[料金]

[月~金]通常料金 / 00:00-00:00 10分 300円

[土・日・祝]通常料金 / 00:00-00:00 10分 300円

[最大料金]

[土・日・祝]当日1日最大料金1600円(24時迄)

[台数]13

コインパーク/芝浦MAビル

[料金]

【 月~金 】 ■通常料金 【 00:00~24:00 】 20分/400円

【 土日祝 】 ■通常料金 【 00:00~24:00 】 20分/300円

[最大料金]

【 月~金 】 ■最大料金 【21:00~8:00】400円

【 土日祝 】 【8:00~21:00】2400円 【21:00~8:00】400円

[台数][車: 5台]

周辺地図

第二吾妻ビルは港区芝浦にある地上7階建ての賃貸事務所です。最寄駅はJR線の田町駅から徒歩5分です。1986年6月竣工の基準階面積が203.58坪の鉄筋コンクリート造です。設備としては、エレベーターが2基あります。空調は個別空調です。床仕様はフリーアクセスです。天高は2360mmです。耐震設計となっている、ビジネス街として人気のある港区芝浦の賃貸オフィスです。

全フロア情報

更新日:2026年4月22日

面積 賃料 共益費 敷金 入居日 お問合せ お気に入り
2F

203.58 坪

672.99 ㎡

相談

相談

相談

2026/07/01 お問い合わせ お気に入り
3F

203.58 坪

672.99 ㎡

相談

相談

相談

2026/07/01 お問い合わせ お気に入り
7F

155.54 坪

514.18 ㎡

※現在空室情報はございません

※現在空室情報は
ございません

最新情報を
確認する

お問い合わせ

必須
必須
必須
必須
必須

関連エリアから探す

駅から探す

お問い合わせ

物件に関してのお問い合わせ

「失敗しないオフィス移転サポート」物件探しから移転までスムーズで担当者様がとにかく楽になるサービスです。

050-7587-0049平日 9:00~18:00

メールでお問い合わせ

フリーワード検索