青山NSビル(物件No:31989125)
青山NSビルは港区南青山にある地上3階建ての賃貸事務所です。最寄駅は東京メトロ銀座線の外苑前駅から徒歩4分、都営大江戸線の青山一丁目駅から徒歩4分、東京メトロ銀座線の青山一丁目駅から徒歩4分、東京メトロ半蔵門線の青山一丁目駅から徒歩4分、東京メトロ千代田線の乃木坂駅から徒歩9分です。1985年竣工の基準階面積が69.21坪の鉄筋コンクリート造です。設備としては、エレベーターが1基、駐車場もあります。トイレは男女別です。空調は個別空調です。耐震設計となっている、複数路線利用可能なアクセスの良い港区南青山の賃貸オフィスです。
-
物件情報
-
設備情報
- トイレ
- 室内男女別
- 床
- タイルカーペット
- 空調
- 個別空調
- セキュリティ
- -
- 駐車場
- 有
- 会議室
- -
- エレベーター
- 0基
- 天井高
- 2300mm
-
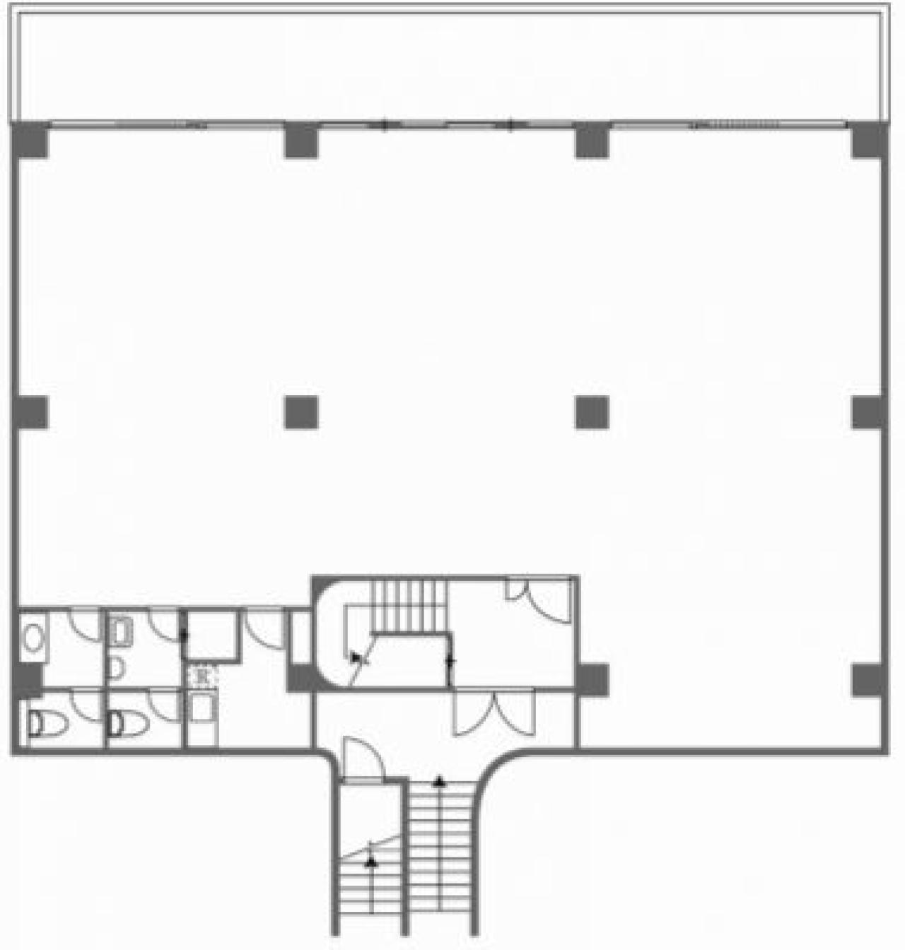
間取り図
-
近隣相場情報
南青山2丁目(50~100坪)の相場
25767 円 (坪)
※ビルサク調べ
周辺施設情報
| コンビニ |
ファミリーマート/神宮スタジアム通り店/650m(徒歩9分) セブンイレブン/港区乃木坂駅南/1200m(徒歩15分) |
|---|---|
| 郵便局/銀行 |
みずほ銀行/ATM ヴィルマルシェ青山店出張所/[営業時間] [ATM]平日 7:00~23:00 土曜日 7:00~22:00 日曜日 8:00~23:00 祝日・振替休日 曜日に準ずる 備考 通帳繰越機 設置なし/650m(徒歩8分) 三菱UFJ銀行/ATM 外苑前駅前/[営業時間] [ATM]平日 7:00~24:00 土曜日 7:00~24:00 日・祝日 7:00~24:00 *毎月第2土曜日の21:00~翌朝7:00はご利用いただけません/650m(徒歩8分) |
| 飲食店 |
メイユーアブニール/11時30分~15時30分、18時00分~3時00分/220m(徒歩3分) うお藤南青山店/[月~金]11:30~14:00/17:00~23:00[土]11:30~14:30/17:00~22:00/600m(徒歩8分) |
| カフェ |
エルグレコ/8時30分~21時00分/600m(徒歩7分) スターバックス/南青山2丁目店/[営業時間]月~金:7:00~22:00/土:8:00~22:00/日祝:8:00~21:00 [休業日]不定休 [備考]無線LAN:STARBUCKS/docomo/Softbank/au/Wi2 300/450m(徒歩6分) |
| コインパーキング |
パークネット/南青山2丁目第2 [料金] 昼 07:00~ 19:00 20分 / 400円 夜 19:00 ~ 07:00 60分 / 100円 [最大料金] 日祝 24時間 1500円 月~土 4時間 2500円 [台数]5台 NTTル・パルク/青山第1 [料金] 昼 7:00-23:00 30分 500円 夜 23:00-7:00 30分 500円 [最大料金] 夜 23:00-7:00 最大料金 1,000円(繰返しOK) [台数]:5台 |
周辺地図
青山NSビルは港区南青山にある地上3階建ての賃貸事務所です。最寄駅は東京メトロ銀座線の外苑前駅から徒歩4分、都営大江戸線の青山一丁目駅から徒歩4分、東京メトロ銀座線の青山一丁目駅から徒歩4分、東京メトロ半蔵門線の青山一丁目駅から徒歩4分、東京メトロ千代田線の乃木坂駅から徒歩9分です。1985年竣工の基準階面積が69.21坪の鉄筋コンクリート造です。設備としては、エレベーターが1基、駐車場もあります。トイレは男女別です。空調は個別空調です。耐震設計となっている、複数路線利用可能なアクセスの良い港区南青山の賃貸オフィスです。
全フロア情報
更新日:2026年1月30日
| 階 | 面積 | 賃料 | 共益費 | 敷金 | 入居日 | お問合せ | お気に入り | |
|---|---|---|---|---|---|---|---|---|
| B1F |
69.21 坪 228.79 ㎡ |
※現在空室情報はございません |
※現在空室情報は 確認する |
|||||
| 1F |
69.21 坪 228.79 ㎡ |
※現在空室情報はございません |
※現在空室情報は 確認する |
|||||
| 2F |
64 坪 211.57 ㎡ |
※現在空室情報はございません |
※現在空室情報は 確認する |
|||||
お問い合わせ
似た条件の物件はこちら
-
青山KYビル
東京都港区北青山2-12-13
坪数:54.61 坪
坪単価:19,000 円(坪)
-
外苑ビル
東京都港区南青山2-23-8
坪数:55.58 坪
坪単価:27,000 円(坪)
-
青山SGKビル
東京都港区南青山2-7-6
坪数:57.63 坪
坪単価:16,500 円(坪)
-
青山サンライトビル
東京都港区南青山6-5-55
坪数:83.77 坪
坪単価:20,000 円(坪)
-
マトリス
東京都港区南青山2-13-7
坪数:56.4 坪
坪単価:24,823 円(坪)