神楽坂プラザビル(物件No:31287197)
神楽坂プラザビルは新宿区神楽坂にある地下1階、地上4階建ての賃貸事務所です。最寄駅は東京メトロ南北線の飯田橋駅から徒歩4分、都営大江戸線の飯田橋駅から徒歩6分、東京メトロ有楽町線の有楽町駅から徒歩4分、JR中央・総武線の飯田橋駅から徒歩6分、都営大江戸線の牛込神楽坂駅から徒歩6分です。1992年11月竣工の基準階面積が214.79坪の鉄筋コンクリート造です。設備としてはエレベーターが2基あり、駐車場もあります。トイレは男女別です。空調は個別空調です。床仕様はフリーアクセスです。天高は2800mmです。耐震性は新耐震となっている、複数路線利用可能な新宿区神楽坂の賃貸オフィスです。
| 階 | 面積 | 賃料 | 共益費 | 敷金 | 入居日 | お問合せ | お気に入り |
|---|---|---|---|---|---|---|---|
| 3F |
221.23 坪 731.34 ㎡ |
相談 |
込 |
12ヶ月 |
2026/07 |
|
|
| 階 | 面積 | 賃料 | 共益費 | 敷金 | 入居日 | お問合せ | お気に入り |
|---|---|---|---|---|---|---|---|
| 3F |
221.23 坪 731.34 ㎡ |
相談 |
込 |
12ヶ月 |
2026/07 |
|
|
-
物件情報
-
設備情報
- トイレ
- 室外男女別
- 床
- フリーアクセス
- 空調
- 個別空調
- セキュリティ
- 有
- 駐車場
- 有
- 会議室
- -
- エレベーター
- 2基
- 天井高
- 2550mm
-
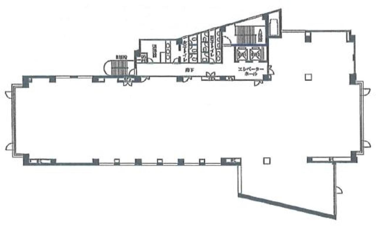
間取り図
-
近隣相場情報
神楽坂4丁目(100坪以上)の相場
調査中
周辺施設情報
| コンビニ |
セブンイレブン/新宿神楽坂3丁目/170m(徒歩2分) ファミリーマート/神楽坂三丁目店/280m(徒歩4分) |
|---|---|
| 郵便局/銀行 |
信用組合/第一勧業信用組合 神楽坂支店/電話番号03-3269-3111/170m(徒歩2分) ゆうちょ/新宿神楽坂郵便局/[営業時間] [窓口]平日 9:00~16:00 土曜日 - 日曜日・休日 -/100m(徒歩1分) |
| 飲食店 |
神楽坂 おいしんぼ/11時30分~14時00分 17時30分~20時00分/41m(徒歩1分) 神楽坂SHUN 分家/11時30分~14時00分/18m(徒歩1分) |
| カフェ |
ベローチェ/神楽坂店/[営業時間]7:00~23:00/100m(徒歩1分) 椿屋珈琲/神楽坂茶房/[営業時間]月~土 9:00~23:30(ラストオーダー23:00)日・祝 9:00~23:00(ラストオーダー22:30)/260m(徒歩3分) |
| コインパーキング |
タイムズ/東京新宿メディカルセンター [料金] [全日]通常料金 / 0:00~0:00 20分 300円 [最大料金] [全日]駐車後24時間 最大料金1500円 [台数]77 NPC24H/神楽坂三丁目 [料金] [料金]通常料金 20分/300円 [最大料金] [料金]最大料金 12時間毎 2700円 全日夜間 500円(19時~8時) [台数]6 |
周辺地図
神楽坂プラザビルは新宿区神楽坂にある地下1階、地上4階建ての賃貸事務所です。最寄駅は東京メトロ南北線の飯田橋駅から徒歩4分、都営大江戸線の飯田橋駅から徒歩6分、東京メトロ有楽町線の有楽町駅から徒歩4分、JR中央・総武線の飯田橋駅から徒歩6分、都営大江戸線の牛込神楽坂駅から徒歩6分です。1992年11月竣工の基準階面積が214.79坪の鉄筋コンクリート造です。設備としてはエレベーターが2基あり、駐車場もあります。トイレは男女別です。空調は個別空調です。床仕様はフリーアクセスです。天高は2800mmです。耐震性は新耐震となっている、複数路線利用可能な新宿区神楽坂の賃貸オフィスです。
全フロア情報
更新日:2026年4月3日
| 階 | 面積 | 賃料 | 共益費 | 敷金 | 入居日 | お問合せ | お気に入り | |
|---|---|---|---|---|---|---|---|---|
| B1F |
176.77 坪 584.36 ㎡ |
※現在空室情報はございません |
※現在空室情報は 確認する |
|||||
|
B1F
(1区画) |
155.4 坪 513.72 ㎡ |
※現在空室情報はございません |
※現在空室情報は 確認する |
|||||
| 1F |
104.9 坪 346.78 ㎡ |
※現在空室情報はございません |
※現在空室情報は 確認する |
|||||
| 2F |
217.61 坪 719.37 ㎡ |
※現在空室情報はございません |
※現在空室情報は 確認する |
|||||
| 3F |
221.23 坪 731.34 ㎡ |
相談 |
込 |
12ヶ月 |
2026/07 |
|
|
|
|
3F
(1区画) |
127.69 坪 422.12 ㎡ |
※現在空室情報はございません |
※現在空室情報は 確認する |
|||||
| 4F |
127.69 坪 422.12 ㎡ |
※現在空室情報はございません |
※現在空室情報は 確認する |
|||||
お問い合わせ
似た条件の物件はこちら
関連エリアから探す
- 赤城下町
- 市谷加賀町
- 揚場町
- 河田町
- 市谷砂土原町
- 市谷左内町
- 市谷田町
- 市谷台町
- 市谷長延寺町
- 市谷仲之町
- 市谷八幡町
- 市谷船河原町
- 市谷本村町
- 市谷薬王寺町
- 市谷柳町
- 市谷山伏町
- 岩戸町
- 榎町
- 改代町
- 神楽河岸
- 神楽坂
- 北町
- 北山伏町
- 細工町
- 下宮比町
- 白銀町
- 新小川町
- 水道町
- 箪笥町
- 築地町
- 筑土八幡町
- 津久戸町
- 天神町
- 富久町
- 中里町
- 中町
- 納戸町
- 西五軒町
- 二十騎町
- 払方町
- 東榎町
- 東五軒町
- 袋町
- 南町
- 南山伏町
- 山吹町
- 矢来町
- 横寺町
- 余丁町
- 住吉町