プロンテ九段ビル(物件No:31283028)
プロンテ九段ビルは、千代田区九段南にある貸事務所物件です。最寄り駅は、東京メトロ半蔵門線、東京メトロ東西線の九段下駅、都営新宿線、東京メトロ南北線、東京メトロ有楽町線、JR中央総武線の市ヶ谷駅、東京メトロ半蔵門線の半蔵門駅、東京メトロ丸ノ内線、東京メトロ銀座線の赤坂見附駅です。1987年竣工で、基準階が31.4坪の賃貸オフィスビルです。床はOAフロアとなっております。空調は個別空調で、トイレは室外にあります。機械警備で、エレベーターは1基あります。複数路線利用可能な、アクセスの良い千代田区九段南の貸事務所です。
-
物件情報
-
設備情報
- トイレ
- 室外
- 床
- フリーアクセス
- 空調
- 個別空調
- セキュリティ
- 有
- 駐車場
- -
- 会議室
- -
- エレベーター
- 1基
- 天井高
- -
-
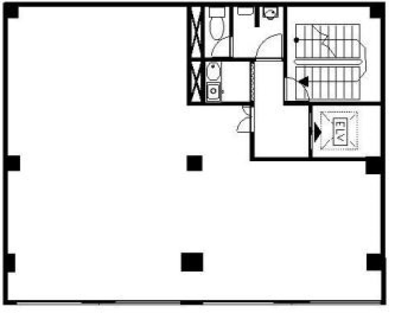
間取り図
-
近隣相場情報
九段南3丁目(30~40坪)の相場
25666 円 (坪)
※ビルサク調べ
周辺施設情報
| コンビニ |
セブンイレブン/九段北4丁目/350m(徒歩4分) ローソン/ナチュラル 千代田四番町/800m(徒歩10分) |
|---|---|
| 郵便局/銀行 |
三菱UFJ銀行/ATM アルカディア市ヶ谷/[営業時間] [ATM]平日 7:00~24:00 土曜日 7:00~24:00 日・祝日 7:00~24:00 *毎月第2土曜日の21:00~翌朝7:00はご利用いただけません/450m(徒歩6分) ゆうちょ/ATM 本店 法政大学市ケ谷校舎内出張所/[駐車場]なし [取扱]ATM/450m(徒歩6分) |
| 飲食店 |
みやらび/11時30分~14時00分、17時30分~23時00分/95m(徒歩1分) 大川や/11時30分~14時00分、18時00分~20時30分/78m(徒歩1分) |
| カフェ |
カフェドクリエ/市ヶ谷東/[営業時間][平 日] 07:00~21:00 [土日祝] (土)08:00~20:00 (日/祝)08:00~20:00/300m(徒歩4分) ドトール/九段店/[営業時間]※営業時間を短縮しております。(~19:00)■通常営業時間 平日 6:45~20:00 土曜 7:30~19:00 日祝 8:00~19:00 [備考]総席数:52(禁煙席:39 喫煙席:13)/喫煙席(加熱)/600m(徒歩7分) |
| コインパーキング |
NPC24H/九段南 [料金] 15分/500円 [最大料金] No,18~26 12時間毎 3800円 全日夜間 600円(18時~8時) [台数]23台 PEN/千代田区九段南3丁目 [料金] 【全日】 8:00~22:00 300円 / 20分 【全日】 22:00~8:00 100円 / 60分 [最大料金] 【当日最大料金】 日曜日・祝日 8:00~22:00 2500円 (繰り返し可) 【夜間最大料金】 全日 22:00~8:00 500円 (繰り返し可) [営業時間]24時間営業 |
周辺地図
プロンテ九段ビルは、千代田区九段南にある貸事務所物件です。最寄り駅は、東京メトロ半蔵門線、東京メトロ東西線の九段下駅、都営新宿線、東京メトロ南北線、東京メトロ有楽町線、JR中央総武線の市ヶ谷駅、東京メトロ半蔵門線の半蔵門駅、東京メトロ丸ノ内線、東京メトロ銀座線の赤坂見附駅です。1987年竣工で、基準階が31.4坪の賃貸オフィスビルです。床はOAフロアとなっております。空調は個別空調で、トイレは室外にあります。機械警備で、エレベーターは1基あります。複数路線利用可能な、アクセスの良い千代田区九段南の貸事務所です。
全フロア情報
更新日:2025年11月18日
| 階 | 面積 | 賃料 | 共益費 | 敷金 | 入居日 | お問合せ | お気に入り | |
|---|---|---|---|---|---|---|---|---|
| 2F |
31.4 坪 103.8 ㎡ |
※現在空室情報はございません |
※現在空室情報は 確認する |
|||||
| 3F |
31.4 坪 103.8 ㎡ |
※現在空室情報はございません |
※現在空室情報は 確認する |
|||||
| 5-6F |
28.07 坪 92.79 ㎡ |
617,540 円 22,000 円(坪) |
込 |
2,470,160 円 4 ヶ月 |
2025/12/01 |
|
|
|
お問い合わせ
似た条件の物件はこちら
-
第2DMJビル
東京都千代田区九段南3-5-9
坪数:24.41 坪
坪単価:20,000 円(坪)
-
TYビル
東京都千代田区九段南2-3-23
坪数:40.25 坪
坪単価:23,602 円(坪)
-
隼東幸ビル
東京都千代田区隼町3-19
坪数:21.15 坪
坪単価:14,000 円(坪)
-
Shirasuna bldg.NAGATACHO
東京都千代田区平河町2-10-4
坪数:28.45 坪
坪単価:22,048 円(坪)
-
一番町村上ビル
東京都千代田区一番町9-7
坪数:32.84 坪
坪単価:12,000 円(坪)
-
桜ビル
東京都千代田区九段北4-2-2
坪数:35.14 坪
坪単価:14,229 円(坪)
-
エクサス六番町
東京都千代田区六番町11-3
坪数:26.66 坪
坪単価:13,128 円(坪)
-
宮ビル
東京都千代田区麹町4-3-4
坪数:33.22 坪
坪単価:12,041 円(坪)
-
九段櫻ビル
東京都千代田区九段北1-10-5
坪数:33.5 坪
坪単価:10,500 円(坪)
-
グランドメゾン六番町
東京都千代田区六番町6-20
坪数:26.63 坪
坪単価:13,143 円(坪)