メトロシティ半蔵⾨(物件No:31280069)
メトロシティ半蔵⾨(旧:新半蔵門ビル)は千代田区一番町にある地下2階、地上7階建ての賃貸事務所です。最寄駅は東京メトロ半蔵門線の半蔵門駅から徒歩1分、東京メトロ有楽町線の麹町駅から徒歩7分です。1993年8月竣工の鉄骨鉄筋コンクリート造です。設備としては、エレベーターが2基あり、駐車場もあります。警備は機械警備です。トイレは男女別です。空調は個別空調です。床仕様はフリーアクセスです。天高は2500mmです。耐震設計となっている、最寄駅から近くて便利な千代田区一番町の賃貸オフィスです。
-
物件情報
-
設備情報
- トイレ
- 男女別
- 床
- フリーアクセス
- 空調
- 個別空調
- セキュリティ
- 有
- 駐車場
- 有
- 会議室
- -
- エレベーター
- 2基
- 天井高
- 2500mm
-
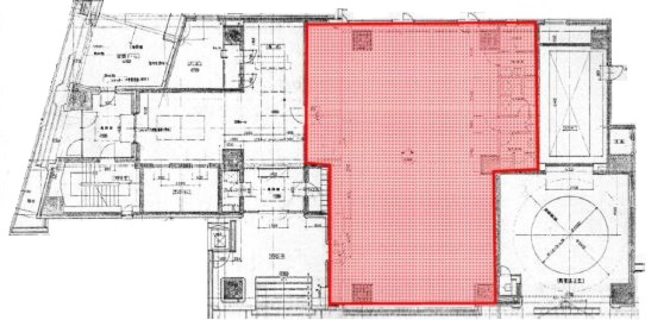
間取り図
-
近隣相場情報
一番町13丁目(50~100坪)の相場
17333 円 (坪)
※ビルサク調べ
周辺施設情報
| コンビニ |
ローソン/千代田一番町/260m(徒歩3分) ファミリーマート/麹町駅前店/500m(徒歩7分) |
|---|---|
| 郵便局/銀行 |
三井住友銀行/ATM 東京メトロ半蔵門駅出張所/[営業時間] [ATM]平日 7:00~24:00 土曜 7:00~24:00 日曜 7:00~21:00/300m(徒歩5分) ろうきん/中央労働金庫 市谷支店/[営業時間]9:00~15:00 [休業日]土曜・日曜・祝日/750m(徒歩10分) |
| 飲食店 |
なか卯 九段南店/24 時間営業/800m(徒歩10分) 石心亭/11時30分~14時00分、17時30分~21時30分/1600m(徒歩20分) |
| カフェ |
サンマルクカフェ/半蔵門店/[営業時間]7:00~21:00新型コロナウィルスの影響により営業時間が短縮する場合がございますので、営業時間は店舗までお問い合わせください [休業日]無 [備考]63席/店内全面禁煙/350m(徒歩5分) ドトール/麹町四番町店/[営業時間]平日:7:15~21:00 土曜日:8:00~18:00 日 祝:8:00~18:00 [休業日]なし [備考]総席数:53 禁煙席:46 喫煙席:7(プラス喫煙ブースあり)/750m(徒歩10分) |
| コインパーキング |
タイムズ駐車場/第二地方銀行協会 [料金] [月~土]通常料金 / 0:00~0:00 20分 440円 [日・祝]通常料金 / 0:00~0:00 20分 440円 [最大料金] [月~土]8:00~19:00 最大料金2900円 19:00~8:00 最大料金400円 [日・祝]8:00~19:00 最大料金800円 19:00~8:00 最大料金400円 [台数]30 三井のリパーク/一番町第3 [料金] 全日 08:00~20:00 10分/300円 全日 20:00~08:00 60分/100円 [最大料金] 【全日】20:00~8:00以内 最大料金500円 [台数]1 |
周辺地図
メトロシティ半蔵⾨(旧:新半蔵門ビル)は千代田区一番町にある地下2階、地上7階建ての賃貸事務所です。最寄駅は東京メトロ半蔵門線の半蔵門駅から徒歩1分、東京メトロ有楽町線の麹町駅から徒歩7分です。1993年8月竣工の鉄骨鉄筋コンクリート造です。設備としては、エレベーターが2基あり、駐車場もあります。警備は機械警備です。トイレは男女別です。空調は個別空調です。床仕様はフリーアクセスです。天高は2500mmです。耐震設計となっている、最寄駅から近くて便利な千代田区一番町の賃貸オフィスです。
全フロア情報
更新日:2026年4月3日
| 階 | 面積 | 賃料 | 共益費 | 敷金 | 入居日 | お問合せ | お気に入り | |
|---|---|---|---|---|---|---|---|---|
| 1F |
60.01 坪 198.38 ㎡ |
※現在空室情報はございません |
※現在空室情報は 確認する |
|||||
| 2F |
124.19 坪 410.54 ㎡ |
3,104,750 円 25,000 円(坪) |
相談 |
37,257,000 円 12 ヶ月 |
2026/09/01 |
|
|
|
| 3F |
137.72 坪 455.27 ㎡ |
※現在空室情報はございません |
※現在空室情報は 確認する |
|||||
| 4F |
137.72 坪 455.27 ㎡ |
※現在空室情報はございません |
※現在空室情報は 確認する |
|||||
| 5F |
137.72 坪 455.27 ㎡ |
※現在空室情報はございません |
※現在空室情報は 確認する |
|||||
| 6F |
131.94 坪 436.16 ㎡ |
※現在空室情報はございません |
※現在空室情報は 確認する |
|||||
| 7F |
127.2 坪 420.5 ㎡ |
※現在空室情報はございません |
※現在空室情報は 確認する |
|||||
|
7F
(A区画) |
67.93 坪 224.56 ㎡ |
※現在空室情報はございません |
※現在空室情報は 確認する |
|||||
|
7F
(B区画) |
59.36 坪 196.23 ㎡ |
※現在空室情報はございません |
※現在空室情報は 確認する |
|||||
お問い合わせ
似た条件の物件はこちら
-
矢野ビル
東京都千代田区九段北1-12-30
坪数:70.81 坪
坪単価:12,000 円(坪)
-
サンライン第14ビル
東京都千代田区九段北4-3-16
坪数:48.74 坪
坪単価:12,727 円(坪)
-
一番町館
東京都千代田区一番町22-4
坪数:46.16 坪
坪単価:20,000 円(坪)
-
麹町アネックス
東京都千代田区麹町4-5-10
坪数:45.65 坪
坪単価:11,610 円(坪)
-
麹町シルクビル
東京都千代田区麹町3-5
坪数:62.08 坪
坪単価:14,800 円(坪)
-
麹町秀永ビル
東京都千代田区九段南4-3-13
坪数:63.03 坪
坪単価:15,000 円(坪)
-
ノザワビル
東京都千代田区一番町9-8
坪数:45.48 坪
坪単価:13,632 円(坪)
-
紀尾井町鶴屋ビル
東京都千代田区紀尾井町3-20
坪数:54.59 坪
坪単価:15,000 円(坪)
-
ライオンズステーションプラザ半蔵門
東京都千代田区麹町1-5-4
坪数:51.08 坪
坪単価:14,683 円(坪)
-
WORK VILLA HIRAKAWACHO
東京都千代田区平河町1-6-8
坪数:68.02 坪
坪単価:44,105 円(坪)