Aビル(物件No:21286240)
Aビルは、墨田区錦糸にある地上7階建ての賃貸事務所です。最寄駅はJR中央・総武線の錦糸町駅から徒歩5分、JR総武線快速の錦糸町駅から徒歩5分、東京メトロ半蔵門線の錦糸町駅から徒歩5分です。1996年8月竣工の鉄筋コンクリート造です。設備としては、エレベーターが1基あります。セキュリティは機械警備です。トイレは室内男女別です。空調は個別空調です。床仕様は3WAYです。天高は2500mmです。耐震設計となっている、複数駅利用可能なアクセスの良い墨田区錦糸の賃貸オフィスです。
-
物件情報
-
設備情報
- トイレ
- 室内男女別
- 床
- -
- 空調
- 個別空調
- セキュリティ
- 有
- 駐車場
- -
- 会議室
- -
- エレベーター
- 1基
- 天井高
- -
-
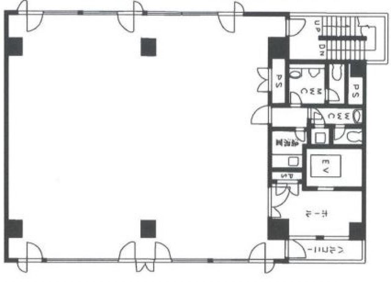
間取り図
-
近隣相場情報
錦糸1丁目(40~50坪)の相場
調査中
周辺地図
Aビルは、墨田区錦糸にある地上7階建ての賃貸事務所です。最寄駅はJR中央・総武線の錦糸町駅から徒歩5分、JR総武線快速の錦糸町駅から徒歩5分、東京メトロ半蔵門線の錦糸町駅から徒歩5分です。1996年8月竣工の鉄筋コンクリート造です。設備としては、エレベーターが1基あります。セキュリティは機械警備です。トイレは室内男女別です。空調は個別空調です。床仕様は3WAYです。天高は2500mmです。耐震設計となっている、複数駅利用可能なアクセスの良い墨田区錦糸の賃貸オフィスです。
全フロア情報
更新日:2026年1月6日
| 階 | 面積 | 賃料 | 共益費 | 敷金 | 入居日 | お問合せ | お気に入り | |
|---|---|---|---|---|---|---|---|---|
| 2F |
45.93 坪 151.83 ㎡ |
※現在空室情報はございません |
※現在空室情報は 確認する |
|||||
| 4F |
45.93 坪 151.83 ㎡ |
※現在空室情報はございません |
※現在空室情報は 確認する |
|||||
お問い合わせ
似た条件の物件はこちら
-
市川ビル
東京都墨田区立川3-10-1
坪数:42.75 坪
坪単価:8,000 円(坪)
-
WAJ錦糸町ビル
東京都墨田区江東橋4-15-8
坪数:36.21 坪
坪単価:14,637 円(坪)
-
ガーベラ錦糸町ビル
東京都墨田区江東橋4-22-4
坪数:46.87 坪
坪単価:11,638 円(坪)
-
マツミハイツ
東京都墨田区立川4-13-1
坪数:37.02 坪
坪単価:8,000 円(坪)
-
柳澤ビル
東京都墨田区錦糸3-4-8
坪数:54.14 坪
坪単価:18,471 円(坪)
-
雷電ビル
東京都墨田区両国3-22-6
坪数:35.19 坪
坪単価:15,000 円(坪)
-
ATG両国Bldg.
東京都墨田区両国4-27-8
坪数:43.9 坪
坪単価:13,164 円(坪)
-
マイホーム錦糸
東京都墨田区錦糸3-7-7
坪数:43.07 坪
坪単価:30,648 円(坪)