箱崎公園ビル(物件No:21081113)
箱崎公園ビルは中央区日本橋箱崎町にある地下1階、地上8階建ての賃貸事務所です。最寄駅は都営新宿線の浜町駅から徒歩3分、東京メトロ半蔵門線の水天宮前駅から徒歩2分、東京メトロ日比谷線の人形町駅から徒歩6分、東京メトロ東西線の茅場町駅から徒歩7分です。1994年1月竣工の基準階面積が63.93坪の鉄骨造です。設備としてはエレベーターが1基あり、駐車場もあります。貸し会議室もあります。機械警備もあります。トイレは室外男女別です。空調は個別空調です。床仕様はフリーアクセスです。天高は2550mmです。耐震性は新耐震となっている、複数駅利用可能な、アクセスの良い中央区日本橋箱崎町の賃貸オフィスです。
-
物件情報
-
設備情報
- トイレ
- 室外男女別
- 床
- フリーアクセス
- 空調
- 個別空調
- セキュリティ
- 有
- 駐車場
- 有
- 会議室
- 有
- エレベーター
- 1基
- 天井高
- 2550mm
-
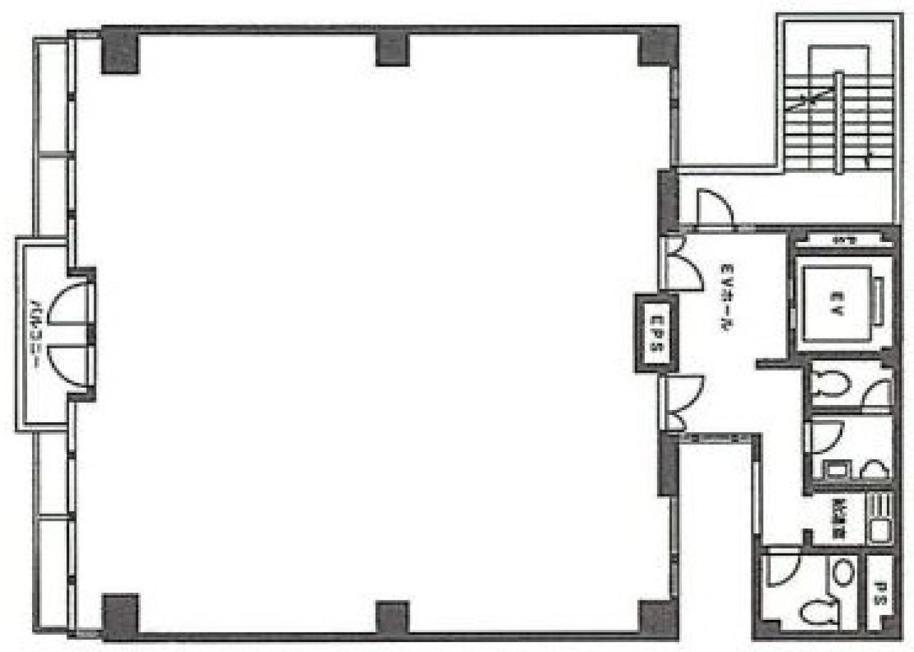
間取り図
-
近隣相場情報
日本橋箱崎町20丁目(40~50坪)の相場
13261 円 (坪)
※ビルサク調べ
周辺施設情報
| コンビニ |
ローソン/箱崎湊橋/120m(徒歩1分) ローソン/日本橋箱崎/110m(徒歩1分) |
|---|---|
| 郵便局/銀行 |
ローソン銀行/日本橋箱崎共同出張所/[営業時間]24時間/110m(徒歩1分) 郵便局/東京シティターミナル内/[駐車場]なし/220m(徒歩3分) |
| 飲食店 |
丼丸 箱崎店/10時00分~20時00分/120m(徒歩2分) ぽえむ 日本橋店/9時00分~18時00分/150m(徒歩2分) |
| カフェ |
タリーズ/IBM箱崎店/[営業時間]平日:7:00~19:00 土 :休業日 日祝:休業日/120m(徒歩2分) カフェドクリエ/箱崎町/[営業時間][平 日] 7:30-18:00 [土日祝] (土)休業 (日/祝)休業/100m(徒歩1分) |
| コインパーキング |
KF-Park/箱崎 [料金] [料金]200円/15分(8~22時)、100円/60分(22~8時)200円/15分(8~22時)、100円/60分(22~8時) [最大料金] 最大料金:月~金昼間最大2,600円(8~22時) 土日祝昼間最大 1,500円(8~22時)、夜間最大500円(22~8時) [台数]14台 タイムズ駐車場/日本橋箱崎町第4 [料金] [月~土]通常料金 / 0:00~0:00 20分 330円 [日・祝]通常料金 / 0:00~0:00 20分 330円 [最大料金] [月~土]8:00~18:00 最大料金3520円 18:00~8:00 最大料金660円 [日・祝]8:00~18:00 最大料金1320円 18:00~8:00 最大料金660円 [台数]3 |
周辺地図
箱崎公園ビルは中央区日本橋箱崎町にある地下1階、地上8階建ての賃貸事務所です。最寄駅は都営新宿線の浜町駅から徒歩3分、東京メトロ半蔵門線の水天宮前駅から徒歩2分、東京メトロ日比谷線の人形町駅から徒歩6分、東京メトロ東西線の茅場町駅から徒歩7分です。1994年1月竣工の基準階面積が63.93坪の鉄骨造です。設備としてはエレベーターが1基あり、駐車場もあります。貸し会議室もあります。機械警備もあります。トイレは室外男女別です。空調は個別空調です。床仕様はフリーアクセスです。天高は2550mmです。耐震性は新耐震となっている、複数駅利用可能な、アクセスの良い中央区日本橋箱崎町の賃貸オフィスです。
全フロア情報
更新日:2026年4月17日
| 階 | 面積 | 賃料 | 共益費 | 敷金 | 入居日 | お問合せ | お気に入り | |
|---|---|---|---|---|---|---|---|---|
| 3F |
35.48 坪 117.29 ㎡ |
※現在空室情報はございません |
※現在空室情報は 確認する |
|||||
| 4F |
42.62 坪 140.89 ㎡ |
※現在空室情報はございません |
※現在空室情報は 確認する |
|||||
| 6F |
45.23 坪 149.52 ㎡ |
※現在空室情報はございません |
※現在空室情報は 確認する |
|||||
お問い合わせ
似た条件の物件はこちら
-
オーキッドプレイス蛎殻町ビル
東京都中央区日本橋蛎殻町1-4-1
坪数:51.15 坪
坪単価:15,000 円(坪)
-
第1松井ビル
東京都中央区日本橋馬喰町1-8-4
坪数:36.67 坪
坪単価:8,000 円(坪)
-
Grandir 日本橋小伝馬町
東京都中央区日本橋小伝馬町18-1
坪数:44.34 坪
坪単価:24,000 円(坪)
-
吉野第二ビル
東京都中央区日本橋馬喰町1-6-6
坪数:41.44 坪
坪単価:10,000 円(坪)
-
クロスシー東日本橋ビル
東京都中央区東日本橋2-22-1
坪数:48.56 坪
坪単価:23,000 円(坪)
-
ホリーズ日本橋
東京都中央区日本橋横山町5-2
坪数:37.69 坪
坪単価:11,409 円(坪)
-
(仮称)びいんず馬喰町駅前ビル
東京都中央区日本橋馬喰町1-11-2
坪数:42.19 坪
坪単価:18,962 円(坪)
-
安井ビル
東京都中央区日本橋人形町1-6-2
坪数:38.9 坪
坪単価:15,000 円(坪)
-
カズキビル
東京都中央区日本橋浜町2-36-8
坪数:48.12 坪
坪単価:18,000 円(坪)
-
EDGE小伝馬町ビル
東京都中央区日本橋小伝馬町15-18
坪数:48.82 坪
坪単価:20,000 円(坪)
関連エリアから探す
- 日本橋大伝馬町
- 日本橋蛎殻町
- 日本橋小網町
- 日本橋小伝馬町
- 日本橋小舟町
- 日本橋富沢町
- 日本橋人形町
- 日本橋箱崎町
- 日本橋堀留町
- 日本橋中洲
- 日本橋馬喰町
- 日本橋浜町
- 日本橋久松町
- 日本橋横山町
- 東日本橋