マキプラザ(物件No:12534152)
マキプラザは中央区新富にある地下1階、地上7階建ての賃貸事務所です。最寄駅は東京メトロ日比谷線の八丁堀駅から徒歩4分、東京メトロ日比谷線の築地駅から徒歩6分、東京メトロ有楽町線の新富町駅から徒歩3分、都営浅草線の宝町駅から徒歩6分です。1980年竣工の基準階面積が20.72坪の鉄筋コンクリート造です。設備としては、エレベーターが1基あります。空調は個別空調です。最寄駅から駅近で便利な中央区新富の賃貸オフィスです。
| 階 | 面積 | 賃料 | 共益費 | 敷金 | 入居日 | お問合せ | お気に入り |
|---|---|---|---|---|---|---|---|
|
4F
(401区画) |
14.49 坪 47.9 ㎡ |
135,000 円 9,317 円(坪) |
25,020 円 1,727 円(坪) |
800,000 円 |
相談 |
|
|
| 階 | 面積 | 賃料 | 共益費 | 敷金 | 入居日 | お問合せ | お気に入り |
|---|---|---|---|---|---|---|---|
|
4F
(401区画) |
14.49 坪 47.9 ㎡ |
135,000 円 9,317 円(坪) |
25,020 円 1,727 円(坪) |
800,000 円 |
相談 |
|
|
-
物件情報
-
設備情報
- トイレ
- 室内男女共用
- 床
- -
- 空調
- 個別空調
- セキュリティ
- -
- 駐車場
- -
- 会議室
- -
- エレベーター
- 1基
- 天井高
- -
-
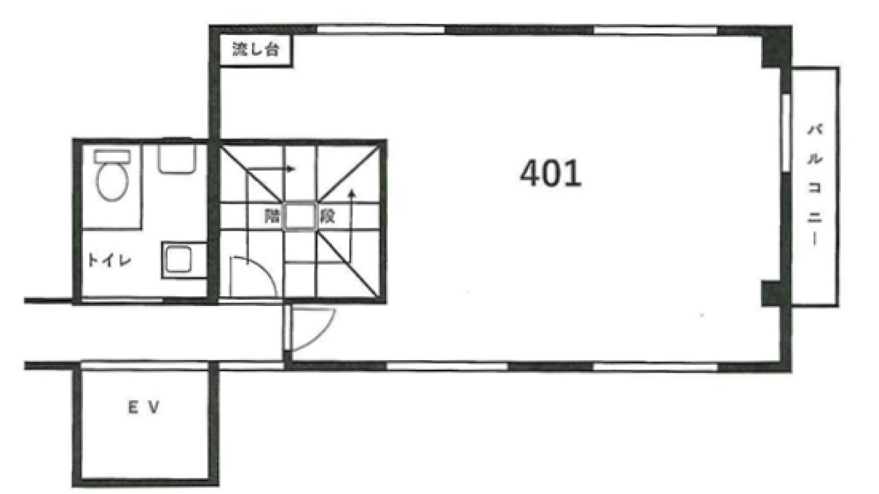
間取り図
-
近隣相場情報
新富1丁目(20坪以下)の相場
18357 円 (坪)
※ビルサク調べ
周辺施設情報
| コンビニ |
セブンイレブン/中央区入船3丁目/180m(徒歩3分) ローソン/新富町メトロピア/400m(徒歩6分) |
|---|---|
| 郵便局/銀行 |
郵便局/中央新富二/[駐車場]なし [取扱]郵便/貯金/保険/ATM/160m(徒歩2分) 三菱UFJ銀行/新富町支店/[窓口]平日 9:00~15:00 土曜日 - 日曜日 - *祝日・休日および12月31日、1月1日~3日は営業いたしません。/170m(徒歩2分) |
| 飲食店 |
躍金楼/11時30分~13時30分 17時00分~21時00分/40m(徒歩1分) 麺処 帯笑/不定休/85m(徒歩1分) |
| カフェ |
ホクオー/新富町店/[営業時間]平日 7:30~22:00 土日祝 9:00~20:00/220m(徒歩3分) ドトール/新富町店/[営業時間]平日:6:45~17:00 土曜日:8:00~17:00 日 祝:-/290m(徒歩4分) |
| コインパーキング |
タイムズ駐車場/TNS新富1丁目 [料金] [全日]通常料金 / 8:00~20:00 30分 500円 20:00~8:00 60分 100円 [最大料金] [全日]駐車後5時間 最大料金2000円 [台数]2 コインパーク/新富1丁目第2 [料金] [料金]【月~土】 ■通常料金 【00:00~24:00】20分400円 【日祝】 ■通常料金 【00:00~24:00】20分400円 [最大料金] [料金]【月~土】 ■最大料金 【18:00~8:00】600円 【日祝】 ■最大料金 【8:00~18:00】1200円 【18:00~8:00】600円 [台数][車: 2台] |
周辺地図
マキプラザは中央区新富にある地下1階、地上7階建ての賃貸事務所です。最寄駅は東京メトロ日比谷線の八丁堀駅から徒歩4分、東京メトロ日比谷線の築地駅から徒歩6分、東京メトロ有楽町線の新富町駅から徒歩3分、都営浅草線の宝町駅から徒歩6分です。1980年竣工の基準階面積が20.72坪の鉄筋コンクリート造です。設備としては、エレベーターが1基あります。空調は個別空調です。最寄駅から駅近で便利な中央区新富の賃貸オフィスです。
全フロア情報
更新日:2026年4月15日
| 階 | 面積 | 賃料 | 共益費 | 敷金 | 入居日 | お問合せ | お気に入り | |
|---|---|---|---|---|---|---|---|---|
|
1F
(1区画) |
10.84 坪 35.83 ㎡ |
※現在空室情報はございません |
※現在空室情報は 確認する |
|||||
|
2F
(202区画) |
22.81 坪 75.4 ㎡ |
※現在空室情報はございません |
※現在空室情報は 確認する |
|||||
|
3F
(303区画) |
20.72 坪 68.5 ㎡ |
※現在空室情報はございません |
※現在空室情報は 確認する |
|||||
|
3F
(305区画) |
16.9 坪 55.87 ㎡ |
※現在空室情報はございません |
※現在空室情報は 確認する |
|||||
|
4F
(401区画) |
14.49 坪 47.9 ㎡ |
135,000 円 9,317 円(坪) |
25,020 円 1,727 円(坪) |
800,000 円 |
相談 |
|
|
|
|
6F
(603区画) |
13.61 坪 45 ㎡ |
※現在空室情報はございません |
※現在空室情報は 確認する |
|||||
|
6F
(605区画) |
15.31 坪 50.61 ㎡ |
※現在空室情報はございません |
※現在空室情報は 確認する |
|||||
お問い合わせ
似た条件の物件はこちら
-
中里ビル
東京都中央区新富1-7-9
坪数:16.68 坪
坪単価:11,990 円(坪)
-
民衆堂ビル
東京都中央区湊3-9-1
坪数:14.27 坪
坪単価:14,015 円(坪)
-
湊92ビル
東京都中央区湊3-11-7
坪数:15.36 坪
坪単価:12,000 円(坪)
-
15山京ビル
東京都中央区築地2-7-12
坪数:12.96 坪
坪単価:11,000 円(坪)
-
Green Park銀座デ・プレ
東京都中央区築地2-11-12
坪数:16.72 坪
坪単価:23,636 円(坪)
-
第2明治ビル
東京都中央区入船3-2-7
坪数:15.7 坪
坪単価:8,000 円(坪)
-
ジュエル浜離宮
東京都中央区築地5-4-19
坪数:13.46 坪
坪単価:12,157 円(坪)
-
まるみビル
東京都中央区築地2-12-9
坪数:10.1 坪
坪単価:14,059 円(坪)
-
池田ビル
東京都中央区築地7-11-8
坪数:18.19 坪
坪単価:14,000 円(坪)