美濃富ビル(物件No:11789163)
美濃富ビルは港区芝公園にある地上6階建ての賃貸事務所です。最寄駅は都営三田線の御成門駅から徒歩3分、東京メトロ日比谷線の神谷町駅から徒歩5分、都営浅草線の大門駅から徒歩10分です。1985年竣工の鉄筋コンクリート造です。設備としては、エレベーターが1基あります。セキュリティは機械警備です。トイレは室外男女別です。空調は個別空調です。床仕様はタイルカーペットです。耐震設計となっている、複数路線利用可能なアクセスの良い港区芝公園の賃貸オフィスです。
-
物件情報
-
設備情報
- トイレ
- 室外男女別
- 床
- タイルカーペット
- 空調
- 個別空調
- セキュリティ
- 有
- 駐車場
- -
- 会議室
- -
- エレベーター
- 1基
- 天井高
- -
-
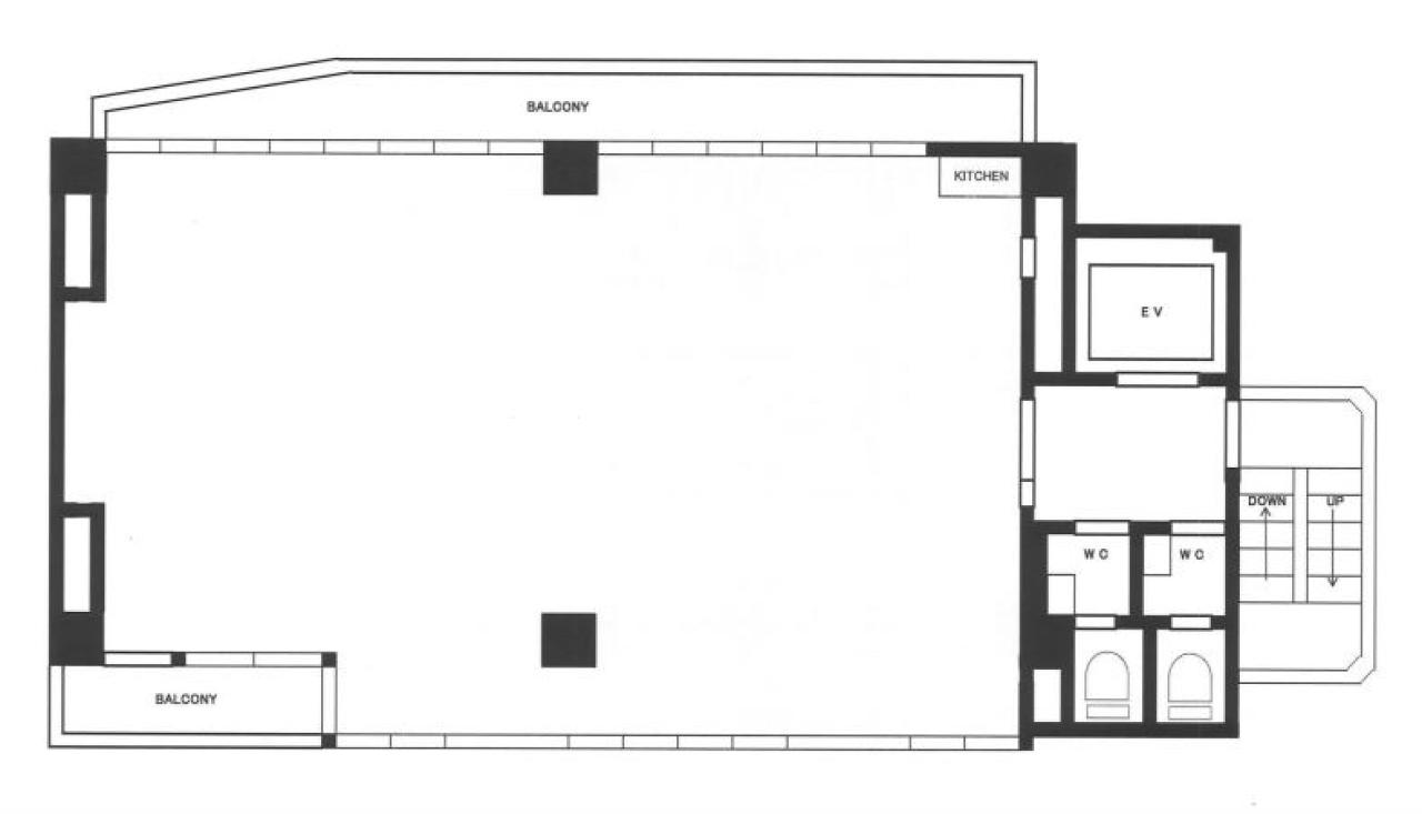
間取り図
-
近隣相場情報
芝公園3丁目(40~50坪)の相場
23000 円 (坪)
※ビルサク調べ
周辺施設情報
| コンビニ |
セブンイレブン/神谷町オランダヒルズ/550m(徒歩7分) ローソン/慈恵医大本館/400m(徒歩6分) |
|---|---|
| 郵便局/銀行 |
郵便局/機械振興会館内/平日 9:00~17:00 土曜日 お取り扱いしません 日曜日・休日 お取り扱いしません [ATM]平日 9:00-17:30 土曜 - 日曜・祝日 -/700m(徒歩10分) バンクタイム/ATM ファミリーマート 御成門店/[営業時間]全日/24H営業 ※毎週日曜日23:00~翌日7:00 および 毎月第二土曜日23:00~翌日8:00はご利用になれません。※店舗の営業時間により、ATM営業時間が変更となる場合があります/350m(徒歩5分) |
| 飲食店 |
月亭/10時00分~20時00分/290m(徒歩4分) タコリッコ 愛宕グリーンヒルズ店/11時00分~20時00分/16m(徒歩1分) |
| カフェ |
cafe&bakery MIYABI/7時00分~21時00分/550m(徒歩7分) ドトール/虎ノ門3丁目店/[営業時間]平日:6:45~19:30 土曜日:8:00~17:00 日 祝:9:00~16:00 備 考:日曜日休業・祝日営業 [休業日]日曜 [備考]総席数:40 禁煙席:29 喫煙席:11/300m(徒歩4分) |
| コインパーキング |
コインパーク/コンシェリア芝公園 [料金] 【月~金】 ■通常料金 【オ-ルタイム[24時間]】 15分/400円 【日祝】 ■通常料金 【オ-ルタイム[24時間]】 15分/400円 【土】 ■通常料金 【オ-ルタイム[24時間]】 15分/400円 [最大料金] 【月~金】 ■最大料金 【18:00~8:00】 800円 【日祝】 ■最大料金 【8:00~18:00】 1000円 【18:00~8:00】 800円 【土】 ■最大料金 【8:00~18:00】 4000円 【18:00~8:00】 800円 [台数][車: 2台] タイムズ駐車場/東京プリンスホテル第1 [料金] 通常料金 / 08:00-20:00 30分 400円 通常料金 / 20:00-08:00 60分 100円 [最大料金] [全日]当日1日最大料金3000円(24時迄) [台数]165 |
周辺地図
美濃富ビルは港区芝公園にある地上6階建ての賃貸事務所です。最寄駅は都営三田線の御成門駅から徒歩3分、東京メトロ日比谷線の神谷町駅から徒歩5分、都営浅草線の大門駅から徒歩10分です。1985年竣工の鉄筋コンクリート造です。設備としては、エレベーターが1基あります。セキュリティは機械警備です。トイレは室外男女別です。空調は個別空調です。床仕様はタイルカーペットです。耐震設計となっている、複数路線利用可能なアクセスの良い港区芝公園の賃貸オフィスです。
全フロア情報
更新日:2023年3月2日
| 階 | 面積 | 賃料 | 共益費 | 敷金 | 入居日 | お問合せ | お気に入り | |
|---|---|---|---|---|---|---|---|---|
| 2F |
20.24 坪 66.91 ㎡ |
※現在空室情報はございません |
※現在空室情報は 確認する |
|||||
| 3F |
40.80 坪 134.88 ㎡ |
※現在空室情報はございません |
※現在空室情報は 確認する |
|||||
| 5F |
40.80 坪 134.88 ㎡ |
※現在空室情報はございません |
※現在空室情報は 確認する |
|||||
お問い合わせ
似た条件の物件はこちら
-
一松ビル本館
東京都港区芝大門2-3-15
坪数:34 坪
坪単価:15,000 円(坪)
-
芝浦中村ビル
東京都港区芝浦2-3-37
坪数:31.58 坪
坪単価:10,500 円(坪)
-
シントクビル
東京都港区芝3-14-6
坪数:45.28 坪
坪単価:14,000 円(坪)
-
Bizflex浜松町
東京都港区浜松町2-12-11
坪数:44.06 坪
坪単価:36,314 円(坪)
-
第二神明ビル
東京都港区芝大門2-9-15
坪数:32 坪
坪単価:11,000 円(坪)
-
喜多ビル
東京都港区芝大門1-3-6
坪数:32.36 坪
坪単価:13,133 円(坪)
-
ARZ芝公園
東京都港区芝2-23-1
坪数:30.63 坪
坪単価:28,000 円(坪)
-
サンワード浜松町
東京都港区浜松町2-13-14
坪数:47.84 坪
坪単価:12,000 円(坪)
-
マートルコート三田
東京都港区三田3-4-6
坪数:32.46 坪
坪単価:13,863 円(坪)
-
中野スプリングビル
東京都港区芝浦4-11-17
坪数:38.8 坪
坪単価:12,000 円(坪)