第28荒井ビル(星ビル)(物件No:11381095)
第28荒井ビル(星ビル)は渋谷区恵比寿西にある地下1階、地上9階建ての賃貸事務所です。最寄駅はJR線の恵比寿駅から徒歩10分、東京メトロ日比谷線の恵比寿駅から徒歩8分です。1989年1月竣工の鉄骨鉄筋コンクリート造です。設備としては、エレベーターが2基あり、駐車場もあります。セキュリティは機械警備です。空調は個別空調です。床仕様はフリーアクセスです。複数路線利用可能なアクセスの良い渋谷区恵比寿西の賃貸オフィスです。
| 階 | 面積 | 賃料 | 共益費 | 敷金 | 入居日 | お問合せ | お気に入り |
|---|---|---|---|---|---|---|---|
| 5F |
43.78 坪 144.73 ㎡ |
相談 |
込 |
12ヶ月 |
2026/08 |
|
|
| 階 | 面積 | 賃料 | 共益費 | 敷金 | 入居日 | お問合せ | お気に入り |
|---|---|---|---|---|---|---|---|
| 5F |
43.78 坪 144.73 ㎡ |
相談 |
込 |
12ヶ月 |
2026/08 |
|
|
-
物件情報
-
設備情報
- トイレ
- -
- 床
- フリーアクセス
- 空調
- 個別空調
- セキュリティ
- 有
- 駐車場
- 有
- 会議室
- -
- エレベーター
- 2基
- 天井高
- 2550mm
-
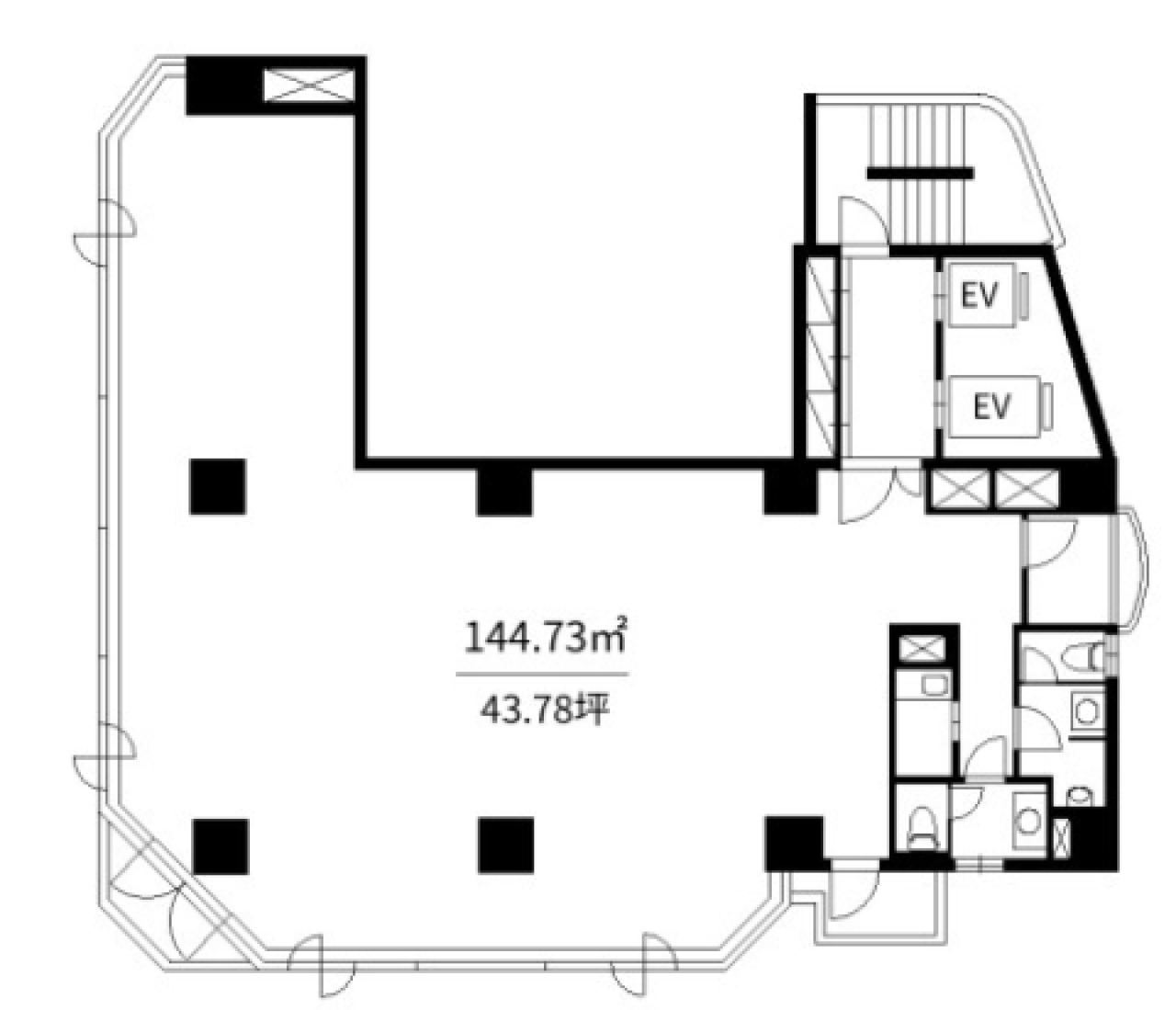
間取り図
-
近隣相場情報
恵比寿西2丁目(40~50坪)の相場
調査中
周辺施設情報
| コンビニ |
セブンイレブン/恵比寿駅北/150m(徒歩2分) ファミリーマート/恵比寿西口店/300m(徒歩4分) |
|---|---|
| 郵便局/銀行 |
三菱UFJ銀行/恵比寿支店/[営業時間] [窓口]平日 9:00~15:00 土曜日 - 日曜日 - *祝日・休日および12月31日、1月1日~3日は営業いたしません。 [ATM]平日 24時間 土曜日 24時間 日・祝日 24時間 *毎月第2土曜日の21:00~翌朝7:00はご利用いただけません/450m(徒歩6分) ローソン銀行/渋谷東三丁目共同出張所/[営業時間]24時間 [取扱]本人確認サービス対応、ATMチャージ/ATM払戻サービス、スマホATM(QR入出金)、海外発行カード/海外送金、視覚障害者対応 [備考]ご利用可能な金融機関 当店のATM管理はローソン銀行です/350m(徒歩4分) |
| 飲食店 |
GREEN BROTHERS 恵比寿店/11時00分~20時00分/550m(徒歩7分) 串亭 恵比寿本店/ |
| カフェ |
chano-ma 代官山/10時00分~20時00分/800m(徒歩11分) SNS CAFE TOKYO/8時00分~18時00分/400m(徒歩5分) |
| コインパーキング |
エコロパーク/恵比寿第14 [料金] 全日 終日 12分300円 [最大料金] 全日 4時間 最大1800円 [台数]2 三井のリパーク/恵比寿西1丁目第2 [料金] 全日 08:00~00:00 12分/400円 全日 00:00~08:00 12分/400円 [最大料金] 【全日】0:00~8:00以内 最大料金500円 [台数]4 |
周辺地図
第28荒井ビル(星ビル)は渋谷区恵比寿西にある地下1階、地上9階建ての賃貸事務所です。最寄駅はJR線の恵比寿駅から徒歩10分、東京メトロ日比谷線の恵比寿駅から徒歩8分です。1989年1月竣工の鉄骨鉄筋コンクリート造です。設備としては、エレベーターが2基あり、駐車場もあります。セキュリティは機械警備です。空調は個別空調です。床仕様はフリーアクセスです。複数路線利用可能なアクセスの良い渋谷区恵比寿西の賃貸オフィスです。
全フロア情報
更新日:2026年3月31日
| 階 | 面積 | 賃料 | 共益費 | 敷金 | 入居日 | お問合せ | お気に入り | |
|---|---|---|---|---|---|---|---|---|
| 2F |
38.87 坪 128.5 ㎡ |
※現在空室情報はございません |
※現在空室情報は 確認する |
|||||
| 3F |
43.78 坪 144.73 ㎡ |
※現在空室情報はございません |
※現在空室情報は 確認する |
|||||
| 4F |
43.78 坪 144.73 ㎡ |
※現在空室情報はございません |
※現在空室情報は 確認する |
|||||
| 5F |
43.78 坪 144.73 ㎡ |
相談 |
込 |
12ヶ月 |
2026/08 |
|
|
|
| 6F |
43.78 坪 144.73 ㎡ |
※現在空室情報はございません |
※現在空室情報は 確認する |
|||||
| 7F |
57.88 坪 191.34 ㎡ |
※現在空室情報はございません |
※現在空室情報は 確認する |
|||||
| 8-9F |
76.5 坪 252.89 ㎡ |
※現在空室情報はございません |
※現在空室情報は 確認する |
|||||
お問い合わせ
似た条件の物件はこちら
-
シルク恵比寿ビル
東京都渋谷区恵比寿1-15-9
坪数:35.67 坪
坪単価:25,000 円(坪)
-
シャトレ代官山アネックス
東京都渋谷区代官山町2-6
坪数:47.96 坪
坪単価:17,723 円(坪)
-
AHMS-1
東京都渋谷区恵比寿西1-18-4
坪数:37.95 坪
坪単価:23,004 円(坪)
-
三恵51ビル
東京都渋谷区恵比寿1-11-2
坪数:48.68 坪
坪単価:24,507 円(坪)
-
WARNERビル
東京都渋谷区恵比寿3-36-3
坪数:41.25 坪
坪単価:26,446 円(坪)
-
バルビゾン22
東京都渋谷区広尾5-8-11
坪数:39.2 坪
坪単価:17,602 円(坪)
-
広尾西川ビル
東京都渋谷区広尾5-22-3
坪数:35.16 坪
坪単価:17,830 円(坪)
-
ORIX恵比寿西ビル
東京都渋谷区恵比寿西2-8-10
坪数:33.34 坪
坪単価:28,000 円(坪)
-
代官山ファースト
東京都渋谷区恵比寿西1-34-28
坪数:51.49 坪
坪単価:39,000 円(坪)
-
グランドメゾン代官山
東京都渋谷区恵比寿南3-7-10
坪数:33.44 坪
坪単価:21,749 円(坪)