関ビル(物件No:01881164)
関ビルは、港区赤坂にある貸事務所物件です。最寄り駅は東京メトロ丸の内線、千代田線の国会議事堂前駅、東京メトロ銀座線、南北線の溜池山王駅、東京メトロ千代田線赤坂駅です。1990年竣工賃貸オフィスビルです。床はタイルカーペットとなっています。空調は個別空調でトイレは室内にあり、男女共用です。エレベーターは1基あります。複数路線利用可能な、アクセスの良い港区赤坂の貸事務所です。
-
物件情報
-
設備情報
- トイレ
- 室内男女共用
- 床
- -
- 空調
- 個別空調
- セキュリティ
- 有
- 駐車場
- 無
- 会議室
- -
- エレベーター
- 1基
- 天井高
- -
-
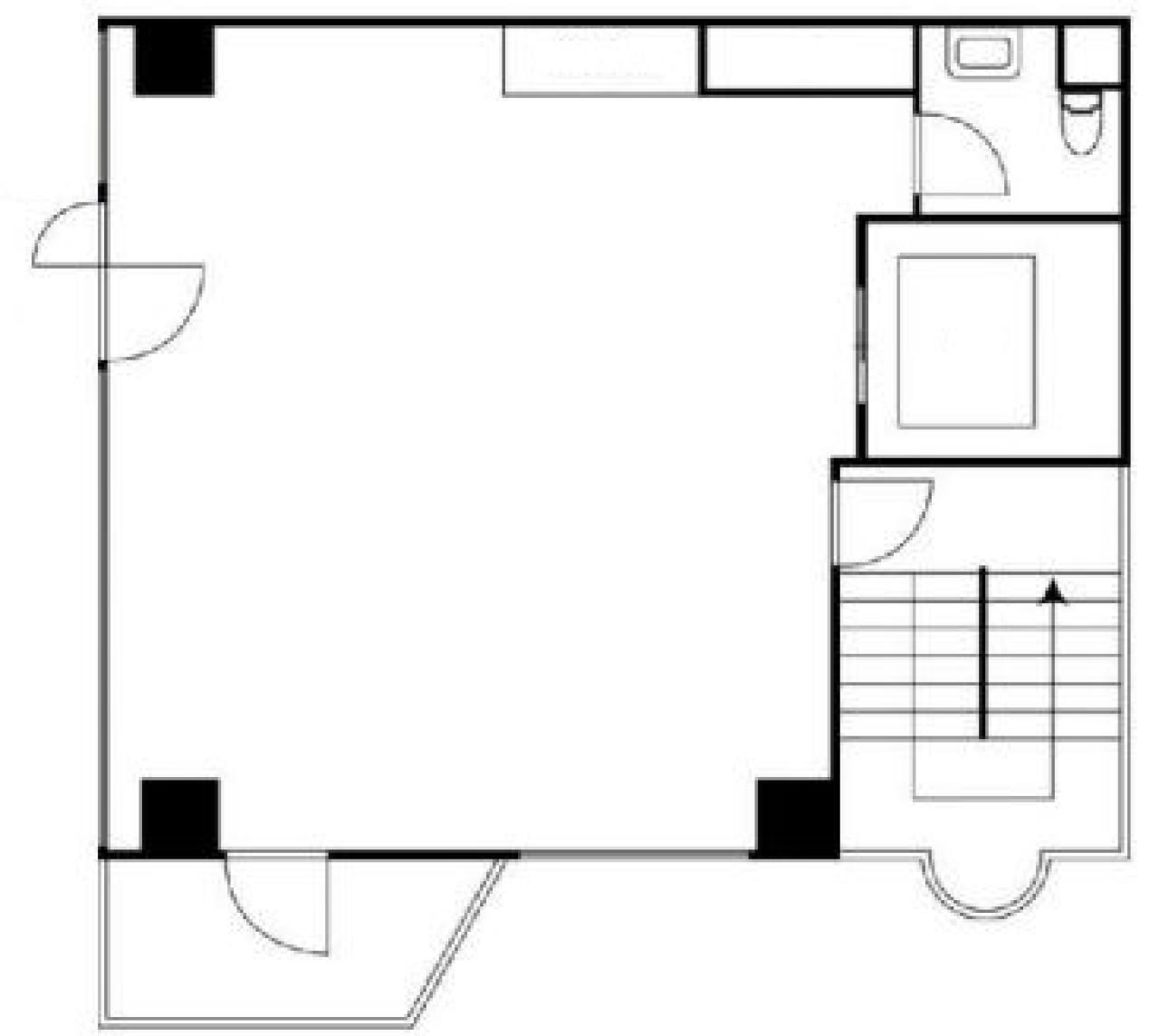
間取り図
-
近隣相場情報
赤坂2丁目(20坪以下)の相場
19238 円 (坪)
※ビルサク調べ
周辺施設情報
| コンビニ |
ファミリーマート/アークヒルズ前店/230m(徒歩3分) セブンイレブン/赤坂1丁目/220m(徒歩3分) |
|---|---|
| 郵便局/銀行 |
セブン銀行/赤坂1丁目店/[営業時間]24時間営業 [ATM台数]2/220m(徒歩3分) みずほ銀行/ATM 赤坂アークヒルズ出張所/[営業時間]ATM 平日 /Monday - Friday 8:00~23:00 土曜日/Saturday 8:00~21:00 日曜日/Sunday 8:00~21:00 祝日・振替休日 /Public Holidays 8:00~21:00 備考 *設置施設の休業日・休業時間帯は、一般のお客さま/250m(徒歩3分) |
| 飲食店 |
きんさい屋/11時30分~14時00分、18時00分~23時00分/48m(徒歩1分) まぐろ酒場 さかなや大将/11時30分~15時00分、17時30分~23時45分/130m(徒歩2分) |
| カフェ |
NewSEM/7時00分~19時00分/13m(徒歩1分) ホットケーキパーラー Fru-Full 赤坂店/11時00分~13時00分、15時00分~19時30分/400m(徒歩5分) |
| コインパーキング |
タイムズ駐車場/赤坂第27 [料金] [月~土]00:00-00:00 15分 300円 [日・祝]00:00-00:00 15分 300円 [最大料金] [月~土]08:00-18:00 最大料金3000円 18:00-08:00 最大料金500円 [日・祝]08:00-18:00 最大料金1500円 18:00-08:00 最大料金500円 [台数]5 三井のリパーク/赤坂インターシティ駐車場 [料金] 全日 08:00~22:00 30分/200円 全日 22:00~08:00 60分/100円 [最大料金] 【全日】最大料金入庫後12時間以内2900円 [台数]22 |
周辺地図
関ビルは、港区赤坂にある貸事務所物件です。最寄り駅は東京メトロ丸の内線、千代田線の国会議事堂前駅、東京メトロ銀座線、南北線の溜池山王駅、東京メトロ千代田線赤坂駅です。1990年竣工賃貸オフィスビルです。床はタイルカーペットとなっています。空調は個別空調でトイレは室内にあり、男女共用です。エレベーターは1基あります。複数路線利用可能な、アクセスの良い港区赤坂の貸事務所です。
全フロア情報
更新日:2026年4月9日
| 階 | 面積 | 賃料 | 共益費 | 敷金 | 入居日 | お問合せ | お気に入り | |
|---|---|---|---|---|---|---|---|---|
| 4F |
17.38 坪 57.45 ㎡ |
320,000 円 18,412 円(坪) |
無 |
1,920,000 円 6 ヶ月 |
2026/09/07 |
|
|
|
| 5F |
17.38 坪 57.45 ㎡ |
※現在空室情報はございません |
※現在空室情報は 確認する |
|||||
| 6F |
17.38 坪 57.45 ㎡ |
※現在空室情報はございません |
※現在空室情報は 確認する |
|||||
| 7F |
17.38 坪 57.45 ㎡ |
※現在空室情報はございません |
※現在空室情報は 確認する |
|||||
| 8F |
17.38 坪 57.45 ㎡ |
※現在空室情報はございません |
※現在空室情報は 確認する |
|||||
| 9F |
17.38 坪 57.45 ㎡ |
※現在空室情報はございません |
※現在空室情報は 確認する |
|||||
お問い合わせ
似た条件の物件はこちら
-
第4文成ビル
東京都港区赤坂7-10-9
坪数:17 坪
坪単価:20,000 円(坪)
-
赤坂余湖ビル
東京都港区赤坂4-8-6
坪数:18.48 坪
坪単価:15,000 円(坪)
-
赤坂ASビル
東京都港区赤坂7-11-10
坪数:20.8 坪
坪単価:16,000 円(坪)
-
赤坂鈴木ビル
東京都港区赤坂3-19-13
坪数:21.56 坪
坪単価:24,119 円(坪)
-
第2中田ビル
東京都港区赤坂1-3-15
坪数:21 坪
坪単価:15,952 円(坪)
-
内田ビル
東京都港区赤坂2-19-5
坪数:20.57 坪
坪単価:8,653 円(坪)
-
溜池山王葵ビル
東京都港区赤坂2-8-11
坪数:16.42 坪
坪単価:18,000 円(坪)
-
アークヒルズエグゼクティブタワー
東京都港区赤坂1-14-5
坪数:15.6 坪
坪単価:21,562 円(坪)
-
松田ビル
東京都港区赤坂2-9-2
坪数:15.8 坪
坪単価:15,823 円(坪)