KRKビル(物件No:93971389)
KRKビルは港区南青山にある地上5階建ての賃貸オフィスです。最寄駅は東京メトロ銀座線、千代田線の表参道駅から徒歩4分です。2025年竣工の鉄骨鉄筋コンクリート造です。複数路線利用可能でアクセスの良い港区南青山の賃貸オフィスです。
| 階 | 面積 | 賃料 | 共益費 | 敷金 | 入居日 | お問合せ | お気に入り |
|---|---|---|---|---|---|---|---|
| 3F |
17.08 坪 56.46 ㎡ |
600,000 円 35,129 円(坪) |
無 |
4,800,000 円 8 ヶ月 |
|
|
| 階 | 面積 | 賃料 | 共益費 | 敷金 | 入居日 | お問合せ | お気に入り |
|---|---|---|---|---|---|---|---|
| 3F |
17.08 坪 56.46 ㎡ |
600,000 円 35,129 円(坪) |
無 |
4,800,000 円 8 ヶ月 |
|
|
-
物件情報
-
設備情報
- トイレ
- -
- 床
- -
- 空調
- -
- セキュリティ
- -
- 駐車場
- 無
- 会議室
- -
- エレベーター
- -
- 天井高
- -
-
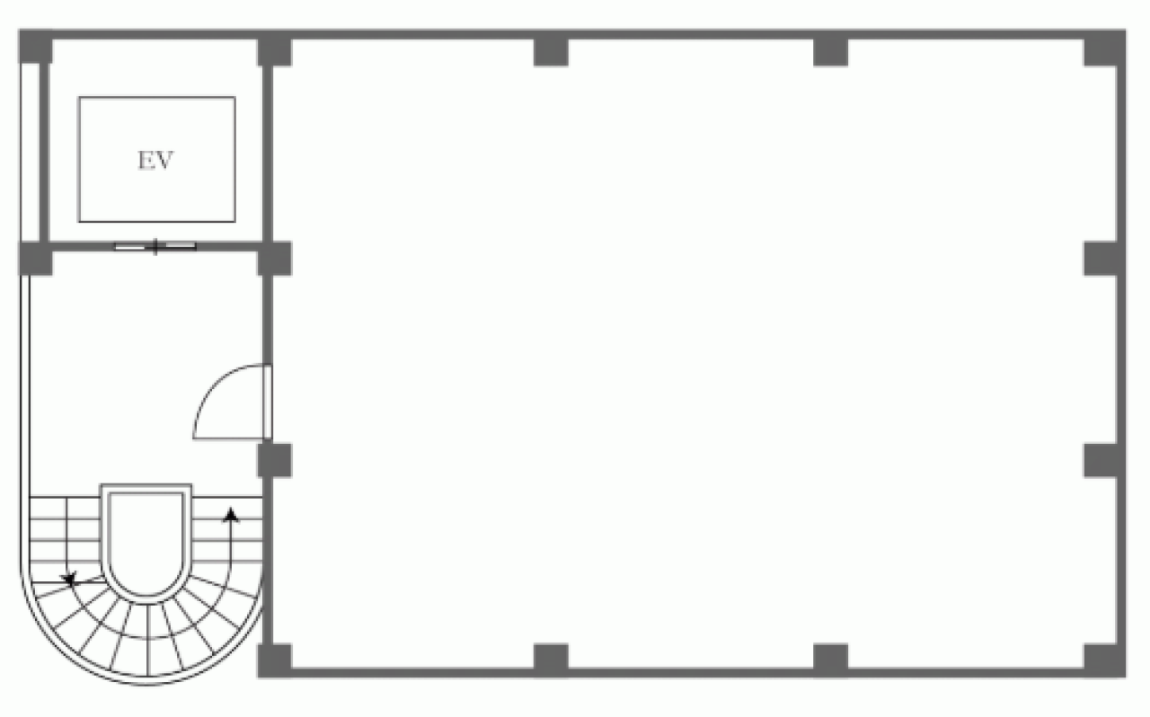
間取り図
-
近隣相場情報
南青山3丁目(20坪以下)の相場
29136 円 (坪)
※ビルサク調べ
周辺地図
KRKビルは港区南青山にある地上5階建ての賃貸オフィスです。最寄駅は東京メトロ銀座線、千代田線の表参道駅から徒歩4分です。2025年竣工の鉄骨鉄筋コンクリート造です。複数路線利用可能でアクセスの良い港区南青山の賃貸オフィスです。
全フロア情報
更新日:2026年3月26日
| 階 | 面積 | 賃料 | 共益費 | 敷金 | 入居日 | お問合せ | お気に入り |
|---|---|---|---|---|---|---|---|
| 3F |
17.08 坪 56.46 ㎡ |
600,000 円 35,129 円(坪) |
無 |
4,800,000 円 8 ヶ月 |
|
|
|
| 4F |
17.08 坪 56.46 ㎡ |
600,000 円 35,129 円(坪) |
無 |
4,800,000 円 8 ヶ月 |
|
|
お問い合わせ
似た条件の物件はこちら
-
メゾン青山
東京都港区北青山2-7-26
坪数:18.75 坪
坪単価:20,267 円(坪)
-
たつむら青山マンション(青南吉川興産ビル)
東京都港区南青山5-4-35
坪数:21.29 坪
坪単価:21,982 円(坪)
-
KSビル
東京都港区南青山6-2-9
坪数:20.61 坪
坪単価:23,011 円(坪)
-
青山アレー
東京都港区南青山6-4-6
坪数:16.2 坪
坪単価:26,543 円(坪)
-
セントラル第二青山
東京都港区南青山4-1-1
坪数:20.09 坪
坪単価:15,630 円(坪)
-
南青山ユニハイツ
東京都港区南青山6-12-3
坪数:18.31 坪
坪単価:18,569 円(坪)
-
ティアック青山
東京都港区北青山3-10-21
坪数:16.52 坪
坪単価:22,397 円(坪)
-
リーラ乃木坂
東京都港区南青山1-15-18
坪数:17.2 坪
坪単価:18,000 円(坪)
-
クレアトゥール南青山
東京都港区南青山3-8-7
坪数:13.59 坪
坪単価:16,924 円(坪)
-
南青山セピアコート
東京都港区南青山6-8-3
坪数:18.09 坪
坪単価:21,006 円(坪)