スタービル(物件No:93970877)
スタービルは品川区北品川にある地下1階、地上4階建ての賃貸事務所です。最寄駅は京急本線北品川駅から徒歩8分、JR線品川駅から徒歩9分です。1991年竣工の鉄筋コンクリート造です。トイレは男女別で、空調は個別空調です。床仕様はフリーアクセスです。セキュリティも備わっています。複数路線利用可能で、アクセスの良い品川区北品川の賃貸オフィスです。
| 階 | 面積 | 賃料 | 共益費 | 敷金 | 入居日 | お問合せ | お気に入り |
|---|---|---|---|---|---|---|---|
| B1-4F |
154.9 坪 512.07 ㎡ |
相談 |
込 |
10ヶ月 |
2026/05 |
|
|
| 階 | 面積 | 賃料 | 共益費 | 敷金 | 入居日 | お問合せ | お気に入り |
|---|---|---|---|---|---|---|---|
| B1-4F |
154.9 坪 512.07 ㎡ |
相談 |
込 |
10ヶ月 |
2026/05 |
|
|
-
物件情報
-
設備情報
- トイレ
- 男女別
- 床
- フリーアクセス
- 空調
- 個別空調
- セキュリティ
- 有
- 駐車場
- -
- 会議室
- -
- エレベーター
- -
- 天井高
- -
-
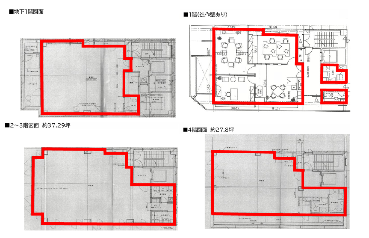
間取り図
-
近隣相場情報
北品川1丁目(100坪以上)の相場
24159 円 (坪)
※ビルサク調べ
周辺地図
スタービルは品川区北品川にある地下1階、地上4階建ての賃貸事務所です。最寄駅は京急本線北品川駅から徒歩8分、JR線品川駅から徒歩9分です。1991年竣工の鉄筋コンクリート造です。トイレは男女別で、空調は個別空調です。床仕様はフリーアクセスです。セキュリティも備わっています。複数路線利用可能で、アクセスの良い品川区北品川の賃貸オフィスです。
全フロア情報
更新日:2026年1月8日
| 階 | 面積 | 賃料 | 共益費 | 敷金 | 入居日 | お問合せ | お気に入り |
|---|---|---|---|---|---|---|---|
| B1-4F |
154.9 坪 512.07 ㎡ |
相談 |
込 |
10ヶ月 |
2026/05 |
|
|
お問い合わせ
似た条件の物件はこちら
-
リバーサイド品川港南ビル
東京都品川区東品川1-2-5
坪数:139.6 坪
坪単価:14,000 円(坪)
-
大井町センタービル
東京都品川区大井1-24-5
坪数:154.49 坪
坪単価:13,600 円(坪)
-
JSCビル
東京都品川区南大井5-26-12
坪数:145.66 坪
坪単価:8,000 円(坪)
-
イーストスクエア大森
東京都品川区南大井6-20-14
坪数:174.29 坪
坪単価:10,767 円(坪)
-
第3小池ビル
東京都品川区北品川1-1-11
坪数:139.76 坪
坪単価:10,017 円(坪)
-
Tennozu Bay Tower
東京都品川区東品川2-3-12
坪数:146.99 坪
坪単価:15,400 円(坪)
-
大森ベルポートB館
東京都品川区南大井6-26-2
坪数:176.83 坪
坪単価:17,000 円(坪)
-
シティハイツ大井町
東京都品川区大井1-25-3
坪数:162.21 坪
坪単価:12,946 円(坪)