cozy千駄ヶ谷(物件No:93970684)
cozy千駄ヶ谷は渋谷区千駄ヶ谷にある地上2階建ての賃貸オフィスです。最寄駅はJR中央・総武線千駄ケ谷駅から徒歩9分、都営大江戸線国立競技場駅から徒歩7分、東京メトロ副都心線北参道駅から徒歩9分です。2026年竣工の木造です。
| 階 | 面積 | 賃料 | 共益費 | 敷金 | 入居日 | お問合せ | お気に入り |
|---|---|---|---|---|---|---|---|
| 1-2F |
35.85 坪 118.52 ㎡ |
720,000 円 20,084 円(坪) |
50,000 円 1,395 円(坪) |
4,320,000 円 6 ヶ月 |
2026/02 |
|
|
| 階 | 面積 | 賃料 | 共益費 | 敷金 | 入居日 | お問合せ | お気に入り |
|---|---|---|---|---|---|---|---|
| 1-2F |
35.85 坪 118.52 ㎡ |
720,000 円 20,084 円(坪) |
50,000 円 1,395 円(坪) |
4,320,000 円 6 ヶ月 |
2026/02 |
|
|
-
物件情報
-
設備情報
- トイレ
- -
- 床
- フリーアクセス
- 空調
- 個別空調
- セキュリティ
- -
- 駐車場
- -
- 会議室
- -
- エレベーター
- -
- 天井高
- -
-
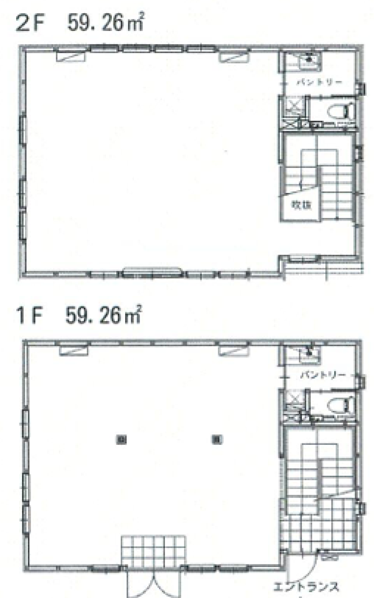
間取り図
-
近隣相場情報
千駄ヶ谷2丁目(30~40坪)の相場
13396 円 (坪)
※ビルサク調べ
周辺地図
cozy千駄ヶ谷は渋谷区千駄ヶ谷にある地上2階建ての賃貸オフィスです。最寄駅はJR中央・総武線千駄ケ谷駅から徒歩9分、都営大江戸線国立競技場駅から徒歩7分、東京メトロ副都心線北参道駅から徒歩9分です。2026年竣工の木造です。
全フロア情報
更新日:2025年12月12日
| 階 | 面積 | 賃料 | 共益費 | 敷金 | 入居日 | お問合せ | お気に入り |
|---|---|---|---|---|---|---|---|
| 1-2F |
35.85 坪 118.52 ㎡ |
720,000 円 20,084 円(坪) |
50,000 円 1,395 円(坪) |
4,320,000 円 6 ヶ月 |
2026/02 |
|
|
お問い合わせ
似た条件の物件はこちら
-
呉羽小野木ビル
東京都渋谷区代々木2-20-12
坪数:38.00 坪
坪単価:12,000 円(坪)
-
矢後ビル
東京都渋谷区千駄ヶ谷1-5-1
坪数:39.93 坪
坪単価:15,026 円(坪)
-
メゾン・ドゥ・ボナール
東京都渋谷区千駄ヶ谷4-22-4
坪数:28.89 坪
坪単価:12,461 円(坪)
-
代々木1丁目1棟貸
東京都渋谷区代々木1-44-4
坪数:42.56 坪
坪単価:18,797 円(坪)
-
トーシンミレニアム
東京都渋谷区代々木4-32-1
坪数:43.30 坪
坪単価:15,000 円(坪)
-
中島第一ビル
東京都渋谷区代々木2-6-8
坪数:42.38 坪
坪単価:23,000 円(坪)
-
新宿カメヤビル
東京都渋谷区代々木3-26-2
坪数:43.23 坪
坪単価:13,000 円(坪)
-
甲田ビル
東京都渋谷区代々木2-16-2
坪数:43.32 坪
坪単価:20,000 円(坪)
-
ピアザコンドー
東京都渋谷区千駄ヶ谷2-8-16
坪数:44.28 坪
坪単価:16,486 円(坪)
-
アリスバニービル
東京都渋谷区千駄ヶ谷3-53-3
坪数:29.74 坪
坪単価:20,000 円(坪)