いろいろ聞いてみる

桜新町の賃貸オフィス

五光ビル(物件No:93970437)

五光ビルは世田谷区桜新町にある賃貸事務所です。最寄駅は東急田園都市線桜新町駅徒歩1分です。1986年竣工の鉄骨造です。桜新町駅至近の賃貸オフィスです。

面積 賃料 共益費 敷金 入居日 お問合せ お気に入り
2F

21.3 坪

70.41 ㎡

351,450 円

16,500 円(坪)

3,514,500 円

10 ヶ月

即日 お問い合わせ お気に入り
  • 五光ビル
面積 賃料 共益費 敷金 入居日 お問合せ お気に入り
2F

21.3 坪

70.41 ㎡

351,450 円

16,500 円(坪)

3,514,500 円

10 ヶ月

即日 お問い合わせ お気に入り
  • 物件情報

    住所
    東京都世田谷区桜新町2-10-7
    最寄り駅
    東急田園都市線 桜新町駅 徒歩1分
    竣工
    1986年
    耐震
    新耐震基準
    規模・構造
    鉄骨造
  • 設備情報

    トイレ
    -
    -
    空調
    -
    セキュリティ
    -
    駐車場
    -
    会議室
    -
    エレベーター
    -
    天井高
    -
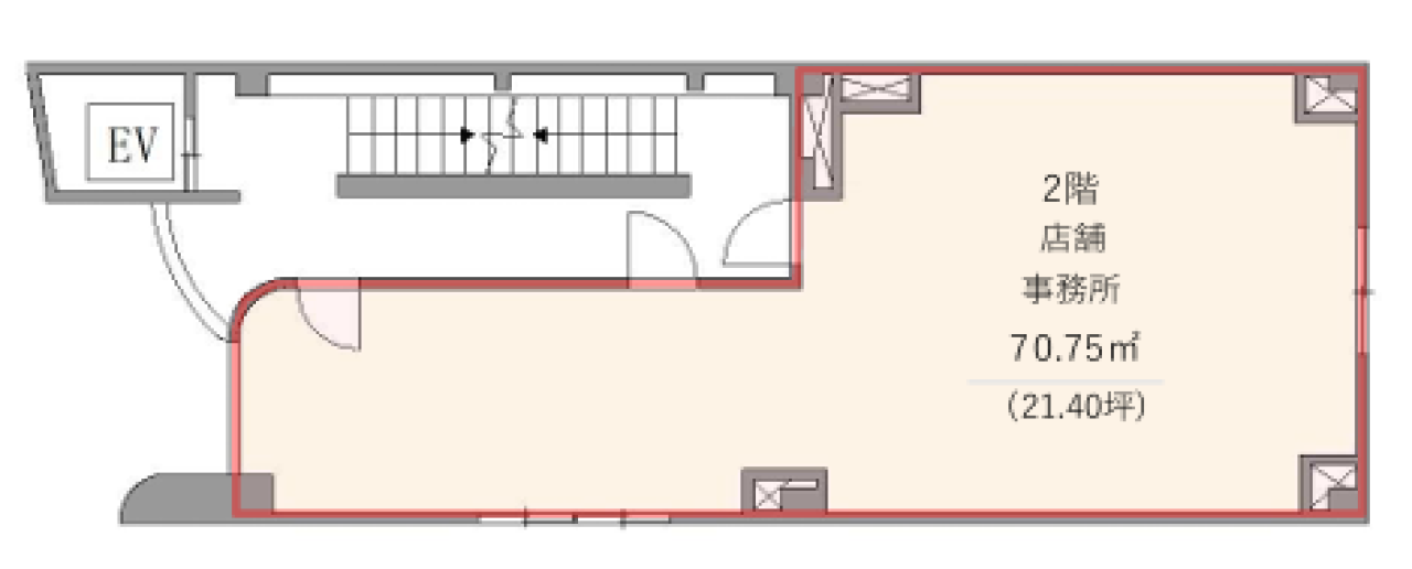
  • 間取り図

    間取り図

  • 近隣相場情報

    桜新町2丁目(20~30坪)の相場

    調査中

周辺施設情報

コンビニ

ローソン/慈恵医大本館/450m(徒歩6分)

デイリーヤマザキ/御成門タワー店/500m(徒歩7分)

郵便局/銀行

ローソン銀行/新橋五丁目共同出張所/[営業時間]24時間 [取扱]海外発行カード対応、視覚障害者対応 [備考]ご利用可能な金融機関 当店のATM管理はローソン銀行です/52m(徒歩1分)

イーネット/miniピアゴ東新橋2丁目/[営業時間]7:00~24:00/300m(徒歩4分)

飲食店

串焼 しばてん 新橋店/15時30分~23時30分/400m(徒歩5分)

白木屋 新橋烏森口駅前店/17時00分~5時00分/400m(徒歩6分)

カフェ

スターバックス/TSUTAYA 新橋店/[営業時間]7:00~23:00 [休業日]不定休 [備考]無線LAN:Softbank/350m(徒歩4分)

エクセルシオール/カフェ バリスタ 東京汐留ビルディング店/[営業時間]平日:7:00~21:00 土曜日:8:00~21:00 日 祝:8:00~21:00 [休業日]なし [備考]総席数:78 禁煙席:56 喫煙席:22/750m(徒歩10分)

コインパーキング

タイムズ駐車場/TNS東新橋2丁目第3

[料金]

[全日]08:00-20:00 15分 300円

[全日]20:00-08:00 60分 100円

[最大料金]

[全日]08:00-20:00 最大料金3500円

[全日]20:00-08:00 最大料金500円

[台数]32

タイムズ駐車場/新橋5丁目第7

[料金]

[月~土]通常料金 / 0:00~0:00 15分 300円

[日・祝]通常料金 / 0:00~0:00 15分 300円

[最大料金]

[月~土]8:00~19:00 最大料金4500円 19:00~8:00 最大料金500円

[日・祝]8:00~19:00 最大料金1200円 19:00~8:00 最大料金500円

[台数]9

周辺地図

五光ビルは世田谷区桜新町にある賃貸事務所です。最寄駅は東急田園都市線桜新町駅徒歩1分です。1986年竣工の鉄骨造です。桜新町駅至近の賃貸オフィスです。

全フロア情報

更新日:2026年3月4日

面積 賃料 共益費 敷金 入居日 お問合せ お気に入り
2F

21.3 坪

70.41 ㎡

351,450 円

16,500 円(坪)

3,514,500 円

10 ヶ月

即日 お問い合わせ お気に入り

お問い合わせ

必須
必須
必須
必須
必須

お問い合わせ

物件に関してのお問い合わせ

「失敗しないオフィス移転サポート」物件探しから移転までスムーズで担当者様がとにかく楽になるサービスです。

050-7587-0049平日 9:00~18:00

メールでお問い合わせ

フリーワード検索