宇田川ビル(物件No:93240167)
宇田川ビルは、渋谷区宇田川町にある地下1階、地上3階建ての貸店舗事務所です。最寄駅はJR線の渋谷駅から徒歩5分です。2019年3月竣工の鉄骨鉄筋コンクリート造です。耐震設計となっている、コンビニや飲食店などの周辺施設が充実した渋谷区宇田川町の貸店舗事務所です。
-
物件情報
- 住所
- 東京都渋谷区宇田川町4-10
- 最寄り駅
-
JR線
渋谷駅
徒歩5分
- 竣工
- 2007年
- 耐震
- 新耐震基準
- 規模・構造
- B1F - 3F 鉄骨鉄筋コンクリート造
-
設備情報
- トイレ
- -
- 床
- -
- 空調
- -
- セキュリティ
- -
- 駐車場
- -
- 会議室
- -
- エレベーター
- -
- 天井高
- -
-
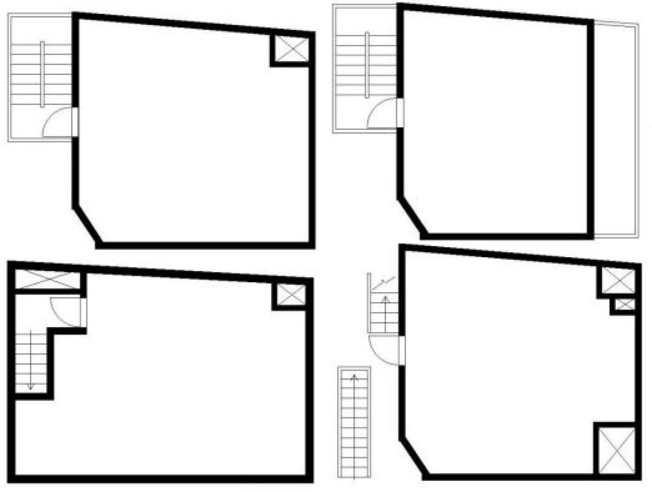
間取り図
-
近隣相場情報
宇田川町4丁目(50~100坪)の相場
28000 円 (坪)
※ビルサク調べ
周辺施設情報
| コンビニ |
セブンイレブン/渋谷区役所/260m(徒歩3分) ファミリーマート/神南一丁目店/300m(徒歩4分) |
|---|---|
| 郵便局/銀行 |
セブン銀行/渋谷区役所店/[営業時間]24時間営業ではありません [ATM台数]1/260m(徒歩3分) みずほ銀行/ATM まいばすけっと渋谷神山町店出張所/[営業時間]ATM 平日 /Monday - Friday 8:00~23:00 土曜日/Saturday 8:00~22:00 日曜日/Sunday 8:00~23:00 祝日・振替休日 /Public Holidays 曜日に準ずる 備考 通帳繰越機 設置なし/400m(徒歩5分) |
| 飲食店 |
クレオパトラケバブ/16時00分~22時00分/32m(徒歩1分) ゴールドラッシュ 渋谷本店/11時30分~22時50分/21m(徒歩1分) |
| カフェ |
ロイヤルガーデンカフェ/渋谷/[営業時間]Open Everyday 11:00 - 23:00/120m(徒歩2分) モボ・モガ/11時45分~23時00分/10m(徒歩1分) |
| コインパーキング |
三井のリパーク/神南第4 [料金] 全日 08:00~20:00 25分/400円 全日 20:00~08:00 120分/100円 [最大料金] 【全日】最大料金入庫後6時間以内2000円 [台数]23 タイムズ駐車場/渋谷東武ホテル [料金] [全日]00:00-00:00 10分 300円 [最大料金] [全日]09:00-19:00 最大料金4200円 [全日]19:00-09:00 最大料金1500円 [台数]5 |
周辺地図
宇田川ビルは、渋谷区宇田川町にある地下1階、地上3階建ての貸店舗事務所です。最寄駅はJR線の渋谷駅から徒歩5分です。2019年3月竣工の鉄骨鉄筋コンクリート造です。耐震設計となっている、コンビニや飲食店などの周辺施設が充実した渋谷区宇田川町の貸店舗事務所です。
全フロア情報
更新日:2025年12月11日
| 階 | 面積 | 賃料 | 共益費 | 敷金 | 入居日 | お問合せ | お気に入り | |
|---|---|---|---|---|---|---|---|---|
| B1F |
16.98 坪 56.13 ㎡ |
※現在空室情報はございません |
※現在空室情報は 確認する |
|||||
| B1-3F |
59.45 坪 196.52 ㎡ |
※現在空室情報はございません |
※現在空室情報は 確認する |
|||||
| 1F |
14.7 坪 48.6 ㎡ |
※現在空室情報はございません |
※現在空室情報は 確認する |
|||||
| 2F |
15.5 坪 51.24 ㎡ |
※現在空室情報はございません |
※現在空室情報は 確認する |
|||||
| 3F |
12.27 坪 40.55 ㎡ |
※現在空室情報はございません |
※現在空室情報は 確認する |
|||||
お問い合わせ
似た条件の物件はこちら
-
第一暁ビルディング
東京都渋谷区道玄坂1-19-9
坪数:58.6 坪
坪単価:25,341 円(坪)
-
冨貴ビル
東京都渋谷区神宮前6-9-1
坪数:47.25 坪
坪単価:27,937 円(坪)
-
倉島渋谷ビル
東京都渋谷区渋谷2-3-8
坪数:49.26 坪
坪単価:18,000 円(坪)
-
コエル渋谷公園通り
東京都渋谷区神南1-20-8
坪数:50.75 坪
坪単価:43,000 円(坪)
-
ステージ神宮前Ⅱ
東京都渋谷区神宮前2-12-2
坪数:53.34 坪
坪単価:20,000 円(坪)
-
小林ビルディング
東京都渋谷区渋谷1-14-11
坪数:62.1 坪
坪単価:28,986 円(坪)
-
NESビル
東京都渋谷区桜丘町22-14
坪数:63.1 坪
坪単価:25,000 円(坪)
-
TMTビル
東京都渋谷区渋谷4-2-22
坪数:48.9 坪
坪単価:20,450 円(坪)
-
渋谷STビル
東京都渋谷区南平台町3-13
坪数:58.42 坪
坪単価:21,000 円(坪)
-
クレインズパークビル
東京都渋谷区神宮前6-18-1
坪数:66.95 坪
坪単価:35,101 円(坪)