ウエストハウス恵比寿(物件No:93048600)
ウエストハウス恵比寿は、渋谷区恵比寿西にある地上4階建ての賃貸事務所です。最寄駅はJR線の恵比寿駅から徒歩5分、東急東横線の代官山駅から徒歩6分です。1983年7月竣工の鉄骨造です。設備としては、空調は個別空調です。耐震設計となっている、コンビニや飲食店などの周辺施設が充実した渋谷区恵比寿西の賃貸オフィスです。
-
物件情報
-
設備情報
- トイレ
- -
- 床
- -
- 空調
- 個別空調
- セキュリティ
- -
- 駐車場
- -
- 会議室
- -
- エレベーター
- -
- 天井高
- -
-
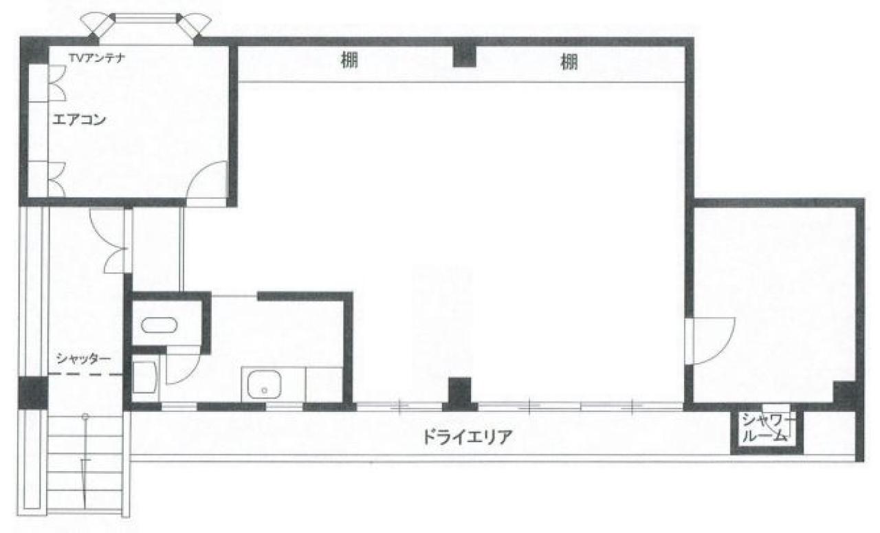
間取り図
-
近隣相場情報
恵比寿西2丁目(20~30坪)の相場
25417 円 (坪)
※ビルサク調べ
周辺施設情報
| コンビニ |
ローソン/渋谷東三丁目/270m(徒歩3分) セブンイレブン/渋谷恵比寿南3丁目/550m(徒歩8分) |
|---|---|
| 郵便局/銀行 |
西武信用金庫/恵比寿支店/400m(徒歩5分) イーネット/ファミリーマート恵比寿南一丁目/[営業時間]0:00~24:00/550m(徒歩7分) |
| 飲食店 |
くいもの屋わん 恵比寿店/17時00分~22時30分/260m(徒歩3分) 居酒屋えびす村/17時00分~22時30分/300m(徒歩4分) |
| カフェ |
Room 51 cafe and gallery/10時00分~0時00分/350m(徒歩5分) COFFEE HERE!/11時00分~18時30分/150m(徒歩2分) |
| コインパーキング |
コインパーク/恵比寿西第2 [料金] 【全日】■通常料金【オールタイム [24時間]】12分/300円 [最大料金] 【全日】■最大料金【21:00~8:00】700円 [台数] [車: 1台] タイムズ/恵比寿西第3 [料金] [月~土]通常料金 / 0:00~0:00 12分 220円 [日・祝]通常料金 / 0:00~0:00 12分 220円 [最大料金] [月~土]8:00~19:00 最大料金3080円 19:00~8:00 最大料金770円 [日・祝]8:00~19:00 最大料金1980円 19:00~8:00 最大料金770円 [台数]4 |
周辺地図
ウエストハウス恵比寿は、渋谷区恵比寿西にある地上4階建ての賃貸事務所です。最寄駅はJR線の恵比寿駅から徒歩5分、東急東横線の代官山駅から徒歩6分です。1983年7月竣工の鉄骨造です。設備としては、空調は個別空調です。耐震設計となっている、コンビニや飲食店などの周辺施設が充実した渋谷区恵比寿西の賃貸オフィスです。
全フロア情報
更新日:2025年12月11日
| 階 | 面積 | 賃料 | 共益費 | 敷金 | 入居日 | お問合せ | お気に入り | |
|---|---|---|---|---|---|---|---|---|
| MB1F |
22.27 坪 73.62 ㎡ |
※現在空室情報はございません |
※現在空室情報は 確認する |
|||||
お問い合わせ
似た条件の物件はこちら
-
プラザ恵比寿南
東京都渋谷区恵比寿南2-8-3
坪数:21.02 坪
坪単価:26,641 円(坪)
-
コマンドプロンプト広尾
東京都渋谷区広尾5-17-9
坪数:23.65 坪
坪単価:36,490 円(坪)
-
ウインズビル
東京都渋谷区恵比寿西2-7-2
坪数:19.81 坪
坪単価:18,021 円(坪)
-
プロフィットマート代官山
東京都渋谷区恵比寿西2-6-2
坪数:18.73 坪
坪単価:16,000 円(坪)
-
デリス第2ビル
東京都渋谷区恵比寿1-16-29
坪数:20.01 坪
坪単価:19,490 円(坪)
-
代官山コーポラス
東京都渋谷区猿楽町12-1
坪数:20.89 坪
坪単価:15,231 円(坪)
-
ゼネラルビル恵比寿西
東京都渋谷区恵比寿西1-16-3
坪数:26.31 坪
坪単価:21,665 円(坪)
-
レジデンス広尾
東京都渋谷区広尾3-5-27
坪数:22.54 坪
坪単価:16,327 円(坪)
-
恵比寿ネオナートアネックス
東京都渋谷区恵比寿4-1-22
坪数:23.11 坪
坪単価:25,000 円(坪)
-
第二広尾フラワーハイホーム
東京都渋谷区広尾5-25-11
坪数:26.6 坪
坪単価:10,150 円(坪)