いろいろ聞いてみる

海岸通の賃貸オフィス

東信ビル(物件No:92997997)

東信ビルは、神奈川県横浜市中区海岸通にある地下1階、地上10階建ての貸店舗物件/賃貸事務所です。最寄駅はみなとみらい線の馬車道駅から徒歩2分、横浜市ブルーラインの関内駅から徒歩7分、JR京浜東北線の関内駅から徒歩8分です。1972年10月竣工の鉄骨鉄筋コンクリート造です。設備としては、エレベーターが1基あります。セキュリティは機械警備です。トイレは室内男女別です。空調は個別空調です。最寄駅から近くて便利な神奈川県横浜市中区海岸通の貸店舗物件/賃貸オフィスです。

  • 東信ビル
  • 東信ビル
  • 東信ビル
  • 東信ビル
面積 賃料 共益費 敷金 入居日 お問合せ お気に入り
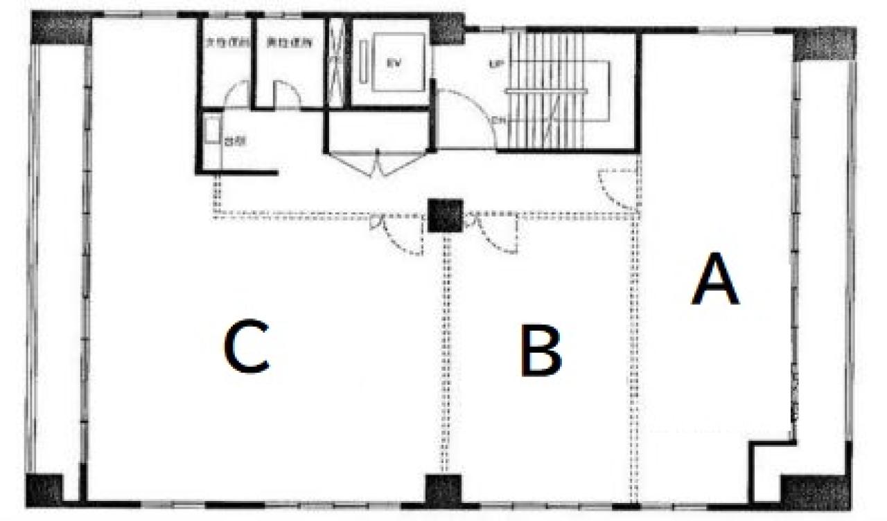
9F

(C区画)

29.44 坪

97.32 ㎡

※現在空室情報はございません

※現在空室情報は
ございません

最新情報を
確認する

周辺地図

東信ビルは、神奈川県横浜市中区海岸通にある地下1階、地上10階建ての貸店舗物件/賃貸事務所です。最寄駅はみなとみらい線の馬車道駅から徒歩2分、横浜市ブルーラインの関内駅から徒歩7分、JR京浜東北線の関内駅から徒歩8分です。1972年10月竣工の鉄骨鉄筋コンクリート造です。設備としては、エレベーターが1基あります。セキュリティは機械警備です。トイレは室内男女別です。空調は個別空調です。最寄駅から近くて便利な神奈川県横浜市中区海岸通の貸店舗物件/賃貸オフィスです。

全フロア情報

更新日:2024年10月9日

面積 賃料 共益費 敷金 入居日 お問合せ お気に入り
1F

31.15 坪

102.98 ㎡

※現在空室情報はございません

※現在空室情報は
ございません

最新情報を
確認する
1F

(1区画)

51 坪

168.59 ㎡

※現在空室情報はございません

※現在空室情報は
ございません

最新情報を
確認する
2F

(A区画)

12 坪

39.67 ㎡

※現在空室情報はございません

※現在空室情報は
ございません

最新情報を
確認する
2F

(B区画)

11.05 坪

36.53 ㎡

※現在空室情報はございません

※現在空室情報は
ございません

最新情報を
確認する
2F

(C区画)

12.22 坪

40.4 ㎡

※現在空室情報はございません

※現在空室情報は
ございません

最新情報を
確認する
4F

(A区画)

31.98 坪

105.72 ㎡

※現在空室情報はございません

※現在空室情報は
ございません

最新情報を
確認する
4F

(B区画)

31.15 坪

102.98 ㎡

※現在空室情報はございません

※現在空室情報は
ございません

最新情報を
確認する
5F

(A区画)

20.42 坪

67.5 ㎡

※現在空室情報はございません

※現在空室情報は
ございません

最新情報を
確認する
6F

(A区画)

20.42 坪

67.5 ㎡

※現在空室情報はございません

※現在空室情報は
ございません

最新情報を
確認する
7F

(D区画)

19.54 坪

64.59 ㎡

※現在空室情報はございません

※現在空室情報は
ございません

最新情報を
確認する
9F

(C区画)

29.44 坪

97.32 ㎡

※現在空室情報はございません

※現在空室情報は
ございません

最新情報を
確認する

お問い合わせ

必須
必須
必須
必須
必須

お問い合わせ

物件に関してのお問い合わせ

「失敗しないオフィス移転サポート」物件探しから移転までスムーズで担当者様がとにかく楽になるサービスです。

050-7587-0049平日 9:00~18:00

メールでお問い合わせ

フリーワード検索