東京プラスチック会館(物件No:92946297)
東京プラスチック会館は、中央区東日本橋にある貸事務所物件です。最寄り駅は、都営浅草線の東日本橋駅、人形町駅、JR総武線の馬喰町駅、都営新宿線の馬喰横山駅、浜町駅、東京メトロ日比谷線の人形町駅です。1989年竣工で、基準階が20.3坪の賃貸オフィスビルです。床はOAフロアとなっております。トイレは男女別です。機械警備で、エレベーターは1基あります。複数路線利用可能な、アクセスの良い中央区東日本橋の貸事務所です。
-
物件情報
-
設備情報
- トイレ
- 室内男女別
- 床
- フリーアクセス
- 空調
- 個別空調
- セキュリティ
- 有
- 駐車場
- -
- 会議室
- -
- エレベーター
- 1基
- 天井高
- -
-
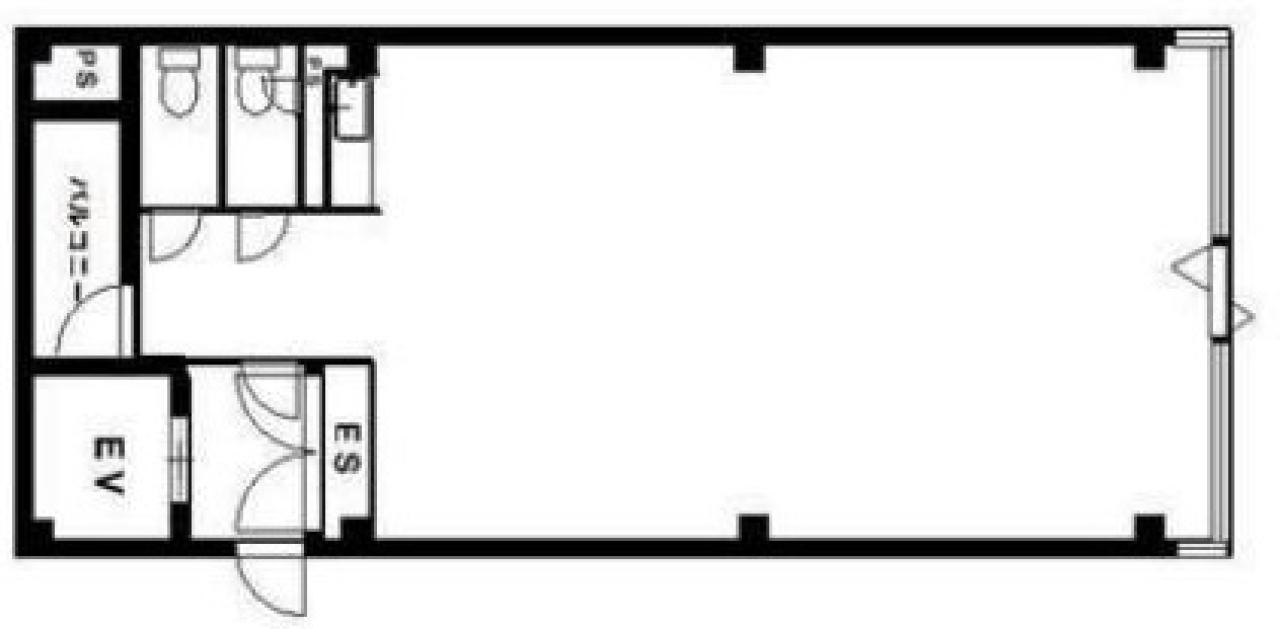
間取り図
-
近隣相場情報
東日本橋2丁目(20~30坪)の相場
13748 円 (坪)
※ビルサク調べ
周辺施設情報
コンビニ |
セブンイレブン/日本橋横山町/130m(徒歩2分) ファミリーマート/東日本橋二丁目店/130m(徒歩2分) |
---|---|
郵便局/銀行 |
イーネット/ファミリーマート東日本橋二丁目/[営業時間]0:00~24:00/130m(徒歩2分) 郵便局/両国/[駐車場]なし [取扱]郵便/貯金/保険/ATM/190m(徒歩3分) |
飲食店 |
中華料理 東海飯店/不定休/50m(徒歩1分) 小諸そば 浅草橋南店/7時30分~19時30分/120m(徒歩1分) |
カフェ |
プロント/東日本橋店/[営業時間]平日:カフェ 7:00~17:30 バー 17:30~23:00 土曜:カフェ 7:00~21:00 日曜:カフェ 7:00~20:00 祝日:カフェ 7:00~20:00/290m(徒歩4分) ドトール/浅草橋南店/[営業時間]平日:6:45~21:30 土曜日:7:00~21:00 日 祝:7:00~20:00/350m(徒歩5分) |
コインパーキング |
NPC24H/東日本橋 [料金] [料金]通常料金 20分/300円 [料金]最大料金 最大料金のご案内 月~土 当日最大 3400円 [最大料金] [料金]日祝 当日最大 1200円 全日夜間 500円(20時~8時) [台数]4台 コインパーク/東日本橋2丁目第2 [料金] 【月~土】 ■通常料金 【オールタイム[24時間]】 20分/300円 日祝】 ■通常料金 【オールタイム[24時間]】 20分/300円 [最大料金] 【月~土】 ■最大料金 【駐車後5時間以内1回限り 】 2300円 【19:00~8:00】 500円 日祝】 最大料金 【駐車後5時間以内1回限り 】 1200円 【19:00~8:00】 500円 [台数][車: 6台] |
周辺地図
東京プラスチック会館は、中央区東日本橋にある貸事務所物件です。最寄り駅は、都営浅草線の東日本橋駅、人形町駅、JR総武線の馬喰町駅、都営新宿線の馬喰横山駅、浜町駅、東京メトロ日比谷線の人形町駅です。1989年竣工で、基準階が20.3坪の賃貸オフィスビルです。床はOAフロアとなっております。トイレは男女別です。機械警備で、エレベーターは1基あります。複数路線利用可能な、アクセスの良い中央区東日本橋の貸事務所です。
全フロア情報
更新日:2020年1月23日
階 | 面積 | 賃料 | 共益費 | 敷金 | 入居日 | お問合せ | お気に入り | |
---|---|---|---|---|---|---|---|---|
1F |
15.41 坪 50.94 ㎡ |
※現在空室情報はございません |
※現在空室情報は 確認する |
|||||
7F |
20.30 坪 67.11 ㎡ |
※現在空室情報はございません |
※現在空室情報は 確認する |
|||||
8F |
20.30 坪 67.11 ㎡ |
※現在空室情報はございません |
※現在空室情報は 確認する |
|||||
9F |
20.30 坪 67.11 ㎡ |
※現在空室情報はございません |
※現在空室情報は 確認する |
お問い合わせ
似た条件の物件はこちら
-
グリーンパーク日本橋参番館
東京都中央区日本橋大伝馬町6-2
坪数:16.35 坪
坪単価:25,688 円(坪)
-
三上ビル
東京都中央区日本橋横山町1-1
坪数:21.35 坪
坪単価:30,000 円(坪)
-
PORT ONE 茅場町
東京都中央区日本橋箱崎町5-15
坪数:16.75 坪
坪単価:24,000 円(坪)
-
三幸日本橋プラザビル
東京都中央区東日本橋1-1-20
坪数:21.97 坪
坪単価:13,000 円(坪)
-
オーキッドプレイス蛎殻町ビル
東京都中央区日本橋蛎殻町1-4-1
坪数:24.87 坪
坪単価:15,000 円(坪)
-
FSビル
東京都中央区日本橋人形町2-21-1
坪数:22.05 坪
坪単価:11,000 円(坪)
-
リブラ東日本橋Ⅵ
東京都中央区東日本橋3-12-11
坪数:16.3 坪
坪単価:23,313 円(坪)
-
エムジー小伝馬町ビル
東京都中央区日本橋小伝馬町7-10
坪数:24.71 坪
坪単価:10,500 円(坪)
-
古川ビル
東京都中央区日本橋蛎殻町1-18-1
坪数:17.9 坪
坪単価:11,996 円(坪)
-
鈴善ビル
東京都中央区日本橋小舟町1-12
坪数:22.15 坪
坪単価:11,000 円(坪)
関連エリアから探す
- 日本橋大伝馬町
- 日本橋蛎殻町
- 日本橋小網町
- 日本橋小伝馬町
- 日本橋小舟町
- 日本橋富沢町
- 日本橋人形町
- 日本橋箱崎町
- 日本橋堀留町
- 日本橋中洲
- 日本橋馬喰町
- 日本橋浜町
- 日本橋久松町
- 日本橋横山町
- 東日本橋